VIA BONVESIN DE LA RIVA – Prestigiosa Villa Bifamiliare VENDITA

Via Bonvesin de la Riva - Roma (Roma)
Trattativa Riservata
  • Più di 5 locali
  • 500 mq
  • 4 bagni

Villa in Vendita a Roma

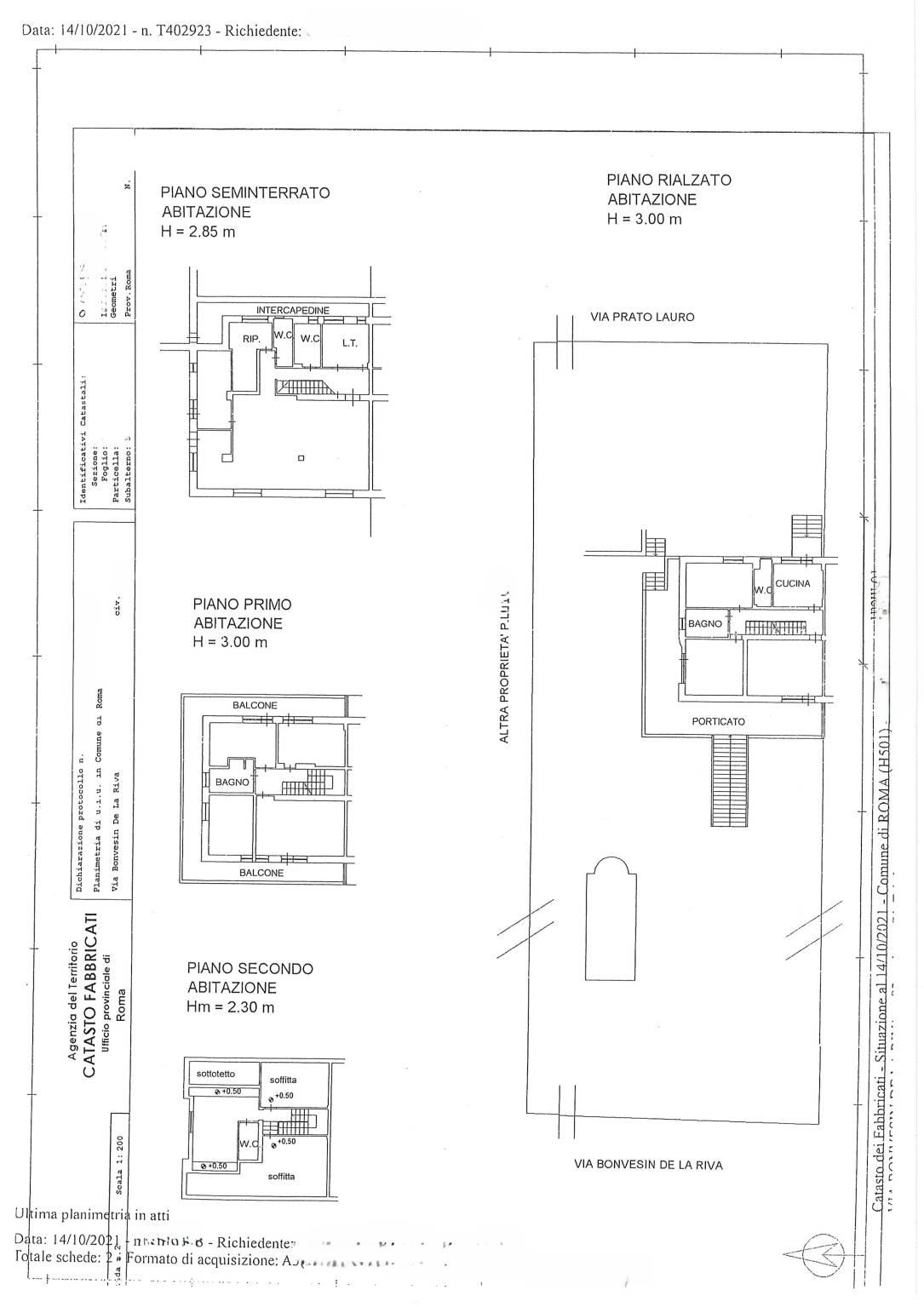
VIA BONVESIN DE LA RIVA – Prestigiosa Villa Bifamiliare con Piscina, Dependance ed Ampio Giardino

Nomentana-Prato Lauro, a pochi km dal GRA e dal quartiere Talenti-Monte Sacro, precisamente in via Bonvesin De La Riva, in contesto residenziale ed elegante, proponiamo in vendita esclusiva porzione di villa bifamiliare di circa 500 mq interni (già predisposta per tre unità immobiliari + dependance) ,con ingresso carrabile e pedonale indipendenti, disposta su 3 livelli e mansarda, spazi esterni di grande pregio di 2.500 mq ca., piscina privata, dependance con ingresso indipendente, posti auto coperti ed ampio box auto.

-Dotazioni e comfort:
· Caldaia indipendente su ogni piano
· Predisposizione per contatori gas separati
· Infissi in legno con doppio vetro
· Inferriate, zanzariere e serrande elettriche
· Riscaldamento a GPL (bombolone – no gas metano)

-Esterni e pertinenze:
· Ampio giardino
· Portico coperto
· Garage adiacente all’ingresso principale
· Piscina privata con area pavimentata
· Pozzo per irrigazione automatica

-Dependance indipendente:
· Soggiorno con angolo cottura e camino
· Camera matrimoniale
· Bagno
· Giardino privato e ingresso pedonale separato

Soluzione ideale per:
· Più nuclei familiari
· Chi desidera una residenza con spazi indipendenti
· Investitori per attività ricettiva (B&B / casa vacanze)
Una proprietà rara e completa, che unisce funzionalità, comfort e ampi spazi, in un contesto riservato ma comodo ai servizi.
Le presenti informazioni e planimetrie sono meramente indicative e non costituiscono elementi contrattuali. Per prenotare una visita all'immobile o per richiedere maggiori informazioni potete contattare la nostra sede in via Nomentana 861 I-O ai seguenti recapiti telefonici: 06/86558617 - 3519485469, oppure scrivere al nostro indirizzo mail: segreteria@volpescase-re.com Mettete mi piace alle nostre pagine Facebook & Instagram Volpes Case M&N Real Estate per rimanere sempre aggiornati sulle proposte immobiliari.

LEGGI TUTTO

CONDIVIDI SUI SOCIAL

DATI PRINCIPALI

Riferimento
637611
Contratto
Vendita
Tipologia
Villa
Superficie
500 mq
Locali
Più di 5
Camere da letto
Più di 5
Cucina
Abitabile
Bagni
4
Piano
1 °
Totale piani
2
Box/Posto auto
Doppio

CARATTERISTICHE

Ascensore

COSTI

Prezzo
Trattativa Riservata

EFFICIENZA ENERGETICA

Stato
Ristrutturato
Anno costruzione
1967
Riscaldamento
Autonomo
Climatizzazione
Si
Classe energetica
F
IPE
175,00 kWh/m²a

A+

A

B

C

D

E

175,00 kWh/m²a | Classe energetica F

F

G

MAPPA

ANNUNCI SIMILI

VENDITA 20
€ 650.000
Villa in Vendita a Roma (Roma)
  • Più di 5 locali
  • 250 mq
  • 4 bagni
VENDITA 20
€ 495.000
Villa in Vendita a Roma (Roma)
  • Più di 5 locali
  • 230 mq
  • 4 bagni
VENDITA 20
€ 450.000
Villa in Vendita a Roma, Zona Ponte Mammolo
  • Più di 5 locali
  • 195 mq
  • 3 bagni
VENDITA 20
€ 1.050.000
Villa in Vendita a Roma, Zona Bufalotta
  • Più di 5 locali
  • 360 mq
  • 4 bagni