SPLENDIDA VILLA CON AMPIO GIARDINO VENDITA

Via Tor Paluzzi 161 - Albano Laziale (Roma)
€ 265.000
  • Più di 5 locali
  • 178 mq
  • 2 bagni

Villa in Vendita a Albano Laziale

Villa da Sogno Immersa nel Verde - Un Rifugio di Pace e Comfort

Non perdere l'occasione di visitare questa meravigliosa villa situata in una posizione privilegiata, lontana dal caos cittadino, dove comfort e relax si fondono in un'armonia perfetta.
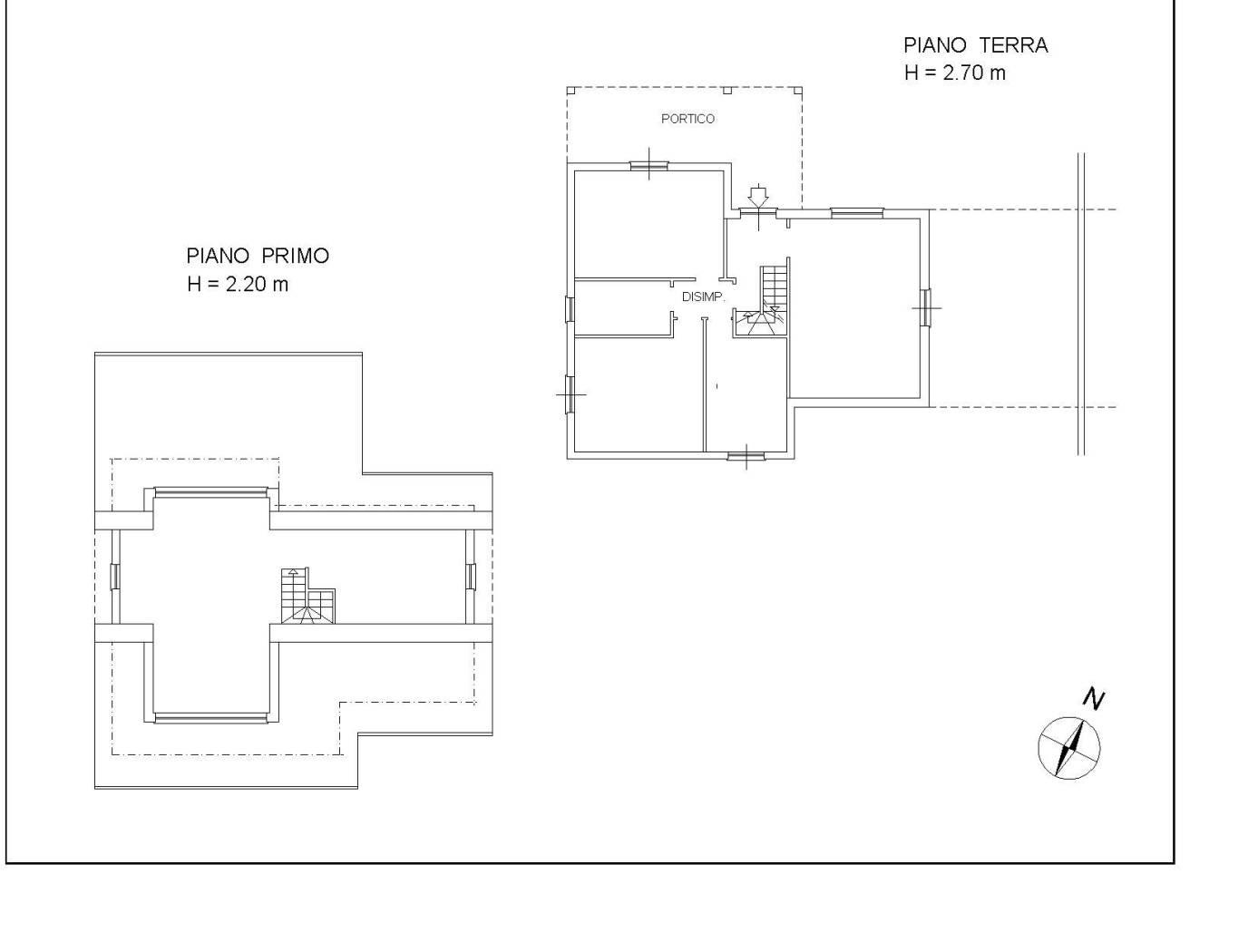
Distribuita solo su 2 livelli, l'abitazione ci accoglie con un ampio portico all'ingresso, che ci conduce ad un salone luminoso dotato di termocamino.
L'ampia cucina abitabile è ideale per chi ama cucinare e condividere momenti speciali. Un balcone perimetrale offre una vista mozzafiato sulle vallate verdi circostanti.

La zona notte comprende una camera da letto matrimoniale con cabina armadio privata, un'ulteriore camera e un bagno doppio con vasca idromassaggio. Salendo al piano superiore attraverso una comoda scala in muratura, troviamo tre ampie camere e un bagno che completano la zona notte
Inoltre un meraviglioso giardino privato di 800 mq offre gli spazi ideali per vivere nelle stagioni più calde e per poter parcheggiare comodamente.

Questa villa, edificata nel 2006, è perfetta per chi cerca indipendenza, privacy e luminosità in ogni ambiente, Con una superficie calpestabile di 170 m², l'immobile è adatto a famiglie numerose che desiderano condividere momenti in un ambiente accogliente. Non perdere l'opportunità di vivere in un'oasi di tranquillità!

Per ulteriori informazioni o per fissare il tuo appuntamento contatta il n. 06/9348045. Metacasa Servizi Immobiliari opera, per i propri clienti i migliori immobili su tutta la zona dei Castelli Romani e Roma effettuando una ricerca specifica secondo i criteri favoriti del cliente stesso seguendolo nelle varie fasi di vendita, ricerca, acquisto.
La nostra agenzia mette a disposizione dei propri clienti un servizio di consulenza finanziaria per aiutarli a trovare la soluzione migliore nell' ambito bancario dei mutui. La nostra agenzia è in grado di proporre soluzioni "su misura" per ogni realtà individuale, imprenditoriale e professionale, affiancando le imprese che affrontano il "mercato globale" con un'ampia gamma di servizi, mirata a garantire lo sviluppo del loro business.
L'agenzia Metacasa Servizi Immobiliari è aperta la mattina dal lunedì al venerdì dalle 9:00 alle 13:00, il pomeriggio dalle 15:30 alle 19:00.

LEGGI TUTTO

CONDIVIDI SUI SOCIAL

DATI PRINCIPALI

Riferimento
639974
Contratto
Vendita
Tipologia
Villa
Superficie
178 mq
Locali
5
Camere da letto
4
Cucina
Abitabile
Bagni
2
Piano
Piano terra
Totale piani
2
Box/Posto auto
Doppio

CARATTERISTICHE

Ascensore

COSTI

Prezzo
€ 265.000,00

EFFICIENZA ENERGETICA

Stato
Ristrutturato
Anno costruzione
2006
Riscaldamento
Autonomo
Classe energetica
G
IPE
351,00 kWh/m²a

A+

A

B

C

D

E

F

351,00 kWh/m²a | Classe energetica G

G

MAPPA

ANNUNCI SIMILI