Splendida Villa Caposchiera con Ampio Giardino Angolare VENDITA

Via Domenico Morelli - Roma, Zona Acilia
€ 359.000
  • Più di 5 locali
  • 270 mq
  • 3 bagni

Villetta a schiera in Vendita a Roma

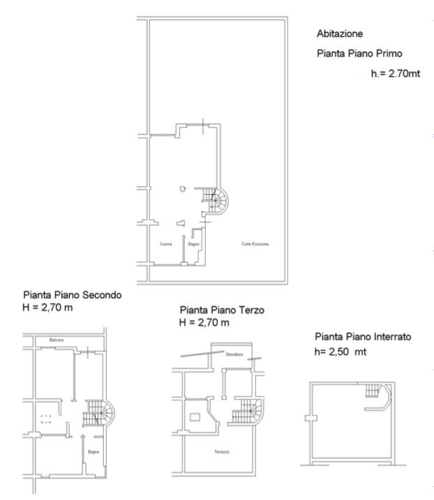
Nella tranquilla e residenziale Via Domenico Morelli (zona Madonnetta), proponiamo in vendita una splendida villa di testa di circa 270 mq, libera su tre lati (esposizione Nord-Est-Ovest) e circondata da un magnifico giardino privato di circa 250 mq.
L'immobile si distingue per:
• GRANDE GIARDINO ANGOLARE: Circa 250 mq di verde attrezzato con due gazebo, ideale per vivere all'aperto.
• AMPIA METRATURA: circa 270 mq distribuiti intelligentemente su 4 livelli.
• OTTIMA LUMINOSITÀ: Grazie alla tripla esposizione.
• ACQUISTO SICURO: La pratica di AFFRANCAZIONE è GIÀ STATA ESEGUITA, garantendo un passaggio di proprietà sereno e senza oneri aggiuntivi.
COMPOSIZIONE INTERNA:
• PIANO TERRA (Zona Giorno): Un accogliente salone, cucina abitabile funzionale e un bagno di servizio. Da questo livello si accede direttamente allo splendido giardino.
• PRIMO PIANO (Zona Notte): Una spaziosa suite matrimoniale (risultato dell'unione di due camere), una seconda camera da letto, una cameretta/studio e un bagno.
• PIANO MANSARDA: Un ambiente versatile e luminoso, arricchito da due terrazzi (uno parzialmente coperto) e un ulteriore balcone.
• PIANO SEMINTERRATO (Taverna): Una grande sala hobby perfetta per feste e momenti in compagnia, collegata direttamente a cantina e box auto.
CARATTERISTICHE E DOTAZIONI:
• Riscaldamento autonomo
• Camino funzionante
• Impianto di allarme volumetrico e perimetrale
• Porta blindata e grate di sicurezza
• Impianto di aria condizionata
• Infissi in legno con doppio vetro
• Connessione con Fibra Ottica
• Cancello elettrico
• Completano la proprietà un box auto singolo e una cantina.
Questa villa rappresenta la soluzione ideale per una famiglia alla ricerca di ampi spazi, privacy e della tranquillità di un contesto signorile, senza rinunciare alla comodità dei servizi e dei collegamenti della zona.
Per informazioni e appuntamenti, contattare Cannavale Immobiliare.

LEGGI TUTTO

CONDIVIDI SUI SOCIAL

DATI PRINCIPALI

Riferimento
640262
Contratto
Vendita
Tipologia
Villetta a schiera
Superficie
270 mq
Locali
Più di 5
Camere da letto
4
Cucina
Abitabile
Bagni
3
Piano
Piano terra
Totale piani
4
Box/Posto auto
Singolo

CARATTERISTICHE

Ascensore

COSTI

Prezzo
€ 359.000,00
Spese condominiali
€ 70,00 / mese

EFFICIENZA ENERGETICA

Stato
Abitabile
Anno costruzione
1995
Riscaldamento
Autonomo
Climatizzazione
Si
Classe energetica
D
IPE
121,65 kWh/m²a

A+

A

B

C

121,65 kWh/m²a | Classe energetica D

D

E

F

G

MAPPA

ANNUNCI SIMILI

VENDITA 20
€ 349.000
Villetta a schiera in Vendita a Roma, Zona Acilia
  • Più di 5 locali
  • 193 mq
  • 3 bagni
VENDITA 20
€ 345.000
Villetta a schiera in Vendita a Roma, Zona Acilia
  • Più di 5 locali
  • 177 mq
  • 3 bagni
VENDITA 20
€ 595.000
Villetta a schiera in Vendita a Roma, Zona Axa
  • Più di 5 locali
  • 300 mq
  • 4 bagni
VENDITA 20
€ 475.000
Villetta a schiera in Vendita a Roma, Zona Acilia
  • Più di 5 locali
  • 150 mq
  • 3 bagni
VENDITA 20
€ 440.000
Villetta a schiera in Vendita a Roma, Zona Axa
  • Più di 5 locali
  • 239 mq
  • 3 bagni
VENDITA 20
€ 749.000
Villetta a schiera in Vendita a Roma, Frazione Casal Palocco
  • Più di 5 locali
  • 240 mq
  • 4 bagni
VENDITA 20
€ 375.000
Villetta a schiera in Vendita a Roma, Frazione Casal Palocco
  • Più di 5 locali
  • 195 mq
  • 3 bagni
VENDITA 20
€ 330.000
Villetta a schiera in Vendita a Roma, Frazione Casal Bernocchi
  • Più di 5 locali
  • 150 mq
  • 2 bagni