SNL - Via V. Tridentina - 309 VENDITA

Via Venezia Tridentina - Fonte Nuova (Roma)
€ 309.000
  • Quadrilocale
  • 125 mq
  • 2 bagni

Villa in Vendita a Fonte Nuova

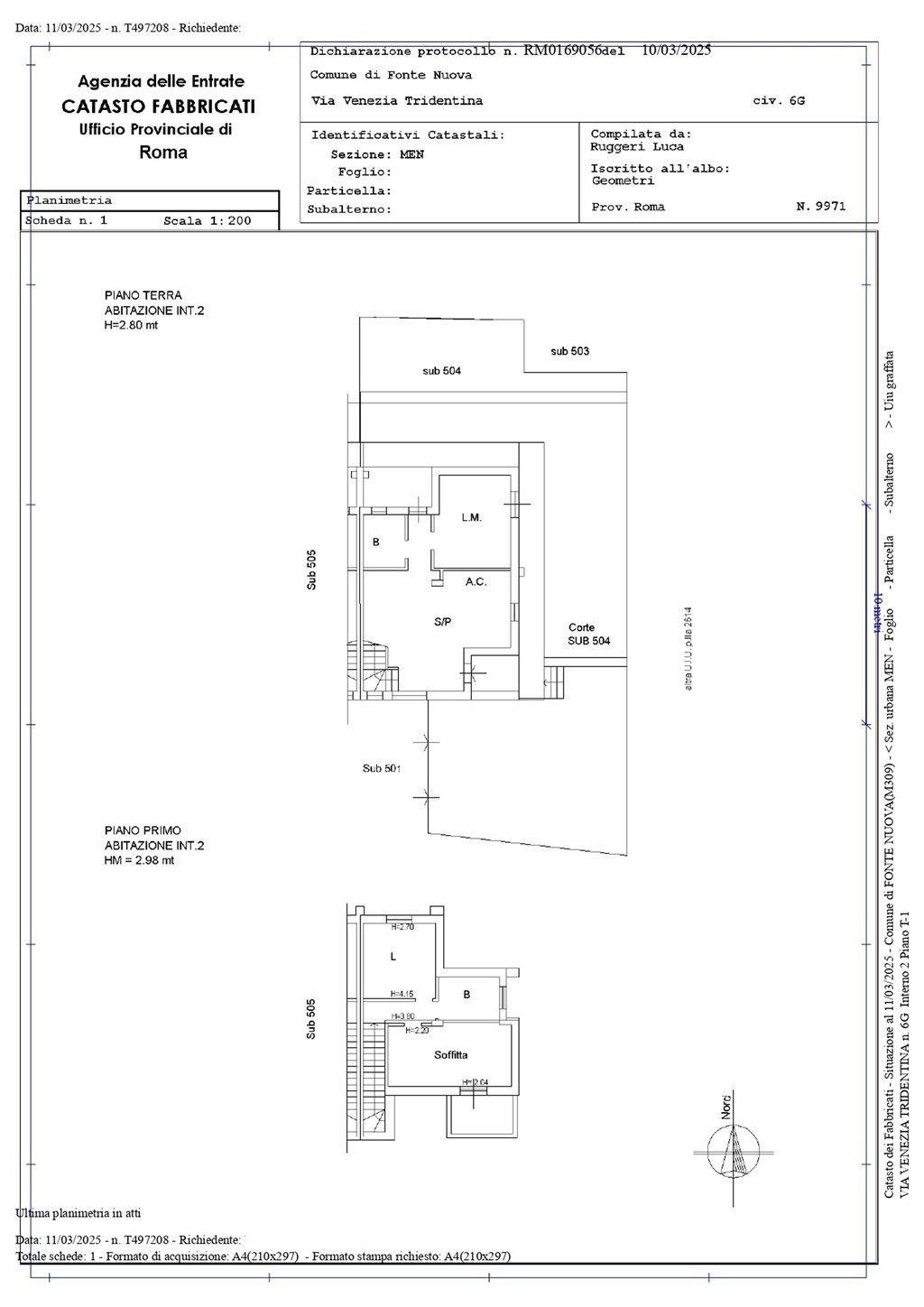
FONTE NUOVA - Loc. Santa Lucia - Proponiamo in vendita porzione di bifamiliare a 100 mt da Via Palombarese, vicino svincolo Centro Commerciale, Nuova Costruzione. La villa è articolata su 2 livelli, al piano TERRA troviamo un ampio soggiorno con cucina a vista, camera matrimoniale, bagno con doccia e finestra, ampio giardino e corte esterna per parcheggiare più di una autovettura; al piano PRIMO troviamo una camera matrimoniale , una cameretta mansardata con uscita sul terrazzino e un bagno, soffitti in legno a vista. Alcune caratteristiche: riscaldamento a pavimento, pannelli fotovoltaici, caldaia a condensazione, infissi bianchi in pvc con doppio vetro, predisposizione condizionatori in ogni ambiente, allarme predisposto per porte e finestre, videocitofono, grate di protezione, portoncino blindato, cancelli con predisposizione motore elettrico. Le ville godono di una tripla esposizione, quindi sono molto luminose. Prezzo € 309.000 – Per ulteriori informazioni potete contattare la Bea Immobiliare allo 06/90018074 – 06/90018696 – 327/0411867 oppure richieste.beaimmobiliare@gmail.com

LEGGI TUTTO

CONDIVIDI SUI SOCIAL

DATI PRINCIPALI

Riferimento
633099
Contratto
Vendita
Tipologia
Villa
Superficie
125 mq
Locali
4
Camere da letto
3
Cucina
Angolo cottura
Bagni
2
Piano
Piano terra
Totale piani
2
Box/Posto auto
Singolo

CARATTERISTICHE

Ascensore

COSTI

Prezzo
€ 309.000,00

EFFICIENZA ENERGETICA

Stato
Nuovo/In costruzione
Anno costruzione
2024
Riscaldamento
Autonomo
Climatizzazione
Predisposizione
Classe energetica
A+
IPE
30,00 kWh/m²a
30,00 kWh/m²a | Classe energetica A+

A+

A

B

C

D

E

F

G

MAPPA

ANNUNCI SIMILI

VENDITA 20
€ 850.000
Villa in Vendita a Fonte Nuova (Roma)
  • Più di 5 locali
  • 338 mq
  • 4 bagni