San Cesareo: Porzione di trifamiliare indipendente VENDITA

Via Campo Gillaro - San Cesareo (Roma)
€ 229.000
  • Più di 5 locali
  • 140 mq
  • 2 bagni

Villa in Vendita a San Cesareo

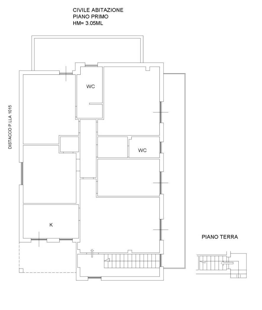
Immagina di vivere in un appartamento indipendente di 140 mq, situato al primo piano di un contesto trifamiliare a San Cesareo, precisamente in Via di Campo Gillaro. Questa è la soluzione ideale per chi cerca spazio, tranquillità e una posizione strategica.
Dettagli dell'Immobile
L'appartamento, che si sviluppa su un unico livello, offre ampi spazi e una distribuzione intelligente degli ambienti:
• Ingresso accogliente
• Salone luminoso con accesso diretto a un balcone
• Cucina abitabile dotata di un comodo terrazzo, ideale per pranzi e cene all'aperto
• Camera matrimoniale con bagno privato e balcone
• Tre camere da letto aggiuntive, tutte con affaccio su un balcone, garantendo luminosità e spazio per tutta la famiglia o per creare uno studio.
• Un ulteriore bagno con anti-bagno a servizio delle altre camere e della zona giorno.
A completare la proprietà, al piano terra troverai un giardino privato di 100 mq, uno spazio verde esclusivo dove potrai creare un angolo di relax, un orto o un'area giochi per i bambini.
Posizione
La posizione è uno dei punti di forza di questo immobile, adiacente al casello autostradale, al campo sportivo e al centro commerciale “la Noce”.
Questa soluzione abitativa rappresenta un'ottima opportunità per chi cerca un'abitazione spaziosa e confortevole in una zona ben servita e tranquilla.
Rifiniture
Infissi in legno con vetrocamera, persiane in ferro, porta blindata, vasca e doccia idromassaggio, sistema di allarme, cancello automatico, videocitofono,
riscaldamento autonomo, condizionatori,
Pannelli fotovoltaici da 6 kw.
Ti piacerebbe avere maggiori informazioni su questo immobile o hai altre domande?
Contatta Mediazionecasa San Cesareo!

LEGGI TUTTO

CONDIVIDI SUI SOCIAL

DATI PRINCIPALI

Riferimento
637201
Contratto
Vendita
Tipologia
Villa
Superficie
140 mq
Locali
5
Camere da letto
4
Cucina
Abitabile
Bagni
2
Piano
1 °
Totale piani
2
Box/Posto auto
Doppio

CARATTERISTICHE

Ascensore

COSTI

Prezzo
€ 229.000,00
Spese condominiali
€ 10,00 / mese

EFFICIENZA ENERGETICA

Stato
Abitabile
Anno costruzione
1985
Riscaldamento
Autonomo
Climatizzazione
Si
Classe energetica
D
IPE
175,00 kWh/m²a

A+

A

B

C

175,00 kWh/m²a | Classe energetica D

D

E

F

G

MAPPA

ANNUNCI SIMILI

VENDITA 20
€ 419.000
Villa in Vendita a San Cesareo (Roma)
  • Più di 5 locali
  • 280 mq
  • 4 bagni
VENDITA 20
€ 469.000
Villa in Vendita a San Cesareo (Roma)
  • Più di 5 locali
  • 305 mq
  • 4 bagni