Sacrofano-Località Guado tufo VENDITA

Località Guadotufo - Sacrofano (Roma)
€ 489.000
  • Più di 5 locali
  • 176 mq
  • 3 bagni

Villa in Vendita a Sacrofano

Villa unifamiliare con piscina, giardino e vista aperta.
Nelle immediate vicinanze da Roma, immersa nel verde della campagna di Sacrofano, proponiamo una villa indipendente con piscina privata, giardino curato e splendida vista aperta sulle colline.
Il bene gode di un ampio giardino curato con piscina privata.
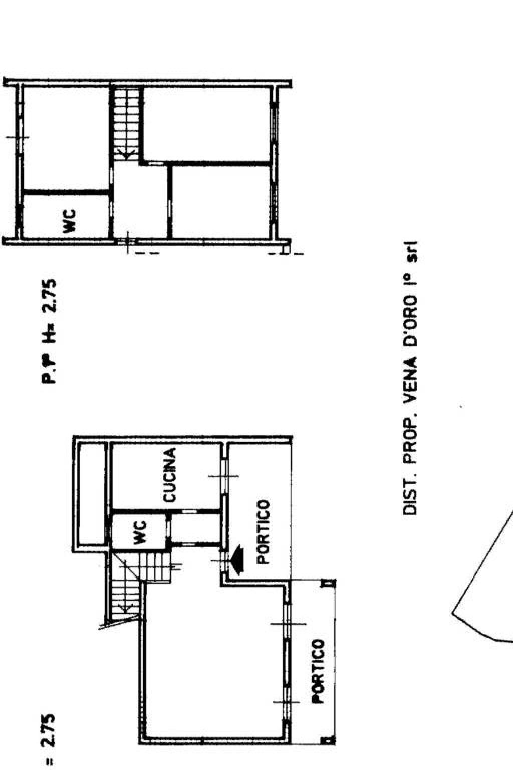
L'immobile si sviluppa su due livelli:
piano terra: patio con barbecue, salone doppio con camino e cucina abitabile, due camere da letto e bagno. Dal piano si accede al box/cantina in tufo;
piano primo: tre camere da letto e due bagni.
Il giardino, pianeggiante e ben tenuto, ospita una piscina in muratura, un pozzo ornamentale e varie zone relax.
Ideale per chi cerca una soluzione tranquilla nel verde, senza rinunciare alla vicinanza con i servizi principali della città.
Per maggiori info e visite 06.87652705 o geimimmobiliare@gmail.com

LEGGI TUTTO

CONDIVIDI SUI SOCIAL

DATI PRINCIPALI

Riferimento
637160
Contratto
Vendita
Tipologia
Villa
Superficie
176 mq
Locali
5
Camere da letto
4
Cucina
Abitabile
Bagni
3
Totale piani
2
Box/Posto auto
Doppio

CARATTERISTICHE

Ascensore

COSTI

Prezzo
€ 489.000,00
Spese condominiali
€ 90,00 / mese

EFFICIENZA ENERGETICA

Stato
Abitabile
Anno costruzione
1990
Riscaldamento
Autonomo
Climatizzazione
Si
Classe energetica
F
IPE
175,00 kWh/m²a

A+

A

B

C

D

E

175,00 kWh/m²a | Classe energetica F

F

G

MAPPA

ANNUNCI SIMILI

VENDITA 20
€ 380.000
Villa in Vendita a Sacrofano (Roma)
  • Più di 5 locali
  • 313 mq
  • 4 bagni
VENDITA 20
€ 239.000
Villa in Vendita a Sacrofano (Roma)
  • Più di 5 locali
  • 200 mq
  • 2 bagni
VENDITA 20
€ 470.000
Villa in Vendita a Sacrofano (Roma)
  • Più di 5 locali
  • 300 mq
  • 3 bagni