PRENOTAZIONI VILLE IN TRIFAMILIARE IN COSTRUZIONE - CLASSE A VENDITA

Via del Pratone - Grottaferrata (Roma)
€ 450.000
  • Quadrilocale
  • 145 mq
  • 3 bagni

Villetta a schiera in Vendita a Grottaferrata

GROTTAFERRATA, VIA DEL PRATONE. In contesto riservato e verdeggiante, immerso nella natura e lontano dal caos cittadino, Scuderi Immobiliare ha il piacere di proporre in vendita, su prenotazione, porzioni di ville in tri-familiare con giardino, box auto doppio e cantina, prossime alla realizzazione.
Panoramiche e con affacci riservati, non su strada, hanno il privilegio di trovarsi in una zona residenziale, ben servita dalle attività principali e non lontana dal centro di Grottaferrata.
Ogni porzione è disposta su tre livelli, collegati tra loro da comode scale di design, e la metratura interna degli immobili (che invitiamo a consultare nel dettaglio alla voce superficie) risulta ottimamente distribuita.
Piano terra: soggiorno, angolo cottura, disimpegno, servizio finestrato, serra solare con esposizione a Sud, perfetta per rendere l'ambiente luminosissimo e caldo anche nei mesi invernali.
Piano primo: 2 camere, di cui una con balcone panoramico, disimpegno, servizio finestrato.
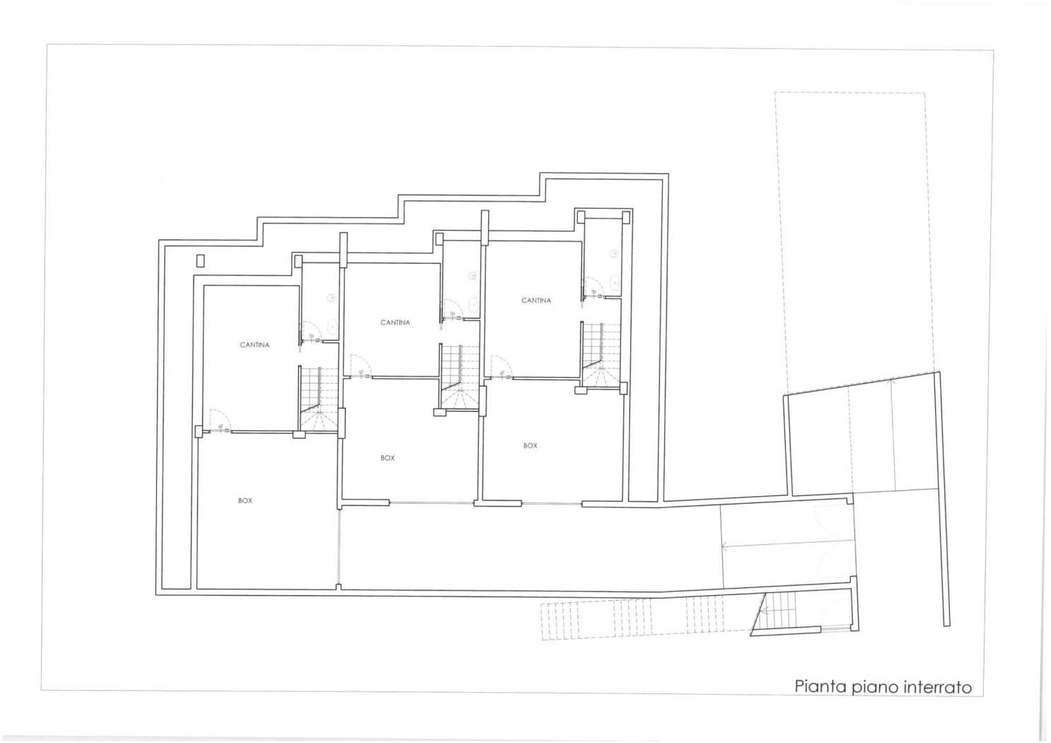
Piano seminterrato: cantina, servizio, box auto doppio; intercapedine ispezionabile. Si evidenzia che il piano sarà in bona parte realizzato fuori terra, tanto da poter essere considerato un ambiente indipendente.

Le ville saranno realizzate rispettando i più alti standard in materia di risparmio energetico, tanto da rientrare nella CLASSE ENERGETICA A; ogni immobile sarà infatti dotato di:
- impianto termico autonomo con caldaia a condensazione, dotato di cronotermostato per la gestione della temperatura e dei tempi di accensione
- pannelli solari termici
- isolamento termico realizzato tramite l'uso di materiale termo-isolante, per minimizzare la dispersione del calore

Presenti altresì:
- videocitofono
- porta blindata
- predisposizione per impianto d'allarme e per quello di climatizzazione
- isolamento acustico tra un immobile e l'altro, realizzato tramite l'impiego di pannelli fonoassorbenti

I materiali utilizzati per i rivestimenti interni saranno di ottima qualità e potranno essere selezionati all'interno di un'ampia gamma messa a disposizione dalla società di costruzione, affinché rispecchino pienamente i gusti personali dell'acquirente.

VARIE METRATURE - A PARTIRE DA € 450.000,00

Per informazioni e per visualizzare il progetto nella sua interezza, invitiamo a prendere un appuntamento presso la nostra agenzia, al numero 069412888.

N. B. Le immagini e le planimetrie allegate al presente annuncio hanno carattere puramente illustrativo e non costituiscono elemento contrattuale.

LEGGI TUTTO

CONDIVIDI SUI SOCIAL

DATI PRINCIPALI

Riferimento
642982
Contratto
Vendita
Tipologia
Villetta a schiera
Superficie
145 mq
Locali
4
Camere da letto
2
Cucina
Angolo cottura
Bagni
3
Piano
1 °
Totale piani
3
Box/Posto auto
Doppio

CARATTERISTICHE

Ascensore

COSTI

Prezzo
€ 450.000,00

EFFICIENZA ENERGETICA

Stato
Nuovo/In costruzione
Anno costruzione
2026
Riscaldamento
Autonomo
Climatizzazione
Predisposizione
Classe energetica
A1
IPE
351,00 kWh/m²a

A4

A3

A2

351,00 kWh/m²a | Classe energetica A1

A1

B

C

D

E

F

G

MAPPA

ANNUNCI SIMILI

VENDITA 20
€ 495.000
Villetta a schiera in Vendita a Grottaferrata (Roma)
  • Più di 5 locali
  • 240 mq
  • 4 bagni
VENDITA 4
€ 429.000
Villetta a schiera in Vendita a Rocca di Papa (Roma)
  • Quadrilocale
  • 200 mq
  • 3 bagni
VENDITA 20
€ 650.000
Villetta a schiera in Vendita a Monte Porzio Catone (Roma)
  • Più di 5 locali
  • 290 mq
  • 4 bagni
VENDITA 20
€ 680.000
Villetta a schiera in Vendita a Frascati (Roma)
  • Più di 5 locali
  • 230 mq
  • 4 bagni
VENDITA 20
€ 289.000
Villetta a schiera in Vendita a Marino (Roma)
  • Più di 5 locali
  • 127 mq
  • 3 bagni