Porzione di Trifamiliare Via Terme di Traiano 3 camere 2 bag VENDITA

Civitavecchia (Roma)
€ 349.000
  • Più di 5 locali
  • 180 mq
  • 2 bagni

Villa in Vendita a Civitavecchia

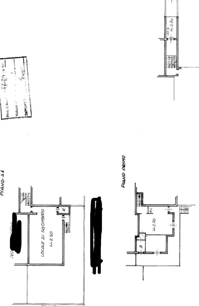
Porzione di Trifamiliare Via Terme di Traiano con 3 camere 2 bagni giardino angolare cosi composta PS: salone doppio con uscita sul giardino angolare di 180 mq 2 camere da letto bagno completo finestrato con doccia e 2 ampi ripostigli, Predisposizione per camino (canna fumaria già presente). P1 : salone con cucina a vista con uscita sull'ampio patio di 80mq una camera da letto matrimoniale sempre con uscita sul terrazzo e bagno. La villa si presenta in ottime condizioni ed è anche molto luminosa perchè ha una visuale libera davanti inoltre è termoautonoma, climatizzata, dotata di zanzariere e con possibilità di parcheggio all'interno del cancello fino a 3 auto.

LEGGI TUTTO

CONDIVIDI SUI SOCIAL

DATI PRINCIPALI

Riferimento
638732
Contratto
Vendita
Tipologia
Villa
Superficie
180 mq
Locali
5
Camere da letto
3
Cucina
Abitabile
Bagni
2
Piano
Piano terra

CARATTERISTICHE

Ascensore

COSTI

Prezzo
€ 349.000,00

EFFICIENZA ENERGETICA

Stato
Abitabile
Anno costruzione
1997
Riscaldamento
Autonomo
Climatizzazione
Si
Classe energetica
F
IPE
175,00 kWh/m²a

A+

A

B

C

D

E

175,00 kWh/m²a | Classe energetica F

F

G

MAPPA

ANNUNCI SIMILI

VENDITA 20
€ 390.000
Villa in Vendita a Civitavecchia (Roma)
  • Più di 5 locali
  • 299 mq
  • 3 bagni
VENDITA 20
€ 480.000
Villa in Vendita a Civitavecchia (Roma)
  • Più di 5 locali
  • 400 mq
  • 3 bagni