Pomezia Torvaianica Alta - Splendida Villa Unifamiliare VENDITA

Via Oceano Atlantico - Pomezia (Roma)
€ 485.000
  • Più di 5 locali
  • 205 mq
  • 3 bagni

Villa in Vendita a Pomezia

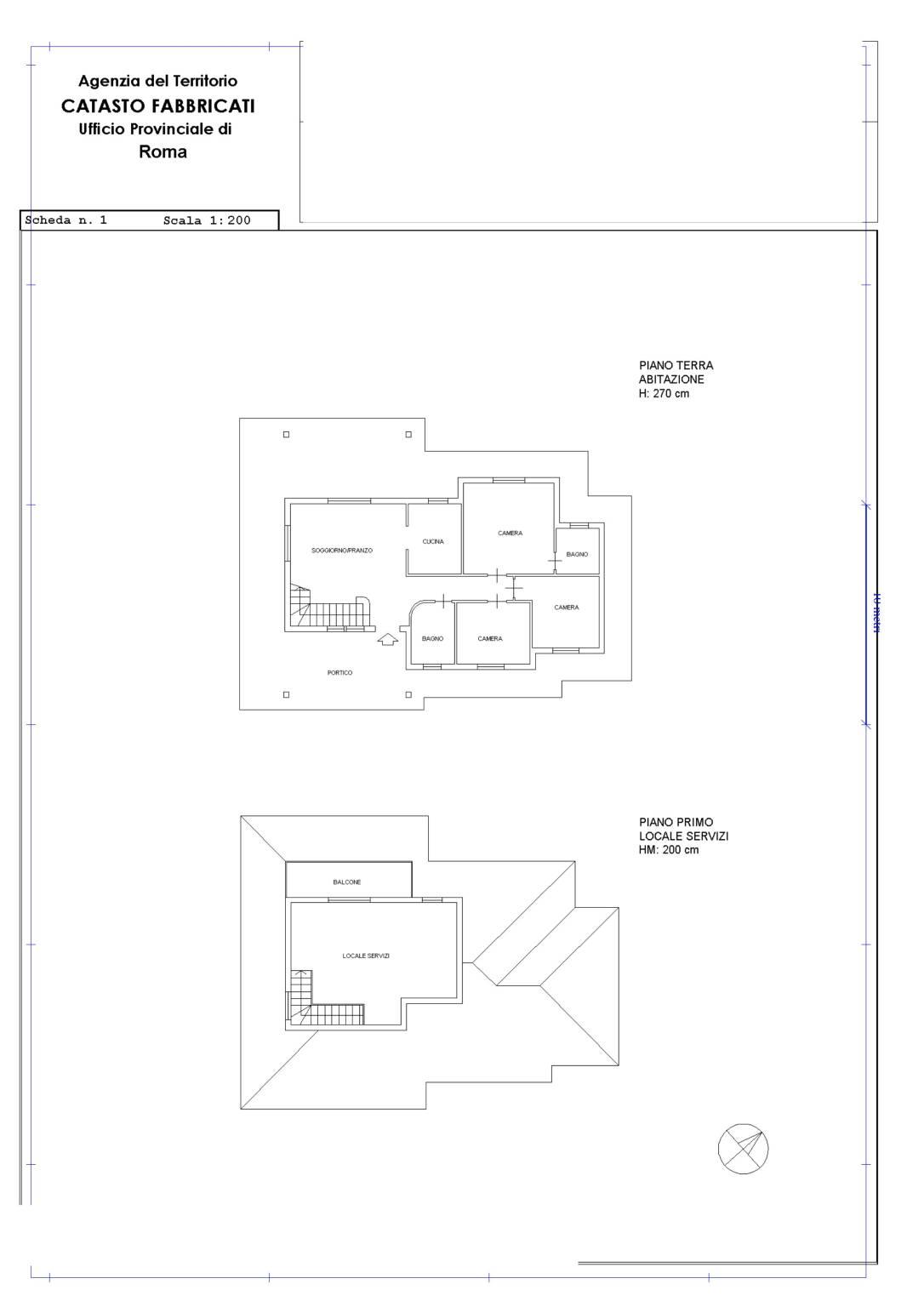
Proponiamo Splendida proprietà composta da Villa Unifamiliare mq. 160 c.a. su due livelli con parco di 5'000 mq;
La proprietà si sviluppa su un lotto di circa 5'000 mq, vicino al centro abitato di Torvaianica Alta, all'interno del lotto troviamo l'abitazione principale di recente costruzione (anno 2008), che si sviluppa su due livelli fuori terra (Piano Terra e Piano primo), al piano terra troviamo un ampio e luminoso soggiorno, dal quale si accede ad uno splendido porticato in legno lammellare con affaccio diretto al giardino, una cucina abitabile, uno studio, sempre al piano terra, troviamo due ampie camere da letto entrambe matrimoniali, di cui una delle quali con bagno interno, si. completa. il piano terra con una ampia stanza lavanderia ed un bagno con vasca idromassaggio. Al piano primo troviamo un'ampia camera da letto matrimoniale con camino dotata di, cabina armadio, bagno interno e due balconi.
Il giardino è ben curato e ricco di piante e alberature ornamentali, completo di impianto di irrigazione e allarme perimetrale, sempre nel giardino troviamo una rimessa attrezzi (garage) di circa 90 mq completamente in legno lammellare.
Ottime Rifiniture:
- Aria climatizzata,
- Impianto di Allarme,
- Impianto di videosorveglianza,
- Grate di Sicurezza,
- Pavimenti in Parquet.
Parzialmente arredata
€ 485.000 Trattabili

Agenzia HEIMAT IMMOBILIARE
Via Roma 122 Pomezia
06/9105277
Arch.Rossi Alessio
338/1395097
info@heimatimmobiliare.it

LEGGI TUTTO

CONDIVIDI SUI SOCIAL

DATI PRINCIPALI

Riferimento
627306
Contratto
Vendita
Tipologia
Villa
Superficie
205 mq
Locali
Più di 5
Camere da letto
4
Cucina
Abitabile
Bagni
3
Piano
1 °
Totale piani
2
Box/Posto auto
Doppio

CARATTERISTICHE

Ascensore

COSTI

Prezzo
€ 485.000,00

EFFICIENZA ENERGETICA

Stato
Ristrutturato
Anno costruzione
2008
Riscaldamento
Autonomo
Climatizzazione
Si
Classe energetica
B
IPE
351,00 kWh/m²a

A+

A

351,00 kWh/m²a | Classe energetica B

B

C

D

E

F

G

MAPPA

ANNUNCI SIMILI

VENDITA 20
€ 317.000
Villa in Vendita a Pomezia (Roma)
  • Più di 5 locali
  • 190 mq
  • 2 bagni
VENDITA 20
€ 299.000
Villa in Vendita a Pomezia (Roma)
  • Più di 5 locali
  • 206 mq
  • 2 bagni
VENDITA 20
€ 530.000
Villa in Vendita a Pomezia (Roma)
  • Più di 5 locali
  • 250 mq
  • 3 bagni
VENDITA 20
€ 469.000
Villa in Vendita a Pomezia (Roma)
  • Più di 5 locali
  • 300 mq
  • 3 bagni
VENDITA 20
€ 599.000
Villa in Vendita a Pomezia (Roma)
  • Più di 5 locali
  • 293 mq
  • 3 bagni
VENDITA 20
€ 475.000
Villa in Vendita a Pomezia (Roma)
  • Più di 5 locali
  • 200 mq
  • 3 bagni