PLUTARCO590-Raffinata ed ampia porzione di Villa Bifamiliare VENDITA

Guidonia Montecelio (Roma)
€ 529.000
  • Più di 5 locali
  • 330 mq
  • 4 bagni

Villa in Vendita a Guidonia Montecelio

PLUTARCO590 - Raffinata ed ampia porzione di Villa Bifamiliare-3 livelli-balconi-giardino

Situata in una delle aree più esclusive della zona nord-est di Roma, precisamente in Via Plutarco, nel rinomato contesto residenziale di Marco Simone, confinante con il campo da golf, sede della Ryder Cup 2023, proponiamo in vendita un’ampia e raffinata porzione di villa bifamiliare sviluppata su tre livelli.

Questa elegante residenza, progettata dall’architetto romano “Greco” in uno stile ibrido che combina il gusto neoclassico con il postmodernismo, si distingue per le sue finiture di pregio e i dettagli di grande fascino: porte ad arco, infissi in legno con inglesine, persiane in tinta, imponente scala elicoidale in marmo avana e scenografici balconi/terrazze dalle forme variegate e mai ripetitive, perfettamente integrate tra loro, elementi che conferiscono carattere ed unicità all’intera proprietà.

Disposizione interna

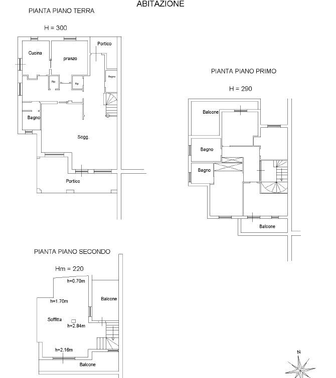
L’immobile si sviluppa su circa 330 mq, distribuiti armoniosamente tra piano terra, primo piano e mansarda.

Al piano terra si apre una luminosa e accogliente zona giorno, composta da un ampio salone doppio caratterizzato da un elegante portone d’ingresso, un camino in travertino, finestre con persiane e grandi aperture che donano luminosità naturale.
Completano il livello, una sala da pranzo, una cucina abitabile dotata anch’essa di camino, un guardaroba, doppi servizi ed un pratico ripostiglio.

Due portici coperti si affacciano sull’esterno, introducendo ad un suggestivo giardino privato di circa 1.000 mq, impreziosito da alberi ad alto fusto, scalinate in peperino ed un camino da esterno, perfetto per vivere lo spazio all’aperto in ogni stagione.

Al primo piano si sviluppa la zona notte, separata acusticamente dal piano inferiore mediante un’elegante parete in legno con vetri all’inglese e composta da disimpegno, quattro camere da letto, di cui una con bagno en suite, un secondo bagno, due balconi ed una terrazza, con vista sul verde circostante.

ll piano mansardato ospita un’ampia soffitta open space con accesso a due terrazze panoramiche, ideale come studio, zona relax o ambiente multifunzionale, come dimostra l’attuale presenza di un tavolo da biliardo.

La villa è dotata di impianto di riscaldamento autonomo e condizionatori, garantendo il massimo comfort in ogni stagione.

Completano la proprietà una spaziosa cantina, ideale come ambiente di servizio o deposito ed un capiente box auto di circa 63 mq, con spazio per più veicoli e comodo accesso carrabile.

Questa soluzione abitativa di alto profilo rappresenta una rara opportunità per chi è alla ricerca di una dimora elegante e funzionale, immersa nella tranquillità e nel verde, a breve distanza dai principali collegamenti urbani e servizi.
Per informazioni o per fissare un appuntamento, contattaci al numero 389.9283838 o allo 06.86927415.

°°°°°°°°°°°°°°°°°°°°°°°°°°°°°°°°°°°°°°°°°°°°°°°°°°°°°°°
Le informazioni riportate sono da intendersi come indicative e non vincolanti, non costituendo offerta contrattuale o documentazione ufficiale di vendita.
°°°°°°°°°°°°°°°°°°°°°°°°°°°°°°°°°°°°°°°°°°°°°°°°°°°°°°°
Oikos è un’agenzia immobiliare presente a Monterotondo dal 2005, con Agenti immobiliari con esperienza ultratrentennale.
Adotta un approccio innovativo all’intermediazione immobiliare, integrando strumenti digitali avanzati con consulenza esperta e relazioni solide sul territorio, per ottimizzare ogni operazione di vendita o locazione.
Operiamo principalmente nelle zone di Monterotondo, Casali, Mentana, Fonte Nuova, e nell’intera area nord-est di Roma.
°°°°°°°°°°°°°°°°°°°°°°°°°°°°°°°°°°°°°°°°°°°°°°°°°°°°°°°
Sito web: https://www.oikosimmobiliare.eu
Instagram: OIKOS Servizi immobiliari
Facebook: OIKOS Immobiliare
email: richieste@immobiliareoikos.eu
°°°°°°°°°°°°°°°°°°°°°°°°°°°°°°°°°°°°°°°°°°°°°°°°°°°°°°°

LEGGI TUTTO

CONDIVIDI SUI SOCIAL

DATI PRINCIPALI

Riferimento
637050
Contratto
Vendita
Tipologia
Villa
Superficie
330 mq
Locali
Più di 5
Camere da letto
4
Cucina
Abitabile
Bagni
4
Piano
Piano terra
Totale piani
3
Box/Posto auto
Singolo

CARATTERISTICHE

Ascensore

COSTI

Prezzo
€ 529.000,00

EFFICIENZA ENERGETICA

Stato
Ristrutturato
Riscaldamento
Autonomo
Climatizzazione
Si
Classe energetica
G
IPE
351,00 kWh/m²a

A+

A

B

C

D

E

F

351,00 kWh/m²a | Classe energetica G

G

MAPPA

ANNUNCI SIMILI

VENDITA 20
€ 395.000
Villa in Vendita a Guidonia Montecelio (Roma)
  • Più di 5 locali
  • 260 mq
  • 3 bagni
VENDITA 20
€ 550.000
Villa in Vendita a Guidonia Montecelio (Roma)
  • Più di 5 locali
  • 240 mq
  • 2 bagni
VENDITA 20
€ 750.000
Villa in Vendita a Guidonia Montecelio (Roma)
  • Più di 5 locali
  • 300 mq
  • 3 bagni