PICHINI VILLA UNIFAMILIARE AMPI SPAZI GIARDINO OTTIMO STATO VENDITA

Via Pietro Vannucci - Guidonia Montecelio (Roma)
€ 199.000
  • Quadrilocale
  • 140 mq
  • 3 bagni

Villa in Vendita a Guidonia Montecelio

Villa Unifamiliare a Pichini – 140 mq di Comfort e Privacy

In una zona tranquilla e ben collegata di Guidonia Montecelio, proponiamo in vendita una villa unifamiliare luminosa e curata, perfetta per chi desidera spazio, indipendenza e qualità della vita.

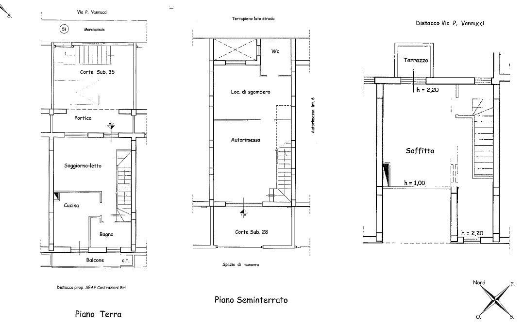
L’immobile, di circa 140 mq, offre una distribuzione degli ambienti estremamente funzionale:

Piano seminterrato: ampia sala hobby con camino, cucina, bagno, corte esterna e posto auto di proprietà.

Piano terra: due camere da letto (una con predisposizione per la cucina), bagno, portico e corte d’ingresso.

Piano primo: spaziosa camera mansardata con bagno privato.

Tre bagni, pratici e ben distribuiti, che garantiscono comodità a ogni membro della casa.

Giardino privato, un’oasi esterna perfetta per momenti di relax, giochi all’aria aperta o per gli amanti del verde.

Posto auto scoperto riservato.

La villa si presenta in buone condizioni, pronta per essere abitata da subito.

Prezzo: €199.000

N. B. Tutte le informazioni ivi contenute, comprese le metrature, sono da intendersi puramente a titolo indicativo e non costituiscono elemento contrattuale.

LEGGI TUTTO

CONDIVIDI SUI SOCIAL

DATI PRINCIPALI

Riferimento
634061
Contratto
Vendita
Tipologia
Villa
Superficie
140 mq
Locali
4
Camere da letto
3
Cucina
Abitabile
Bagni
3
Piano
Piano terra
Totale piani
3
Box/Posto auto
Singolo

CARATTERISTICHE

Ascensore

COSTI

Prezzo
€ 199.000,00

EFFICIENZA ENERGETICA

Stato
Ristrutturato
Anno costruzione
2006
Riscaldamento
Autonomo
Climatizzazione
Si
Classe energetica
B
IPE
175,00 kWh/m²a

A+

A

175,00 kWh/m²a | Classe energetica B

B

C

D

E

F

G

MAPPA

ANNUNCI SIMILI