OLGIATA - VILLA BIFAMILIARE 360 MQ IMMERSA NEL VERDE VENDITA

Largo dell'Olgiata - Roma, Zona Olgiata
€ 630.000
  • Più di 5 locali
  • 360 mq
  • 3 bagni

Villa in Vendita a Roma

Olgiata – Isola 48 in vendita villa esclusiva con parco privato di 2.500 mq
All’interno del prestigioso comprensorio dell’Olgiata, in posizione riservata e adiacente al Castello e ai campi da golf, proponiamo in vendita una villa bifamiliare di circa 360 mq, circondata da un ampio parco privato di 2.500 mq con alberi ad alto fusto.
L’immobile, disabitato da tempo e da ristrutturare, rappresenta una soluzione ideale per chi desidera personalizzare una residenza di grande rappresentanza in uno dei contesti più esclusivi di Roma.
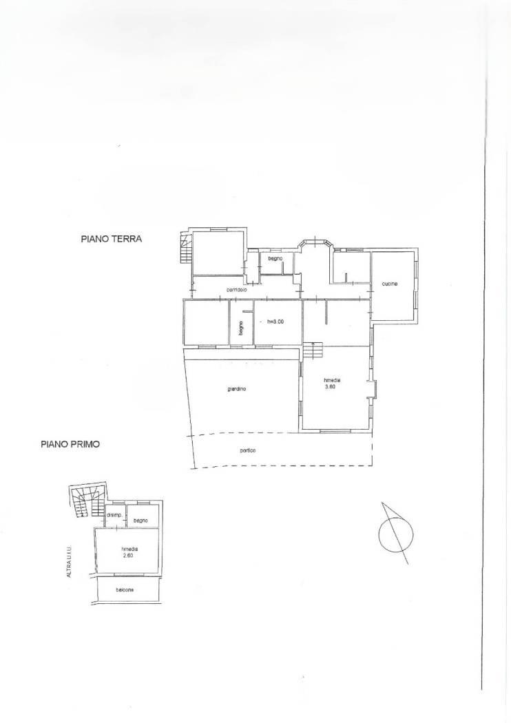
Il Piano Terra, sviluppato su un unico livello, è composto da un ampio ingresso, salone triplo con zona pranzo, impreziosito da camino e boiserie, affacciato a mezzogiorno sul parco, cucina abitabile, ripostiglio/lavanderia, tre camere da letto (di cui una con bagno interno) e un secondo bagno.
Il Primo Piano (con ingresso indipendente), si compone di un ampio disimpegno, una camera accogliente e uno spazio con predisposizione per un bagno. Balcone.
Il Piano Seminterrato comprende un’ampia autorimessa di circa 130 mq.
Il parco, sviluppato prevalentemente sul lato esposto a mezzogiorno, si apre davanti al soggiorno e alle camere, garantendo privacy, luminosità e una piacevole vista sul verde.
Ti invitiamo a contattarci per ulteriori dettagli o per organizzare una visita!
La nostra agenzia, presente sul territorio da oltre 30 anni, si distingue per professionalità, affidabilità e un servizio completo che ti accompagnerà fino al rogito notarile. La nostra priorità è offrirti un’assistenza trasparente e dedicata, offrendo tutte le garanzie necessarie per un acquisto sicuro.
Richiedi tutte le garanzie e informazioni di cui hai bisogno: siamo qui per aiutarti a trovare la casa dei tuoi sogni!
Le foto, le planimetrie e la descrizione in generale, hanno un puro scopo informativo; non costituiscono quindi elementi contrattuali.

LEGGI TUTTO

CONDIVIDI SUI SOCIAL

DATI PRINCIPALI

Riferimento
640496
Contratto
Vendita
Tipologia
Villa
Superficie
360 mq
Locali
Più di 5
Camere da letto
4
Cucina
Abitabile
Bagni
3
Piano
1 °
Totale piani
1
Box/Posto auto
Doppio

CARATTERISTICHE

Ascensore

COSTI

Prezzo
€ 630.000,00
Spese condominiali
€ 240,00 / mese

EFFICIENZA ENERGETICA

Stato
Da ristrutturare
Riscaldamento
Autonomo
Classe energetica
G
IPE
351,00 kWh/m²a

A+

A

B

C

D

E

F

351,00 kWh/m²a | Classe energetica G

G

MAPPA

ANNUNCI SIMILI