OCCASIONE - BILIVELLI EXTRA RIFINITO IN VENDITA VENDITA

Via Francesco Aquilanti - Roma, Zona Casal Lumbroso
€ 298.000
  • Bilocale
  • 66 mq
  • 2 bagni

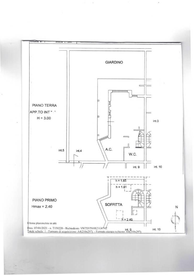
Villa in Vendita a Roma

Proponiamo in vendita in zona Casal Lumbroso e precisamente in Via Francesco Aquilanti, all'interno di un elegante
comprensorio di recente costruzione, un villino bilivelli in perfette condizioni interne a seguito di una totale ristrutturazione
effettuata nel 2021, con un bel giardino perimetrale in parte pavimentato.

Internamente al piano terra troviamo un soggiorno con camino, una elegante cucina arredata su misura ed un bagno
mentre il piano superiore è composto da una camera da letto, un bagno ed un comodo sottotetto adibito a soffitta.

L’immobile è dotato di riscaldamento autonomo con caldaia nuova, infissi in doppio vetro e legno, grate di sicurezza,
zanzariere, allarme, climatizzatore di ultimissima generazione, videocitofono, pannelli solari per acqua calda e pavimentazione
in parquet a listoni rovere.

Di pertinenza un posto auto nel parcheggio all'interno del comprensorio.

La zona offre tutti i servizi necessari (scuole, farmacie, supermercati) ed è ben collegato con i trasporti pubblici.

Prezzo richiesto € 298.000

LEGGI TUTTO

CONDIVIDI SUI SOCIAL

DATI PRINCIPALI

Riferimento
643646
Contratto
Vendita
Tipologia
Villa
Superficie
66 mq
Locali
2
Camere da letto
1
Cucina
A vista
Bagni
2
Piano
Piano terra
Totale piani
2
Box/Posto auto
Singolo

CARATTERISTICHE

Ascensore

COSTI

Prezzo
€ 298.000,00
Spese condominiali
€ 50,00 / mese

EFFICIENZA ENERGETICA

Stato
Ristrutturato
Anno costruzione
2008
Riscaldamento
Autonomo
Climatizzazione
Si
Classe energetica
D
IPE
351,00 kWh/m²a

A+

A

B

C

351,00 kWh/m²a | Classe energetica D

D

E

F

G

MAPPA

ANNUNCI SIMILI

VENDITA 20
€ 725.000
Villa in Vendita a Roma, Zona Casal Lumbroso
  • Più di 5 locali
  • 310 mq
  • 3 bagni
VENDITA 20
€ 750.000
Villa in Vendita a Roma, Zona Casal Lumbroso
  • Più di 5 locali
  • 310 mq
  • 3 bagni
VENDITA 20
€ 750.000
Villa in Vendita a Roma, Zona Casal Lumbroso
  • Più di 5 locali
  • 310 mq
  • 3 bagni
VENDITA 20
€ 775.000
Villa in Vendita a Roma, Zona Massimina
  • Più di 5 locali
  • 300 mq
  • 4 bagni
VENDITA 20
€ 355.000
Villa in Vendita a Roma, Zona Massimina
  • Quadrilocale
  • 130 mq
  • 2 bagni
VENDITA 20
€ 745.000
Villa in Vendita a Roma, Zona Casal Lumbroso
  • Più di 5 locali
  • 300 mq
  • 4 bagni