NUOVA COSTRUZIONE DI 4 VILLE IN VIA UGO GIAVITTO VENDITA

Via Ugo Giavitto - Fiumicino, Frazione Isola Sacra
€ 339.000
  • Quadrilocale
  • 117 mq
  • 2 bagni

Villa in Vendita a Fiumicino

ISOLA SACRA: VILLE QUADRIFAMILIARE SU 2 LIVELLI CON GIARDINO E BOX AUTO IN CLASSE A4

La 3Q IMMOBILIARE DI FIUMICINO, vi propone in vendita una bellissima nuova costruzione di 4 ville su 2 livelli, in via Ugo Giavitto, una traversa di via Valderoa, zona Isola Sacra.
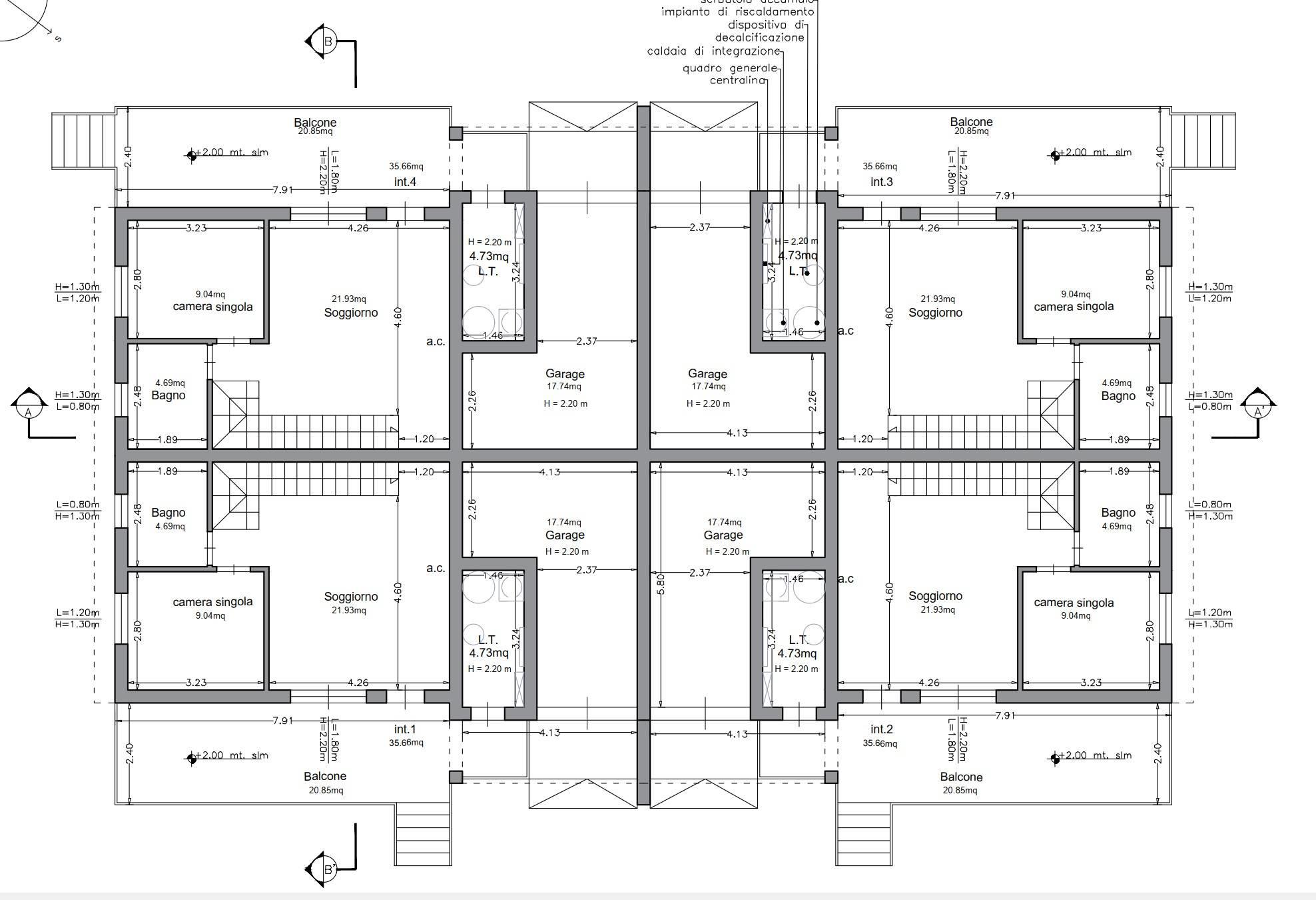
Le ville si presentano con una metratura interna di circa 100mq calpestabili divisi in soggiorno con angolo cottura, 3 camere da letto e possibilità di doppi servizi, un portico di 35mq, un posto auto interno ed un giardino che va dai 150mq ai 200mq.
Questa nuova costruzione rispetta tutte le funzionalità energetiche avendo impianti di ultima generazione ed innovativi.
I lavori sono iniziati, i progetti, il capitolato e le planimetrie sono consultabili in ufficio, è possibile anche fare un sopralluogo sul cantiere per capire la zona e l'avanzamento dei lavori.
Il piano terra sono circa 45mq + box auto di 18mq e portico di 35mq.
Il piano secondo sono circa 35mq ed il giardino va dai 150mq ai 200mq circa.
I prezzi variano in base al giardino ed all'esposizione delle ville.
Non perdere questa grande occasione di acquistare una villa nuova costruzione ad Isola Sacra, perfetta per una famiglia, ottima per chi vuole una casa innovativa ed all'avanguardia, non esitare a contattarci per maggiori informazioni e per fissare un appuntamento con noi!

LEGGI TUTTO

CONDIVIDI SUI SOCIAL

DATI PRINCIPALI

Riferimento
639852
Contratto
Vendita
Tipologia
Villa
Superficie
117 mq
Locali
4
Camere da letto
3
Cucina
Angolo cottura
Bagni
2
Piano
1 °
Totale piani
2
Box/Posto auto
Singolo

CARATTERISTICHE

Ascensore

COSTI

Prezzo
€ 339.000,00

EFFICIENZA ENERGETICA

Stato
Nuovo/In costruzione
Anno costruzione
2026
Riscaldamento
Autonomo
Climatizzazione
Si
Classe energetica
A4
IPE
351,00 kWh/m²a
351,00 kWh/m²a | Classe energetica A4

A4

A3

A2

A1

B

C

D

E

F

G

MAPPA

ANNUNCI SIMILI

VENDITA 20
€ 349.000
Villa in Vendita a Fiumicino (Roma)
  • Più di 5 locali
  • 234 mq
  • 2 bagni
VENDITA 20
€ 389.000
Villa in Vendita a Fiumicino (Roma)
  • Quadrilocale
  • 155 mq
  • 2 bagni