MARTIN PESCATORE - PC1168 Appartamento in villa in vendita VENDITA

Via degli Argonauti - Pomezia (Roma)
€ 180.000
  • Quadrilocale
  • 138 mq
  • 1 bagno

Villa in Vendita a Pomezia

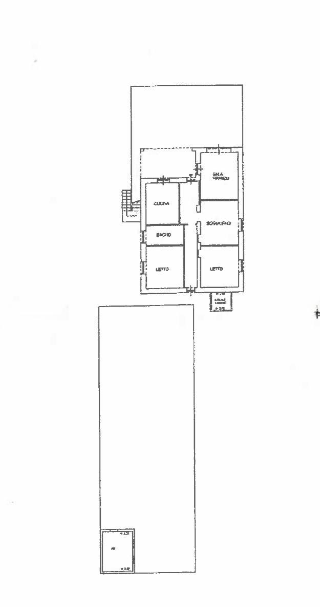
MARTIN PESCATORE - PC1168 Appartamento in villa al piano terra con entrata indipendente su ampio giardino. L'immobile di 140 mq. c. a. si sviluppata su unico livello così composta: soggiorno, cucina, 3 camere, bagno, giardino di 500 mq. con ripostiglio, termoautonomo, posto auto. € 180.000
Classe energetica "G" APE >175Kwh/mqa PROFESSIONECASA Tel email: - Visita il nostro sito: oppure I nostri agenti vi garantiranno piena assistenza nel corso di un’eventuale trattativa, partire dalla consulenza del mutuo bancario ideale e personalizzato con un nostro collaboratore interno Credipass, per proseguire con eventuali valutazioni assolutamente gratuite degli immobili di vostra proprietà da mettere in vendita. Vi forniranno anche consulenza tecnica e notarile, finalizzata alla risoluzione di tutte le problematiche inerenti la vendita o l’acquisto di un immobile. Inoltre, seguiranno il cliente fino al rogito notarile, offrendo un costante e professionale contatto continuativo con l’acquirente, pronti ad offrire rapide ed efficaci risposte su ogni punto interrogativo. Siamo a vostra completa disposizione per visionare gli immobili, tutti i giorni dal lunedì al sabato previo appuntamento telefonico contattandoci al nostro recapito o presso la nostra agenzia in Pomezia - Via Roma n. 86.

LEGGI TUTTO

CONDIVIDI SUI SOCIAL

DATI PRINCIPALI

Riferimento
642555
Contratto
Vendita
Tipologia
Villa
Superficie
138 mq
Locali
4
Camere da letto
3
Cucina
Abitabile
Bagni
1
Piano
Piano terra
Totale piani
1
Box/Posto auto
Singolo

CARATTERISTICHE

Ascensore

COSTI

Prezzo
€ 180.000,00

EFFICIENZA ENERGETICA

Stato
Abitabile
Anno costruzione
1980
Riscaldamento
Autonomo
Classe energetica
G
IPE
175,00 kWh/m²a

A+

A

B

C

D

E

F

175,00 kWh/m²a | Classe energetica G

G

MAPPA

ANNUNCI SIMILI

VENDITA 20
€ 299.000
Villa in Vendita a Pomezia (Roma)
  • Più di 5 locali
  • 206 mq
  • 2 bagni
VENDITA 20
€ 599.000
Villa in Vendita a Pomezia (Roma)
  • Più di 5 locali
  • 293 mq
  • 3 bagni
VENDITA 20
€ 475.000
Villa in Vendita a Pomezia (Roma)
  • Più di 5 locali
  • 200 mq
  • 3 bagni