Madonnetta: Villino con Giardino, 3 Camere e Zero Spese VENDITA

Via Alberico Crescitelli - Roma, Frazione Casal Palocco
€ 279.000
  • Quadrilocale
  • 141 mq
  • 2 bagni

Villetta a schiera in Vendita a Roma

Madonnetta: splendido villino duplex di 141mq con giardino fronte/retro. Spazi ampi, 3 camere e zero spese. Crea la casa dei tuoi sogni!
Nel quadrante più residenziale e verde di Roma Sud, a pochi passi dal Parco della Madonnetta e dalle eccellenze scolastiche del quartiere (come l’I.C.S. Margherita Hack) , proponiamo in vendita un villino duplex inferiore dalla distribuzione interna impeccabile.
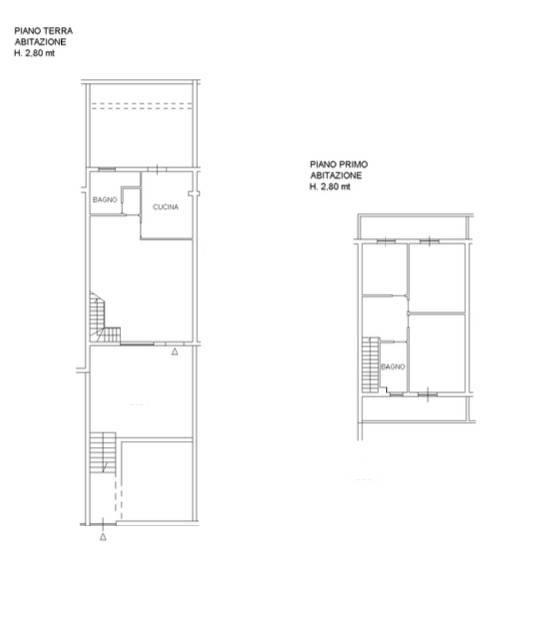
L'immobile, di circa 141 mq commerciali, si sviluppa su due livelli fuori terra:
• Piano Terra (Zona Giorno): Ampio salone, cucina abitabile separata e bagno di servizio. La doppia esposizione parallela garantisce una ventilazione naturale costante e una luminosità eccezionale in ogni ora del giorno.
• Primo Piano (Zona Notte): Tre camere da letto (di cui due matrimoniali e una singola/studio) e un bagno principale. Il piano è servito da due balconi privati.
Il vero punto di forza è il giardino esclusivo bifrontale di 100 mq. Lo spazio esterno è già perfettamente attrezzato per la convivialità:
• Barbecue in muratura e gazebo per le tue cene all'aperto.
• Tende da sole presenti su entrambi i balconi e tre tende dedicate al piano terra per il massimo comfort estivo.
L'immobile è stato concepito con una particolare attenzione alla sicurezza e all'efficienza:
• Porta blindata rinforzata con cristallo antisfondamento.
• Grate di protezione su tutte le finestre.
• Infissi in alluminio con doppio vetro.
• Impianto di riscaldamento autonomo e un condizionatore già installato.
• Zero spese condominiali, un vantaggio competitivo raro per la zona.
L’immobile si presenta allo stato originario (1980), rappresentando l’opportunità ideale per chi desidera una ristrutturazione su misura. Grazie agli ampi spazi e alla struttura razionale, potrai ridisegnare gli ambienti (come la creazione di un moderno open-space al piano terra) beneficiando delle agevolazioni per la riqualificazione energetica.
È la soluzione definitiva per famiglie che cercano l'indipendenza, ampi spazi esterni e la comodità di un quartiere servito, senza il peso di oneri consortili o condominiali

LEGGI TUTTO

CONDIVIDI SUI SOCIAL

DATI PRINCIPALI

Riferimento
640280
Contratto
Vendita
Tipologia
Villetta a schiera
Superficie
141 mq
Locali
4
Camere da letto
3
Cucina
Abitabile
Bagni
2
Piano
Piano terra
Totale piani
4

CARATTERISTICHE

Ascensore

COSTI

Prezzo
€ 279.000,00

EFFICIENZA ENERGETICA

Stato
Abitabile
Anno costruzione
1980
Riscaldamento
Autonomo
Climatizzazione
Si
Classe energetica
G
IPE
175,00 kWh/m²a

A+

A

B

C

D

E

F

175,00 kWh/m²a | Classe energetica G

G

MAPPA

ANNUNCI SIMILI

VENDITA 17
€ 279.000
Villetta a schiera in Vendita a Roma, Zona Acilia
  • Più di 5 locali
  • 108 mq
  • 3 bagni
VENDITA 20
€ 369.000
Villetta a schiera in Vendita a Roma, Zona Acilia
  • Più di 5 locali
  • 144 mq
  • 2 bagni
VENDITA 20
€ 345.000
Villetta a schiera in Vendita a Roma, Zona Acilia
  • Più di 5 locali
  • 177 mq
  • 3 bagni
VENDITA 20
€ 490.000
Villetta a schiera in Vendita a Roma, Frazione Casal Palocco
  • Più di 5 locali
  • 250 mq
  • 3 bagni
VENDITA 20
€ 375.000
Villetta a schiera in Vendita a Roma, Frazione Casal Palocco
  • Più di 5 locali
  • 195 mq
  • 3 bagni
VENDITA 20
€ 749.000
Villetta a schiera in Vendita a Roma, Frazione Casal Palocco
  • Più di 5 locali
  • 240 mq
  • 4 bagni
VENDITA 20
€ 349.000
Villetta a schiera in Vendita a Roma, Zona Acilia
  • Più di 5 locali
  • 193 mq
  • 3 bagni
VENDITA 20
€ 595.000
Villetta a schiera in Vendita a Roma, Zona Axa
  • Più di 5 locali
  • 300 mq
  • 4 bagni