LUPETTA: SIGNORILE VILLA UNIFAMILIARE VICINO AL MARE VENDITA

Via delle Azalee 5 - Ardea (Roma)
€ 330.000
  • Più di 5 locali
  • 297 mq
  • 3 bagni

Villa in Vendita a Ardea

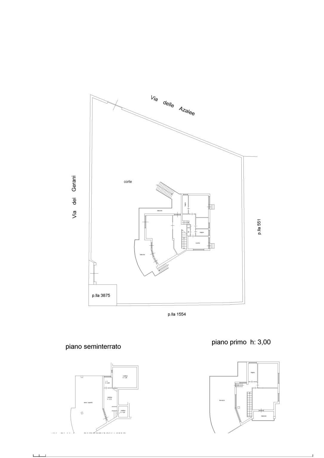
Ardea – Lupetta, via delle Azalee: In contesto riservato e tranquillo, adiacente a tutti i principali servizi del paese e a soli 600 mt dal mare, proponiamo la vendita di una splendida villa unifamiliare disposta su due livelli, con circa 1000 mq di giardino, patio esterno, balcone a livello e terrazzo al piano primo con vista mare, doppio accesso carrabile e parcheggio interno per più di una autovettura. L'immobile internamente è composto, al piano terra, da: ingresso, ampio e luminoso salone con camino e accesso diretto sul balcone, cucina abitabile, camera da letto matrimoniale con bagno privato, cameretta e bagno; al piano primo da: due camere da letto matrimoniali, bagno con doccia e vasca, e disimpegno attrezzato come zona studio-relax con accesso ad uno splendido terrazzo di 80 mq con vista mare. L'accesso diretto allo spazio esterno da quasi tutti gli ambienti, la quadrupla esposizione e la grande superficie finestrata rendono gli ambienti luminosi ed ariosi da mattina a sera. L'ottima distribuzione e ampiezza degli spazi interni ed esterni, l'indipendenza, la posizione strategica, tra mare e servizi e la bellezza del giardino rendono la villa confortevole ed unica nel suo genere, pronta ad accogliere famiglie che desiderino vivere in un contesto tranquillo e verde, adiacente ai servizi, al mare e a soli 30 km da Roma. Completa la proprietà un locale magazzino di circa 20 mq.
Le immagini presenti nell'annuncio sono a scopo illustrativo. Il mobilio e arredo interno ed esterno non sono da considerarsi compresi nel prezzo di vendita. La Società Case Elite offre un servizio completo ed all'avanguardia per tutto ciò che riguarda la compravendita, la locazione ed investimenti immobiliari. Valutazioni gratuite su tutto il territorio di Roma e Provincia. Consulenze tecnico - legali, assistenza sino al rogito notarile, consulenze gratuite per mutui e prestiti personali con staff di esperienza ventennale nel settore. Competenza, professionalità e passione al vostro servizio. Rivolgersi a "CASE ELITE" tel: 3247770265 - mail: info@caseelite.it visita il nostro sito www.caseelite.com .

LEGGI TUTTO

CONDIVIDI SUI SOCIAL

DATI PRINCIPALI

Riferimento
632794
Contratto
Vendita
Tipologia
Villa
Superficie
297 mq
Locali
5
Camere da letto
4
Cucina
Abitabile
Bagni
3
Piano
1 °
Totale piani
2
Box/Posto auto
Singolo

CARATTERISTICHE

Ascensore

COSTI

Prezzo
€ 330.000,00
Spese condominiali
€ 21,00 / mese

EFFICIENZA ENERGETICA

Stato
Abitabile
Anno costruzione
1963
Riscaldamento
Autonomo
Classe energetica
E
IPE
175,00 kWh/m²a

A+

A

B

C

D

175,00 kWh/m²a | Classe energetica E

E

F

G

MAPPA

ANNUNCI SIMILI

VENDITA 20
€ 299.000
Villa in Vendita a Ardea (Roma)
  • Più di 5 locali
  • 140 mq
  • 2 bagni
VENDITA 16
€ 239.000
Villa in Vendita a Ardea (Roma)
  • Più di 5 locali
  • 180 mq
  • 2 bagni
VENDITA 20
€ 265.000
Villa in Vendita a Ardea (Roma)
  • Più di 5 locali
  • 120 mq
  • 2 bagni
VENDITA 20
€ 229.000
Villa in Vendita a Ardea (Roma)
  • Più di 5 locali
  • 115 mq
  • 4 bagni
VENDITA 20
€ 239.000
Villa in Vendita a Ardea (Roma)
  • Più di 5 locali
  • 215 mq
  • 4 bagni