LABICO- COLLE SPINA PORZIONE DI BIFAMILIARE VENDITA

Strada Ventesima - Labico (Roma)
€ 189.000
  • Quadrilocale
  • 90 mq
  • 2 bagni

Villa in Vendita a Labico

ThinkHome propone in vendita una porzione di villa bifamiliare situata nella tranquilla località di Colle Spina, soluzione ideale per chi desidera vivere immerso nella natura senza rinunciare alla comodità dei servizi.

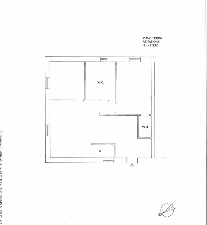
L’abitazione si sviluppa su un unico livello per circa 90 mq, caratteristica sempre più ricercata per la praticità degli spazi e l’assenza di scale, rendendola perfetta sia per famiglie che per chi cerca una casa funzionale e confortevole.

- Gli spazi interni -
La casa accoglie con una zona giorno ampia e luminosa, composta da:
- salone con angolo cottura, ambiente conviviale e ben distribuito
- due camere matrimoniali, spaziose e confortevoli
- bagno principale finestrato
- secondo bagno privato all’interno di una delle camere
Gli ambienti sono pensati per offrire vivibilità e praticità nella quotidianità, con una disposizione semplice e funzionale.

- Dotazioni e comfort -

L’immobile è dotato di:
- persiane blindate
- infissi con doppio vetro a taglio termico
- impianto di riscaldamento termoautonomo
Soluzioni che garantiscono sicurezza, comfort abitativo ed efficienza energetica.

Completa la proprietà un ampio terreno di circa 1200 mq, uno spazio prezioso che permette molteplici utilizzi:
- giardino privato
- area relax
- orto o piccolo frutteto
- spazio giochi per bambini
- zona barbecue o area conviviale all’aperto
Un vero valore aggiunto per chi desidera vivere la casa anche all’esterno.

Una soluzione che unisce indipendenza, natura e qualità della vita.

- Vivere Colle Spina -
La località Colle Spina è apprezzata per il suo contesto residenziale tranquillo e immerso nel verde, ideale per chi cerca relax e qualità della vita, la zona consente di raggiungere facilmente i principali servizi:
- supermercati e negozi di quartiere
- scuole e servizi per famiglie
- bar e attività commerciali
- collegamenti stradali verso i centri limitrofi
È la soluzione perfetta per chi desidera allontanarsi dal caos cittadino mantenendo comunque la comodità dei servizi essenziali.

Contattaci per maggiori informazioni o per prenotare una visita.
GESTIONE UFFICIO
Casilina
0684102627

LEGGI TUTTO

CONDIVIDI SUI SOCIAL

DATI PRINCIPALI

Riferimento
638035
Contratto
Vendita
Tipologia
Villa
Superficie
90 mq
Locali
4
Camere da letto
2
Cucina
Angolo cottura
Bagni
2
Piano
Piano terra
Totale piani
1
Box/Posto auto
Doppio

CARATTERISTICHE

Ascensore

COSTI

Prezzo
€ 189.000,00

EFFICIENZA ENERGETICA

Stato
Abitabile
Anno costruzione
1990
Riscaldamento
Autonomo
Classe energetica
G
IPE
175,00 kWh/m²a

A+

A

B

C

D

E

F

175,00 kWh/m²a | Classe energetica G

G

MAPPA

ANNUNCI SIMILI

VENDITA 20
€ 169.000
Villa in Vendita a Labico (Roma)
  • Quadrilocale
  • 100 mq
  • 2 bagni