FINOCCHIO VILLA UNIFAMILIARE CANTINA E GIARDINO VENDITA

Vicolo di Fontana Rotta - Roma, Zona Finocchio
€ 259.000
  • Più di 5 locali
  • 287 mq
  • 3 bagni

Villa in Vendita a Roma

Sei alla ricerca di una villa immersa nel verde con la comodità di avere fermata della la metro C a 650 m da casa?
Allora soffermati a leggere la descrizione dell’immobile, ideale anche per 2 o più nuclei familiari!

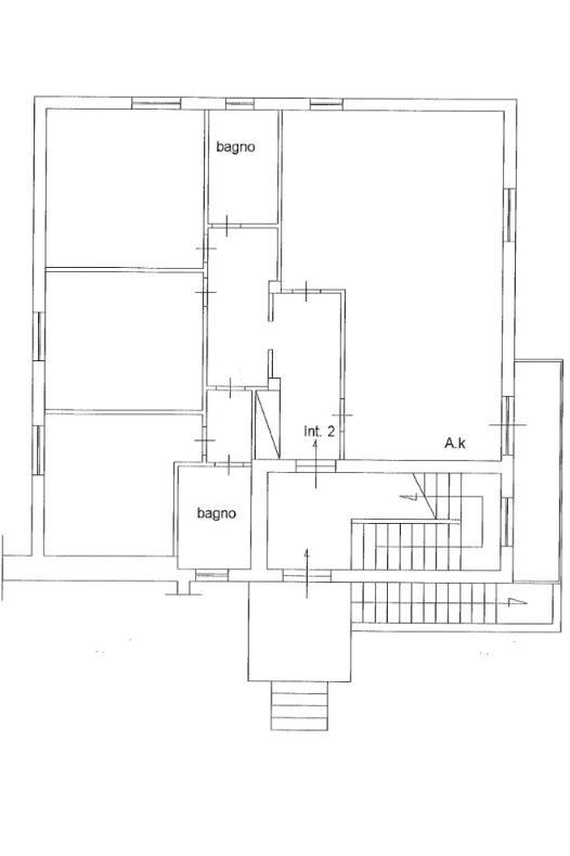
Proponiamo in vendita villa già suddivisa in due unità immobiliari di 300 mq., nello specifico:
- Piano terra, appartamento monolocale di mq 39.
- Piano terra, appartamento quadrilocale di 122 mq composto da ampio salone, cucina abitabile, 3 camere, due bagni, balcone.
Le unità immobiliari sono una adiacente all’altra, la disposizione interna può essere soggetta a ridistribuzione degli spazi.
- Piano seminterrato, frontalmente sbancato, destinazione d’uso C/2 di mq 142 allo stato grezzo.

Lotto di terreno di 900 mq ca.

CANCELLO ELETTRICO. INFISSI IN ALLUMINIO VETRO SINGOLO. TERMOCAMINO. PORTA BLINDATA.

Riferimenti ubicazione:
L’immobile è sito in zona residenziale, a 600 m da Via Casilina e fermata (Casilina/Graniti ) dove troviamo la linea atac 107 e notturno che fa capolinea alla stazione autobus a Grotte Celoni. Tutti i servizi primari sono siti entro 1 km dall’immobile, scuola infanzia e primaria, forno, bar, farmacia.

Prezzo: € 259.000

N. B. Tutte le informazioni ivi contenute, comprese le metrature, sono da intendersi puramente a titolo indicativo e non costituiscono elemento contrattuale.

LEGGI TUTTO

CONDIVIDI SUI SOCIAL

DATI PRINCIPALI

Riferimento
634053
Contratto
Vendita
Tipologia
Villa
Superficie
287 mq
Locali
5
Camere da letto
4
Cucina
Abitabile
Bagni
3
Piano
Piano terra
Totale piani
2

CARATTERISTICHE

Ascensore

COSTI

Prezzo
€ 259.000,00

EFFICIENZA ENERGETICA

Stato
Da ristrutturare
Anno costruzione
1984
Riscaldamento
Autonomo
Climatizzazione
Si
Classe energetica
G
IPE
175,00 kWh/m²a

A+

A

B

C

D

E

F

175,00 kWh/m²a | Classe energetica G

G

MAPPA

ANNUNCI SIMILI

VENDITA 20
€ 449.000
Villa in Vendita a Roma (Roma)
  • Più di 5 locali
  • 270 mq
  • 4 bagni
VENDITA 20
€ 339.000
Villa in Vendita a Roma, Zona Borghesiana
  • Più di 5 locali
  • 180 mq
  • 3 bagni