CIAMPINO -Zona acqua sotterra- Via Paolo Vitale VENDITA

Via Paolo Vitale - Ciampino (Roma)
€ 460.000
  • Più di 5 locali
  • 230 mq
  • 3 bagni

Villa in Vendita a Ciampino

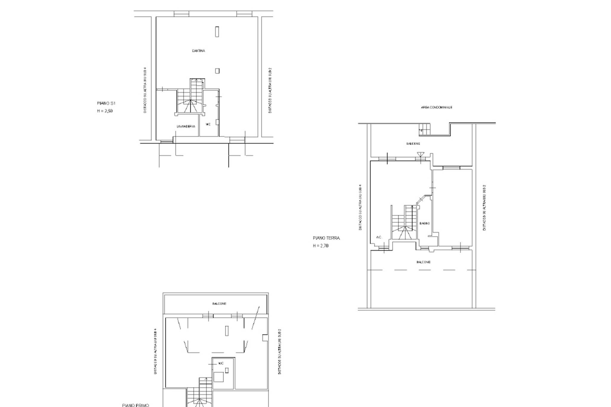
Proponiamo in vendita una villa in vendita a Ciampino, situata in una zona tranquilla e residenziale, pronta per essere abitata. La villa si sviluppa su 3 livelli, offrendo ampi spazi e un'ottima distribuzione degli ambienti garantendo una buona separazione tra la zona giorno e la zona notte. Recentemente integralmente ristrutturata e si presenta in ottime condizioni, grazie anche ai materiali di alta qualità utilizzati durante costruzione e ristrutturazione. Con una superficie totale di 230 metri quadrati, di cui 217 calpestabili, la villa è composta al piano rialzato da un patio che assolve la funzione di ingresso, un salone doppio con una bellissima cucina a vista, un bagno ed uno spazio esterno posteriore quasi totalmente verandato servito da tutti i comfort, dal barbecue all' idromassaggio, offrendo un'area ideale per trascorrere piacevoli momenti all'aperto; al primo piano troviamo 2 camere da letto mansardate spaziose, un bagno di buone dimensioni e un ampio terrazzo con accesso dalle 2 stanze; al piano della sala hobby troviamo un grande salone doppio con camino, sala tv, un ampio spazio dedicato al biliardo, un nuovissimo angolo bar, un bagno, ed una camera attualmente utilizzata come stireria, stanza armadi e ripostiglio. Le spese condominiali ammontano a soli 70 euro al mese, garantendo così bassi costi di gestione. La villa, a richiesta, può essere venduta arredata, con mobili moderni e di design, rendendo l'acquisto ancora più vantaggioso per chi desidera trasferirsi immediatamente. Inoltre, la villa è dotata di un garage privato di quasi 50 mq, dove è possibile parcheggiare comodamente due auto.

LEGGI TUTTO

CONDIVIDI SUI SOCIAL

DATI PRINCIPALI

Riferimento
628193
Contratto
Vendita
Tipologia
Villa
Superficie
230 mq
Locali
5
Camere da letto
3
Cucina
A vista
Bagni
3
Piano
Piano terra
Totale piani
3
Box/Posto auto
Doppio

CARATTERISTICHE

Ascensore

COSTI

Prezzo
€ 460.000,00
Spese condominiali
€ 70,00 / mese

EFFICIENZA ENERGETICA

Stato
Ristrutturato
Anno costruzione
2005
Riscaldamento
Autonomo
Climatizzazione
Si
Classe energetica
F
IPE
175,00 kWh/m²a

A+

A

B

C

D

E

175,00 kWh/m²a | Classe energetica F

F

G

MAPPA

ANNUNCI SIMILI