CAVE-COLLE PALME: VILLA UNIFAMILIARE DIVISIBILE IN DUE UNITÀ VENDITA

Via della Selce - Cave (Roma)
€ 259.000
  • Più di 5 locali
  • 190 mq
  • 2 bagni

Villa in Vendita a Cave

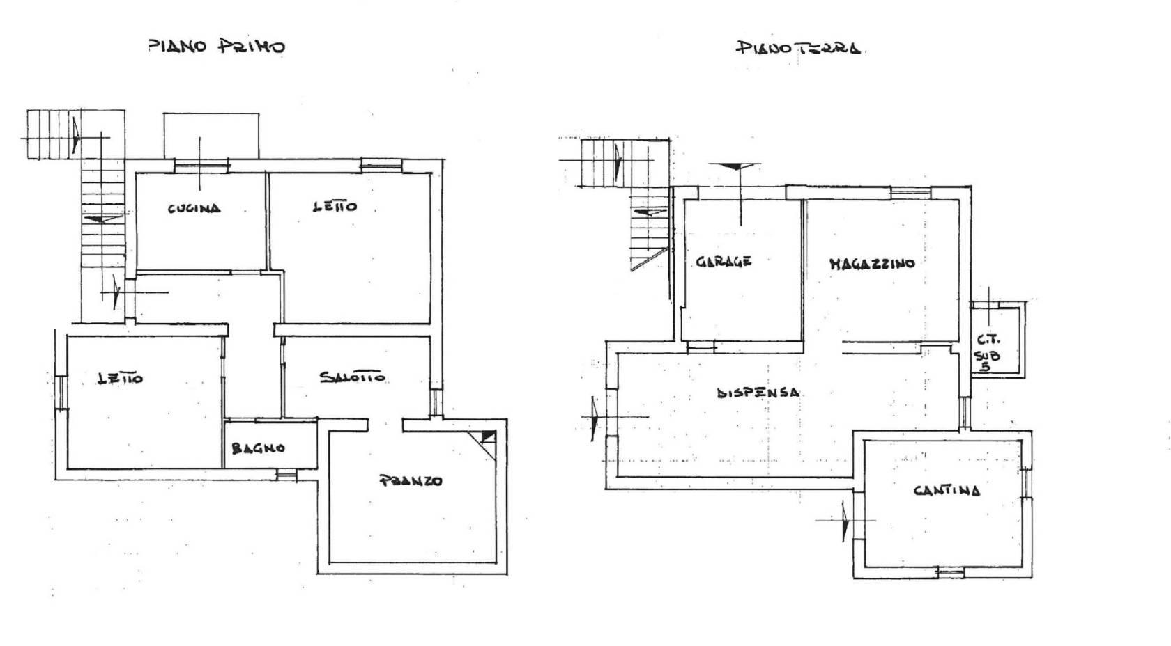
Immagina una magnifica villa unifamiliare di 190 mq, disposta su due livelli, immersa in un giardino pianeggiante e curatissimo di 3200 mq. Un'oasi di pace e tranquillità, perfetta per chi cerca ampi spazi e comfort.

IL PIANO SUPERIORE: Spazi Ampi e Luminosi
Salendo al piano superiore di 120 mq, ti accoglie un ampio ingresso che introduce agli ambienti principali. Il cuore di questo livello è la grande sala da pranzo con salotto, uno spazio conviviale e accogliente, ideale per ricevere amici e familiari o per rilassarsi. La cucina abitabile, con il suo balcone, offre una vista diretta sul giardino anteriore, rendendo ogni pasto un'esperienza più piacevole. Completano il piano due spaziose camere da letto matrimoniali e un bagno ben rifinito, garantendo privacy e comfort.

IL PIANO INFERIORE: Versatilità e Comfort
Il piano terra è un vero jolly, offrendo infinite possibilità. Qui trovi un ambiente aggiuntivo, 70mq, estremamente versatile. Può essere configurato come una sala hobby per coltivare le tue passioni o, in alternativa, come una ulteriore unità abitativa indipendente. Quest'ultima soluzione si compone di un ampio salone con angolo cottura, una camera matrimoniale e un bagno, ideale per ospiti, familiari o anche per un'eventuale rendita.

COMPLETANO LA PROPRIETA'
Sempre al piano terra, la proprietà vanta un ampio porticato di 40 mq, attrezzato con camino e forno a legna, il luogo perfetto per cene all'aperto e momenti di convivialità. A disposizione anche un locale autorimessa di 30 mq per la tua auto, una cantina di 30 mq per conservare vini e provviste, e una caratteristica grotta, perfettamente utilizzabile e agibile, che aggiunge un tocco unico e affascinante alla villa.

Questa villa è la soluzione ideale per chi desidera una residenza spaziosa, versatile e immersa nel verde, con tutti i comfort e le comodità a portata di mano.

Lo stato interno è buono e non necessita di lavori di ristrutturazione in quanto già sono stati sostituiti tutti gli infissi interni con finestre e balconi in PVC tinto legno con doppio vetro-camera mentre esternamente è stato realizzato un ampio viale in betonella che dall’ingresso carrabile automatizzato permette l’accesso ed il parcheggio alla villa.
Ottima la posizione in quanto la zona è servita da scuolabus e da fermata Cotral mentre la villa dista solo 4 km dal casello A1 di Valmontone e da tutti i servizi primari.

LEGGI TUTTO

CONDIVIDI SUI SOCIAL

DATI PRINCIPALI

Riferimento
637272
Contratto
Vendita
Tipologia
Villa
Superficie
190 mq
Locali
5
Camere da letto
3
Cucina
Abitabile
Bagni
2
Piano
1 °
Totale piani
2
Box/Posto auto
Doppio

CARATTERISTICHE

Ascensore

COSTI

Prezzo
€ 259.000,00

EFFICIENZA ENERGETICA

Stato
Abitabile
Anno costruzione
1985
Riscaldamento
Autonomo
Climatizzazione
Si
Classe energetica
G
IPE
175,00 kWh/m²a

A+

A

B

C

D

E

F

175,00 kWh/m²a | Classe energetica G

G

MAPPA

ANNUNCI SIMILI

VENDITA 20
€ 269.000
Villa in Vendita a Cave (Roma)
  • Più di 5 locali
  • 400 mq
  • 2 bagni
VENDITA 20
€ 269.000
Villa in Vendita a Cave (Roma)
  • Più di 5 locali
  • 400 mq
  • 2 bagni
VENDITA 20
€ 230.000
Villa in Vendita a Cave (Roma)
  • Più di 5 locali
  • 141 mq
  • 2 bagni
VENDITA 11
€ 140.259
Villa in Vendita a Cave (Roma)
  • Più di 5 locali
  • 232 mq
  • 4 bagni