Ariccia Alta – Porzione di ampia villa bifamiliare VENDITA

Viale dei Castani 85 - Ariccia (Roma)
€ 340.000
  • Più di 5 locali
  • 290 mq
  • 4 bagni

Villa in Vendita a Ariccia

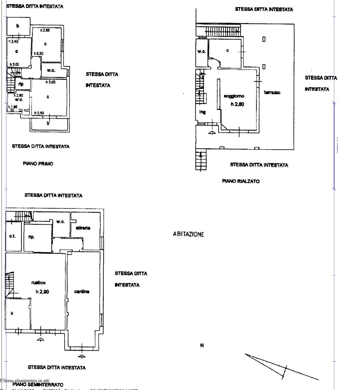
Ad Ariccia Alta, in posizione residenziale tranquilla e a pochi minuti dal centro storico, proponiamo in vendita una porzione di villa bifamiliare di ampia metratura, circa 290 mq, con giardino privato, garage e splendida esposizione panoramica con vista aperta fino al mare.

La proprietà gode di un’ottima esposizione che garantisce luce naturale del sole durante tutta la giornata e si sviluppa su tre livelli, offrendo spazi ampi e versatili ideali sia per una famiglia numerosa sia per chi desidera ambienti indipendenti all’interno della stessa abitazione.

Al piano principale si trova un grande salone con camino, un bagno e uno studio che in origine era una cucina e che conserva ancora gli attacchi, potendo quindi essere eventualmente riconvertito in cucina.

Il piano superiore ospita la zona notte con una camera matrimoniale con bagno privato a balcone vista mare, due camere aggiuntive di cui una con balcone, un ulteriore bagno e ripostiglio.

Il piano inferiore rappresenta uno degli elementi più interessanti della casa: un grande ambiente con camino utilizzato come ulteriore soggiorno, collegato direttamente al giardino tramite porta finestra. Su questo livello si trovano inoltre una cucina abitabile, bagno e due ulteriori camere. Grazie alla distribuzione degli spazi e all’accesso diretto al giardino, questo piano può funzionare di fatto come un appartamento quasi indipendente, ideale per ospiti, familiari o per creare una soluzione abitativa separata.

La proprietà è arricchita da piacevoli spazi esterni: un ampio terrazzo vivibile e una loggia coperta che permettono di godere della vista aperta e della luminosità dell’esposizione durante tutto l’arco della giornata. Nel giardino è presente anche una zona conviviale con forno a legna in muratura e area barbecue, ideale per pranzi e cene all’aperto.

Completa la proprietà un ampio garage con basculante elettrica e spazio esterno privato.

La casa, costruita negli anni ’80, si distingue per la generosa metratura, la luminosità e la grande flessibilità degli spazi, caratteristiche sempre più rare nelle proprietà della zona.

LEGGI TUTTO

CONDIVIDI SUI SOCIAL

DATI PRINCIPALI

Riferimento
640593
Contratto
Vendita
Tipologia
Villa
Superficie
290 mq
Locali
Più di 5
Camere da letto
3
Cucina
Abitabile
Bagni
4
Piano
Piano terra
Totale piani
3
Box/Posto auto
Doppio

CARATTERISTICHE

Ascensore

COSTI

Prezzo
€ 340.000,00

EFFICIENZA ENERGETICA

Stato
Abitabile
Riscaldamento
Autonomo
Classe energetica
G
IPE
175,00 kWh/m²a

A+

A

B

C

D

E

F

175,00 kWh/m²a | Classe energetica G

G

MAPPA

ANNUNCI SIMILI

VENDITA 20
€ 379.000
Villa in Vendita a Ariccia (Roma)
  • Più di 5 locali
  • 285 mq
  • 4 bagni
VENDITA 20
€ 650.000
Villa in Vendita a Ariccia (Roma)
  • Più di 5 locali
  • 470 mq
  • 4 bagni