€ 295.000
  • Più di 5 locali
  • 75 mq
  • 2 bagni

Villa in Vendita a Anzio

Ville Trifamiliari di Nuova Costruzione in Vendita
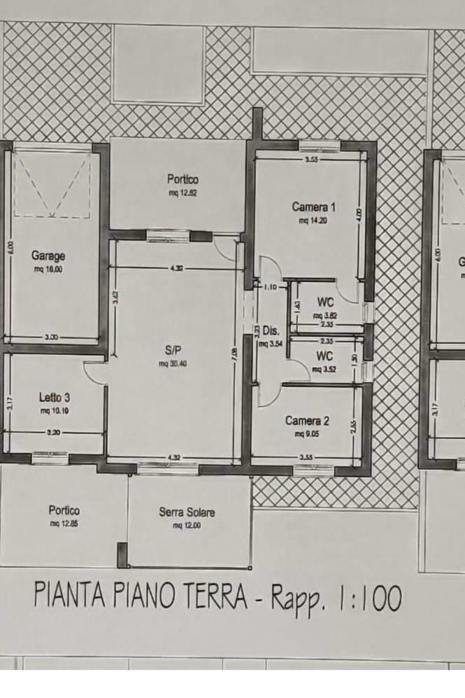
Scopri il tuo nuovo rifugio in queste splendide ville trifamiliari, progettate per offrire spazi ampi e luminosi. Con una metratura commerciale di 130 m² e 105 m² calpestabili, ogni unità è dotata di un ingresso accogliente, un salone con cucina a vista perfetto per momenti conviviali, tre camere da letto spaziose e due bagni moderni.
Le verande di circa 25 mq e la serra solare di 12 mq offrono l'opportunità di godere del sole in ogni stagione. Ogni porzione è circondata da giardini di varie dimensioni, ideali per famiglie e amanti della natura. La classe energetica A4 garantisce un elevato risparmio energetico, mentre il box auto di 18 mq aggiunge un ulteriore valore all'immobile.
Situate in una posizione strategica con orientamento Sud, Est e Ovest, queste ville sono perfette anche per persone con mobilità ridotta. I prezzi partono da €295.000 per la porzione centrale e €325.000 per la porzione angolare. Non perdere l'occasione di vivere in una casa moderna e funzionale, contattaci per maggiori informazioni!
Rif. 1061

LEGGI TUTTO

CONDIVIDI SUI SOCIAL

DATI PRINCIPALI

Riferimento
643061
Contratto
Vendita
Tipologia
Villa
Superficie
75 mq
Locali
5
Camere da letto
3
Cucina
A vista
Bagni
2
Piano
Piano terra
Totale piani
1
Box/Posto auto
Singolo

CARATTERISTICHE

Ascensore

COSTI

Prezzo
€ 295.000,00

EFFICIENZA ENERGETICA

Stato
Nuovo/In costruzione
Anno costruzione
2026
Riscaldamento
Autonomo
Climatizzazione
Predisposizione
Classe energetica
A4
IPE
351,00 kWh/m²a
351,00 kWh/m²a | Classe energetica A4

A4

A3

A2

A1

B

C

D

E

F

G

MAPPA

ANNUNCI SIMILI

VENDITA 20
€ 375.000
Villa in Vendita a Anzio (Roma)
  • Più di 5 locali
  • 270 mq
  • 3 bagni
VENDITA 20
€ 190.000
Villa in Vendita a Anzio (Roma)
  • Più di 5 locali
  • 211 mq
  • 2 bagni
VENDITA 20
€ 265.000
Villa in Vendita a Anzio (Roma)
  • Più di 5 locali
  • 138 mq
  • 2 bagni
VENDITA 20
€ 229.000
Villa in Vendita a Anzio (Roma)
  • Più di 5 locali
  • 137 mq
  • 2 bagni
VENDITA 20
€ 430.000
Villa in Vendita a Anzio (Roma)
  • Più di 5 locali
  • 165 mq
  • 2 bagni
VENDITA 20
€ 380.250
Villa in Vendita a Anzio (Roma)
  • Più di 5 locali
  • 164 mq
  • 2 bagni