AFFARE. RIANO. ZONA BELVEDERE VILLINO RISTRUTTURATO VENDITA

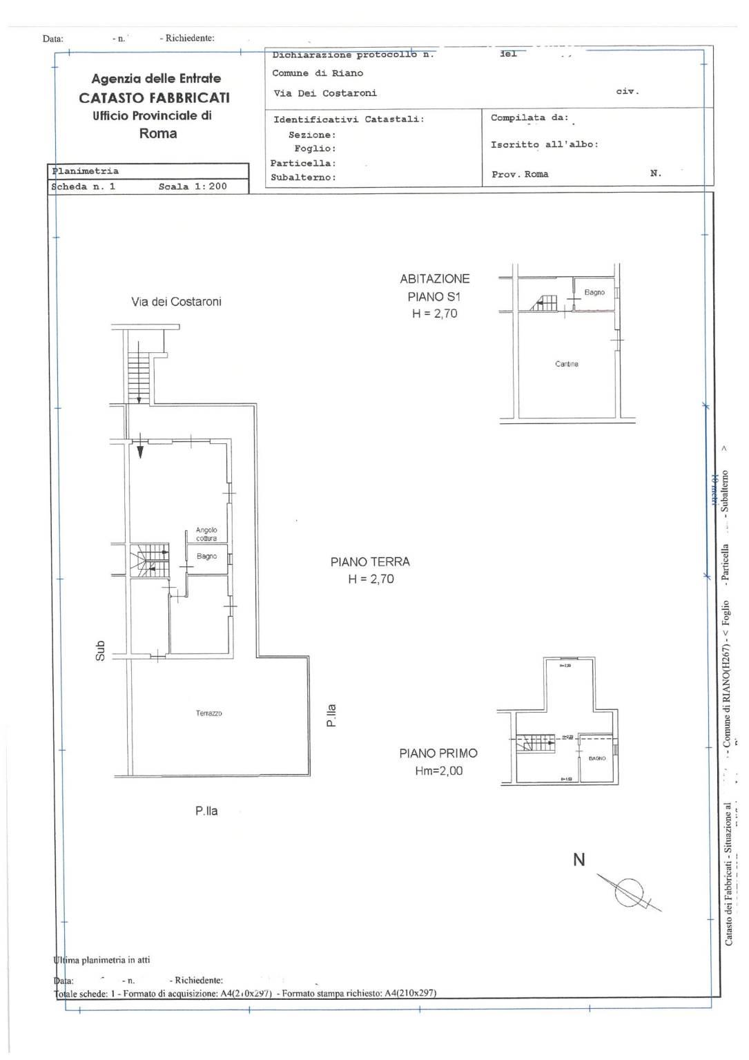
Via dei Costaroni - Riano (Roma)
€ 229.000
  • Più di 5 locali
  • 160 mq
  • 3 bagni

Villa in Vendita a Riano

RIANO – Zona Belvedere: In posizione panoramica e riservata, con affaccio sulla Valle del Tevere, Rivolta Immobiliare propone in vendita un villino a schiera capofila, recentemente e finemente ristrutturato, disposto su tre livelli e caratterizzato da ambienti ampi, luminosi e ben distribuiti.
Al primo piano si trova una confortevole camera da letto accompagnata da un bagno finestrato con vasca. Il piano terra accoglie un salone con angolo cottura, un pratico corridoio che conduce alla zona notte composta da due camere, un bagno e un piacevole balcone. Il piano seminterrato offre ulteriori spazi vivibili grazie a un ampio salone con camino, una cucina, una camera matrimoniale, una cameretta e un bagno, risultando ideale anche per ospiti o per chi desidera ambienti indipendenti.
Completa la proprietà un giardino privato pavimentato, perfetto per momenti di relax all’aperto o per conviviali occasioni in famiglia e con amici. La posizione rappresenta un valore aggiunto grazie alla tranquillità del contesto e agli ottimi collegamenti: a soli 4 km dalla Via Tiberina e dal casello autostradale di Castelnuovo di Porto, che consentono di raggiungere rapidamente Roma e le principali arterie di comunicazione.

Prezzo richiesto: € 229.000.

SE DESIDERA VENDERE O AFFITTARE IL SUO IMMOBILE, CI CONTATTI PURE PER UNA STIMA GRATUITA SENZA NESSUN IMPEGNO.
Cosa aspetti? Chiama Rivolta Immobiliare al numero 066871062 oppure consulta il nostro sito www.immobiliarerivolta.com SIAMO ALLA RICERCA DI PERSONE GIOVANI E MOTIVATE DA ASSUMERE NEI NOSTRI TEAM COMMERCIALI Se hai un’età compresa tra i 18 e i 40 anni e sei in cerca di un lavoro coinvolgente, dinamico, full time, aspiri ad alti guadagni e ti piace il lavoro di squadra non esitare a inviarci il tuo curriculum vitae all’ indirizzo e sarai ricontattato per un colloquio. Avrai modo di lavorare in un contesto stimolante e in continua crescita.

LEGGI TUTTO

CONDIVIDI SUI SOCIAL

DATI PRINCIPALI

Riferimento
642764
Contratto
Vendita
Tipologia
Villa
Superficie
160 mq
Locali
Più di 5
Camere da letto
5
Cucina
Angolo cottura
Bagni
3
Piano
Piano terra
Totale piani
3
Box/Posto auto
Doppio

CARATTERISTICHE

Ascensore

COSTI

Prezzo
€ 229.000,00

EFFICIENZA ENERGETICA

Stato
Ristrutturato
Anno costruzione
2006
Riscaldamento
Autonomo
Climatizzazione
Si
Classe energetica
G
IPE
175,00 kWh/m²a

A+

A

B

C

D

E

F

175,00 kWh/m²a | Classe energetica G

G

MAPPA

ANNUNCI SIMILI

VENDITA 20
€ 238.000
Villa in Vendita a Riano (Roma)
  • Più di 5 locali
  • 180 mq
  • 3 bagni
VENDITA 20
€ 640.000
Villa in Vendita a Riano (Roma)
  • Più di 5 locali
  • 360 mq
  • 4 bagni
VENDITA 20
Trattativa Riservata
Villa in Vendita a Riano (Roma)
  • Più di 5 locali
  • 158 mq
  • 3 bagni
VENDITA 20
€ 360.000
Villa in Vendita a Riano (Roma)
  • Più di 5 locali
  • 336 mq
  • 3 bagni
VENDITA 20
€ 990.000
Villa in Vendita a Riano (Roma)
  • Più di 5 locali
  • 370 mq
  • 4 bagni
VENDITA 20
€ 529.000
Villa in Vendita a Riano (Roma)
  • Più di 5 locali
  • 308 mq
  • 4 bagni
VENDITA 20
€ 990.000
Villa in Vendita a Riano (Roma)
  • Più di 5 locali
  • 405 mq
  • 4 bagni
VENDITA 20
€ 625.000
Villa in Vendita a Riano (Roma)
  • Più di 5 locali
  • 400 mq
  • 4 bagni