ACILIA – VIA GIUSEPPE FAGNANO VENDITA

Via Monsignor Giuseppe Fagnano - Roma, Zona Acilia
€ 430.000
  • Più di 5 locali
  • 365 mq
  • 4 bagni

Villa in Vendita a Roma

ACILIA – VIA GIUSEPPE FAGNANO
Proponiamo in vendita un'intera palazzina di ampia metratura, suddivisa in due unità abitative indipendenti di circa 110 mq ciascuna, circondata da un giardino perimetrale di circa 400 mq.

Gli appartamenti sono così sviluppati:

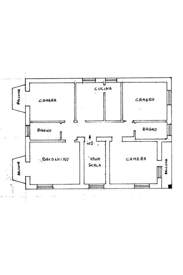
- PIANO TERRA
Soggiorno, cucina abitabile, bagno finestrato con vasca, corridoio, tre camere matrimoniali (una con balconcino), una cameretta/studio e secondo bagno finestrato di servizio.

- PRIMO PIANO
Salone con balconcino, cucina abitabile con balconcino, tre camere matrimoniali (una con balconcino), corridoio e due bagni finestrati con doccia.

- SECONDO PIANO
Terrazza comune di circa 150 mq perimetrali con un locale di deposito.

ACCESSORI E RIVESTIMENTI:
Riscaldamento autonomo, infissi in legno doppio vetro, doppio ingresso carrabile e pedonale.
La posizione è strategica, a pochi passi da tutti i principali servizi, da Piazza d’Acilia, dalle fermate degli autobus e dalla stazione del trenino.

Completa la soluzione un magazzino di 60 mq al piano terra con categoria catastale A4.

Motivi per cui vale la pena acquistare l’immobile:
- DUE UNITÀ ABITATIVE INDIPENDENTI
- GIARDINO DI 400 MQ
- TERRAZZA DI 150 MQ
- DOPPIO INGRESSO
- ESPOSIZIONE QUADRUPLA
- POSIZIONE SERVITA

———————————————————————————————————————————————-
Le indicazioni riportate e le immagini devono considerarsi indicative e non hanno alcun vincolo contrattuale. Alcune metrature sono puramente indicative. Alcuni indirizzi di Google Maps potrebbero non corrispondere esattamente all'ubicazione dell'immobile ma indicare la zona, questo al fine di garantire la privacy dei proprietari. L’Agenzia Immobiliare Nuova Axa Palocco S. r. L. con sede in Via Eschilo 186C, declina ogni responsabilità per eventuali ed involontarie incongruenze tra le effettive caratteristiche dell’immobile e la descrizione informativa.

LEGGI TUTTO

CONDIVIDI SUI SOCIAL

DATI PRINCIPALI

Riferimento
629241
Contratto
Vendita
Tipologia
Villa
Superficie
365 mq
Locali
Più di 5
Camere da letto
Più di 5
Cucina
Abitabile
Bagni
4
Piano
2 °
Totale piani
2
Box/Posto auto
Doppio

CARATTERISTICHE

Ascensore

COSTI

Prezzo
€ 430.000,00

EFFICIENZA ENERGETICA

Stato
Abitabile
Anno costruzione
1953
Riscaldamento
Autonomo
Classe energetica
G
IPE
175,00 kWh/m²a

A+

A

B

C

D

E

F

175,00 kWh/m²a | Classe energetica G

G

MAPPA

ANNUNCI SIMILI

VENDITA 20
€ 405.000
Villa in Vendita a Roma, Zona Acilia
  • Più di 5 locali
  • 269 mq
  • 2 bagni
VENDITA 20
€ 480.000
Villa in Vendita a Roma, Zona Acilia
  • Più di 5 locali
  • 350 mq
  • 3 bagni
VENDITA 20
€ 795.000
Villa in Vendita a Roma, Zona Axa
  • Più di 5 locali
  • 408 mq
  • 4 bagni
VENDITA
€ 530.000
Villa in Vendita a Roma, Zona Axa
  • Più di 5 locali
  • 265 mq
  • 4 bagni
VENDITA 20
€ 610.000
Villa in Vendita a Roma, Zona Axa
  • Più di 5 locali
  • 300 mq
  • 4 bagni
VENDITA 20
€ 659.000
Villa in Vendita a Roma, Zona Axa
  • Più di 5 locali
  • 350 mq
  • 4 bagni
VENDITA 20
€ 579.000
Villa in Vendita a Roma, Zona Axa
  • Più di 5 locali
  • 255 mq
  • 4 bagni