Via Orazio Raimondo Tor Vergata Romanina VENDITA

Via Orazio Raimondo - Roma, Zona Romanina
€ 600.000
  • 1 locale
  • 510 mq
  • 2 bagni

Ufficio in Vendita a Roma

Fabbricato ristrutturato in vendita – Tor Vergata, Via Orazio Raimondo

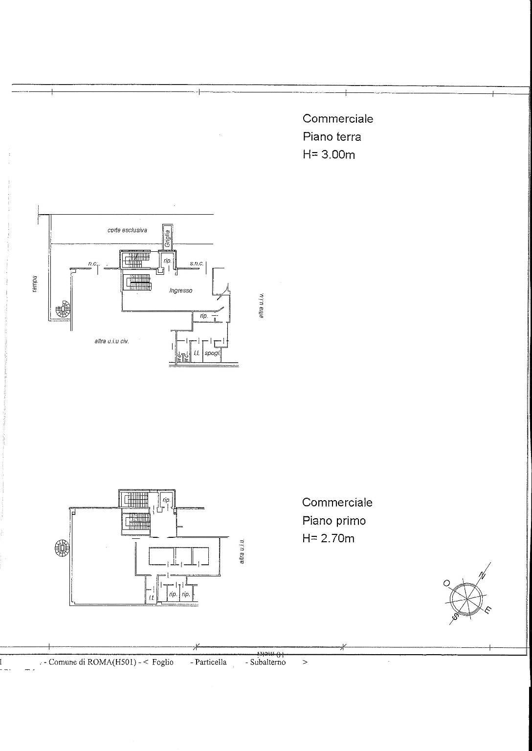
In zona Tor Vergata, in Via Orazio Raimondo, proponiamo in vendita fabbricato cielo-terra completamente ristrutturato, con superficie complessiva di circa 500 mq distribuita su due piani, con 4 posti auto ad uso esclusivo. L’immobile è stato parzialmente ristrutturato, secondo le più moderne tecniche costruttive e impiantistiche, che lo rende una opportunità unica per utilizzi commerciali, logistici o direzionali.

Superfici e destinazioni catastali:

510 mq – Categoria D/8 (immobili per attività commerciali, grandi superfici di vendita, capannoni, logistica, conservazione surgelati, ecc.)

Posizione strategica:
L’immobile è situato in una zona centrale e ottimamente collegata:

Metro Anagnina a circa 1,2 km

Aeroporto di Ciampino a circa 20 km
Aeroporto di Fiumicino a circa 35 km

Soluzione ideale per investitori o utilizzatori finali alla ricerca di un immobile moderno, versatile e immediatamente operativo.

Per ulteriori informazioni o per fissare una visita, contattaci.

LEGGI TUTTO

CONDIVIDI SUI SOCIAL

DATI PRINCIPALI

Riferimento
629715
Contratto
Vendita
Tipologia
Immobile - Ufficio
Superficie
510 mq
Locali
1
Bagni
2
Piano
Piano terra
Totale piani
2
Box/Posto auto
Doppio

CARATTERISTICHE

Ascensore

COSTI

Prezzo
€ 600.000,00

EFFICIENZA ENERGETICA

Stato
Ristrutturato
Classe energetica
G
IPE
175,00 kWh/m²a

A+

A

B

C

D

E

F

175,00 kWh/m²a | Classe energetica G

G

MAPPA

ANNUNCI SIMILI

VENDITA 12
€ 880
Ufficio in Vendita a Roma, Zona Cinecittà
  • 3 locali
  • 81 mq
  • 2 bagni
VENDITA 12
€ 495.000
Ufficio in Vendita a Roma, Zona Cinecittà
  • Più di 5 locali
  • 178 mq
  • 4 bagni
VENDITA 9
€ 405.000
Ufficio in Vendita a Roma, Zona Cinecittà
  • 4 locali
  • 135 mq
  • 3 bagni