VIA GIOVANNI SILVA - Vigna Murata - Fonte Meravigliosa VENDITA

Via Giovanni Silva 5 - Roma (Roma)
€ 398.000
  • Più di 5 locali
  • 213 mq
  • 2 bagni

Ufficio in Vendita a Roma

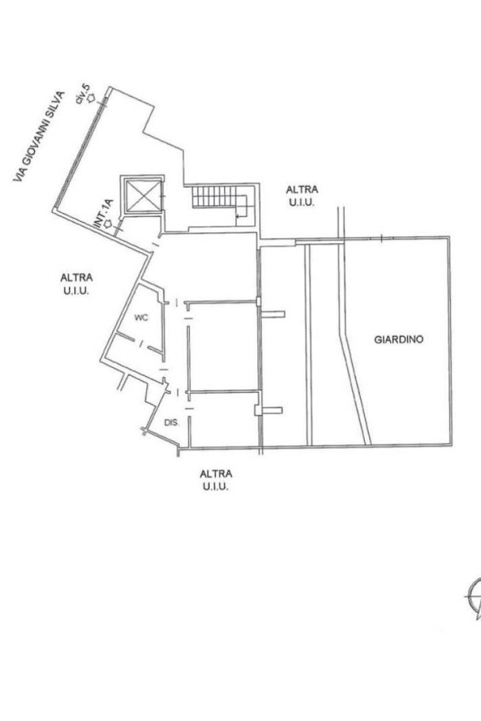
In zona Colle di Mezzo, a pochi minuti da Vigna Murata e Fonte Meravigliosa, proponiamo in vendita un ufficio di rappresentanza di 213 mq, situato in una palazzina signorile in cortina, con un secondo accesso indipendente.
L’immobile è composto da:
- Ingresso
-Sala riunioni spaziosa
-Cinque stanze operative, luminose e ben distribuite
-Due bagni
-Ampio corridoio, ideale per agevolare il passaggio tra gli ambienti.

L’ufficio è dotato di aria condizionata, controsoffitti con impianto di illuminazione integrato e finiture di qualità, garantendo un ambiente confortevole e professionale.
La posizione è strategica, ben collegata con i principali servizi e le arterie stradali nonchè vicinissimo alla stazione Metro Laurentina.
Perfetto per studi professionali, società di consulenza o attività che necessitano di spazi funzionali e di rappresentanza.

Per maggiori informazioni e per fissare una visita, contattaci!

LEGGI TUTTO

CONDIVIDI SUI SOCIAL

DATI PRINCIPALI

Riferimento
643252
Contratto
Vendita
Tipologia
Immobile - Ufficio
Superficie
213 mq
Locali
Più di 5
Bagni
2
Piano
Piano terra
Totale piani
5

CARATTERISTICHE

Ascensore

COSTI

Prezzo
€ 398.000,00
Spese condominiali
€ 92,00 / mese

EFFICIENZA ENERGETICA

Stato
Abitabile
Anno costruzione
1990
Climatizzazione
Si
Classe energetica
G
IPE
175,00 kWh/m²a

A+

A

B

C

D

E

F

175,00 kWh/m²a | Classe energetica G

G

MAPPA

ANNUNCI SIMILI

VENDITA 17
€ 88.800
Ufficio in Vendita a Roma (Roma)
  • Più di 5 locali
  • 120 mq
  • 2 bagni
VENDITA 20
€ 990.000
Ufficio in Vendita a Roma, Zona Torrino
  • Più di 5 locali
  • 267 mq
  • 2 bagni
VENDITA 20
€ 630.000
Ufficio in Vendita a Roma, Zona San Paolo
  • Più di 5 locali
  • 221 mq
  • 3 bagni
VENDITA 20
€ 780.000
Ufficio in Vendita a Roma, Zona Mostacciano
  • Più di 5 locali
  • 423 mq
  • 4 bagni
VENDITA 20
€ 680.000
Ufficio in Vendita a Roma, Zona Appio Latino
  • Più di 5 locali
  • 680 mq
  • 2 bagni