Ufficio Via Anton Giulio Bragaglia n. 78 Scala G VENDITA

Via Anton Giulio Bragaglia - Roma, Frazione La Storta
€ 250.500
  • 4 locali
  • 147 mq

Ufficio in Vendita a Roma

POSSIBILITA' DI ASSISTENZA PER TUTTI GLI IMMOBILI IN ASTA, ANCHE QUELLI NON PUBBLICATI DAL NOSTRO STUDIO.
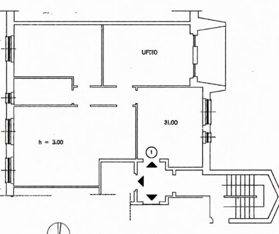
Roma (RM) Via Anton Giulio Bragaglia n. 78. Appartamento uso ufficio sito in Roma via Anton Giulio Bragaglia n. 78, scala G, interno 1, piano 1, composto da ingresso/reception, tre vani principali, un servizio igienico, per una superficie convenzionale di complessivi mq. 147,00.
OFFERTA MINIMA: € 250.500,00
DATA DELL'ASTA: 07/05/2026 ore 16:00
Casa è dove si trova il cuore. (“Plinio il vecchio”)
Con lo STUDIO GIULIANI REAL ESTATE il sogno diventa realtà!
Il nostro team di professionisti offre assistenza, consulenza legale e stragiudiziale per tutti gli immobili in asta giudiziaria e libero mercato. I servizi offerti al nostro cliente sono molteplici:
- Ricerca dell’immobile con valutazione immobiliare
- Valutazione preliminare tecnica e studio della perizia con geometra in sede;
- Valutazione economica con broker finanziario in sede con possibilità di mutuo fino al 100% del prezzo di aggiudicazione;
- Prenotazione visita degli immobili oggetto di interesse tramite il custode giudiziario;
- Partecipazione in asta, il cliente viene seguito fino alla consegna delle chiavi;
- Effettuiamo inoltre pratiche di saldo e stralcio e di acquisto del credito dai maggiori istituti bancari.
- La nostra parcella è dovuta solo in caso di aggiudicazione.
- Il nostro team è a vostra completa disposizione per fornirvi tutte le informazioni e per fissare un appuntamento per una consulenza gratuita presso le sedi di Velletri o Nettuno.
Puoi consultare tutti gli immobili disponibili in aggiornamento quotidiano sulla nostra pagina agenzia.
Contattaci per una consulenza gratuita!

LEGGI TUTTO

CONDIVIDI SUI SOCIAL

DATI PRINCIPALI

Riferimento
626852
Contratto
Vendita
Tipologia
Immobile - Ufficio
Superficie
147 mq
Locali
4
Piano
1 °
Totale piani
4

CARATTERISTICHE

Balcone Terrazzo Ascensore

COSTI

Prezzo
€ 250.500,00

EFFICIENZA ENERGETICA

Stato
Abitabile

MAPPA

ANNUNCI SIMILI

VENDITA 20
€ 850.000
Ufficio in Vendita a Roma (Roma)
  • Più di 5 locali
  • 380 mq
  • 3 bagni
VENDITA 5
€ 870.000
Ufficio in Vendita a Roma (Roma)
  • Più di 5 locali
  • 350 mq
  • 3 bagni
VENDITA 20
€ 230.000
Ufficio in Vendita a Roma (Roma)
  • Più di 5 locali
  • 152 mq
  • 1 bagno
VENDITA 7
€ 1.200.000
Ufficio in Vendita a Roma (Roma)
  • Più di 5 locali
  • 598 mq
VENDITA 12
€ 189.064
Ufficio in Vendita a Roma (Roma)
  • Più di 5 locali
  • 217 mq
  • 1 bagno
VENDITA 6
€ 8.000.000
Ufficio in Vendita a Roma (Roma)
  • Più di 5 locali
  • 5000 mq
  • 4 bagni
VENDITA 10
Trattativa Riservata
Ufficio in Vendita a Roma (Roma)
  • Più di 5 locali
  • 500 mq
  • 4 bagni
VENDITA 4
Trattativa Riservata
Ufficio in Vendita a Roma (Roma)
  • Più di 5 locali
  • 230 mq
  • 3 bagni
VENDITA 5
€ 500.000
Ufficio in Vendita a Roma (Roma)
  • Più di 5 locali
  • 170 mq
  • 2 bagni