Ufficio - Studio in Affitto AFFITTO

Via dei Due Ponti 247 - Roma, Zona Tomba Di Nerone
€ 850 mensili
  • 3 locali
  • 90 mq
  • 1 bagno

Ufficio in Affitto a Roma

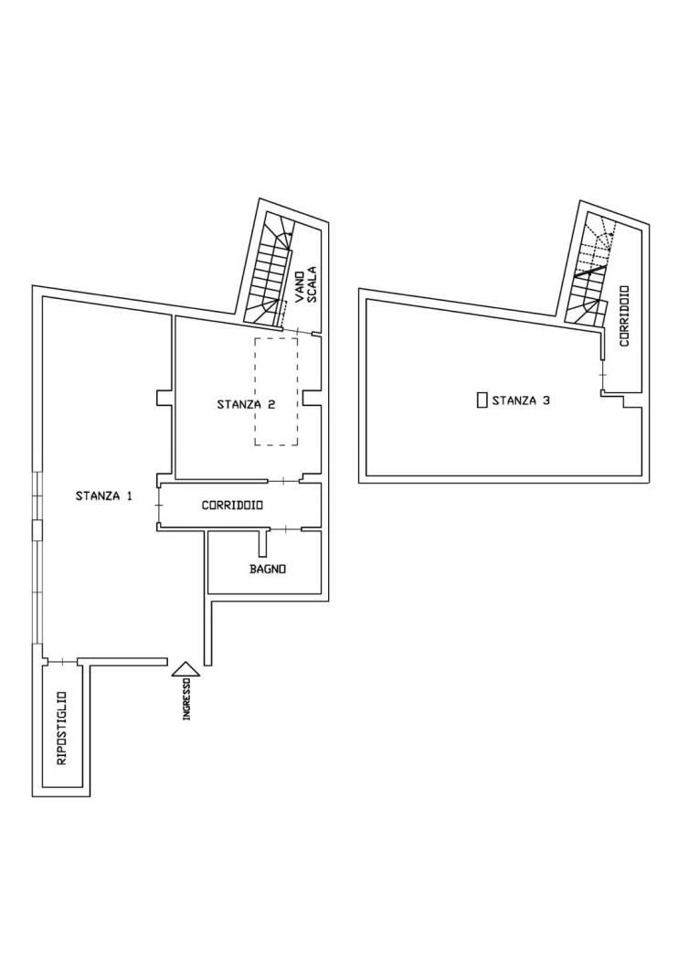
In Via Due Ponti, in un contesto residenziale tranquillo e ben curato, proponiamo in locazione un ampio locale accatastato C/2 di circa 90 mq, situato al piano seminterrato.
L’immobile si distingue per le ottime condizioni interne, decisamente superiori alla media della categoria: gli ambienti sono ben rifiniti, con pavimentazione in parquet in parte degli spazi e una distribuzione interna funzionale che lo rende estremamente versatile.
Entrando troviamo un ampio ambiente principale, facilmente organizzabile in base alle proprie esigenze, a cui si affiancano ulteriori stanze separate ideali come ufficio, archivio o area di supporto. Un comodo disimpegno collega i vari ambienti e conduce al bagno con aspiratore.
Un valore aggiunto è rappresentato dalla presenza di un ulteriore locale al piano inferiore, collegato internamente tramite scala, perfetto come deposito o magazzino.
Il locale è dotato di finestre con grate di sicurezza, che garantiscono una buona aerazione oltre a maggiore sicurezza, e dispone di impianti già presenti, rendendolo pronto all’uso.
Soluzione ideale per chi è alla ricerca di uno spazio funzionale e ben tenuto da adibire a deposito, archivio, logistica o attività operative leggere.
Finiture:
- parquet
- bagno in travertino
- termoautonomo
- aria condizionata
- impianto di aerazione forzata
- completamente cablato LAN
- FTTH (fibra ottica vera)
- TV sat
- videocitofono
- portone blindato

Per qualsiasi ulteriori informazioni i nostri uffici sono in Roma, Via Due Ponti 235a e Viale Bruno Buozzi 19a e seguono il seguente orario: dal lunedi al venerdi dalle ore 09.00 alle ore 19.30, il sabato dalle ore 09.00 alle ore 13.00.

Sito internet: www.pianoalto.it

LEGGI TUTTO

CONDIVIDI SUI SOCIAL

DATI PRINCIPALI

Riferimento
641435
Contratto
Affitto
Tipologia
Immobile - Ufficio
Superficie
90 mq
Locali
3
Bagni
1
Piano
Seminterrato
Totale piani
2

CARATTERISTICHE

Ascensore

COSTI

Canone
Affitto € 850,00 al mese
Tipo locazione
4+4
Spese condominiali
€ 40,00 / mese, non incluse nel canone

EFFICIENZA ENERGETICA

Stato
Ristrutturato
Anno costruzione
1970
Riscaldamento
Autonomo
Climatizzazione
Si
Classe energetica
G
IPE
351,00 kWh/m²a

A+

A

B

C

D

E

F

351,00 kWh/m²a | Classe energetica G

G

MAPPA

ANNUNCI SIMILI

AFFITTO 20
€ 2.500 mensili
Ufficio in Affitto a Roma (Roma)
  • Più di 5 locali
  • 123 mq
  • 1 bagno
AFFITTO 5
Trattativa Riservata
Ufficio in Affitto a Roma, Zona Labaro
  • Più di 5 locali
  • 680 mq
  • 4 bagni
AFFITTO 11
€ 5.500 mensili
Ufficio in Affitto a Roma, Zona Labaro
  • Più di 5 locali
  • 500 mq
  • 3 bagni
AFFITTO 11
€ 11.000 mensili
Ufficio in Affitto a Roma, Zona Labaro
  • Più di 5 locali
  • 1000 mq
  • 4 bagni