UFFICIO IN LOCAZIONE in Via Laurentina 157, Pomezia(RM) AFFITTO

Via Laurentina 157 - Pomezia (Roma)
€ 400 mensili
  • 1 locale
  • 54 mq
  • 1 bagno

Ufficio in Affitto a Pomezia

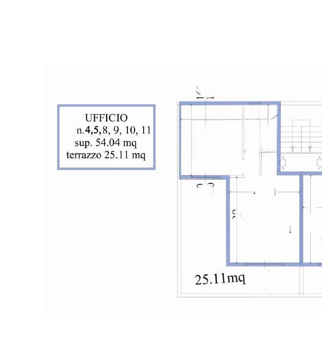
Ufficio di 54 mq con Terrazzo – Via Laurentina 157 - Consegna in buono stato generale
Proponiamo in locazione un ufficio di circa 54 mq, situato al primo piano di una palazzina in contesto tranquillo e professionale. Gli ambienti risultano funzionali e luminosi, con una distribuzione ideale per studi professionali o piccole attività direzionali.
L’immobile è composto da una sala d’attesa, perfetta per l’accoglienza, e due stanze operative con uscita sia sul portico e il balcone. È presente un servizio igienico con finestra e un terrazzo di circa 25 mq, che rappresenta un prezioso spazio esterno aggiuntivo.
L’ufficio viene consegnato in buono stato generale, al momento necessita di un ripristino a cura della proprietà per essere pienamente operativo, consentendo comunque una personalizzazione degli ambienti secondo le proprie esigenze. L’accesso avviene tramite scala (non idoneo per persone con disabilità). Diversi posti auto pubblici al servizio delle attività commerciali al piano terra e degli uffici al piano primo, utili per clienti e collaboratori.

Caratteristiche principali

Superficie: 54 mq ca.
Primo piano
Sala d’attesa con affaccio su balcone
2 stanze operative con accesso a portico e balcone
Servizio igienico con antibagno
Terrazzo di circa 25 mq
Riscaldamento presente
Accesso tramite scala
Posti auto pubblici nelle vicinanze
Consegna in buono stato, immobile da ripristinare

Punti di forza

Layout funzionale: sala d’attesa + stanze operative, ideale per diverse tipologie di professionisti.
Terrazzo vivibile: spazio esterno ideale per momenti di pausa o attività complementari.
Buona luminosità grazie ai molteplici affacci.
Possibilità di personalizzazione durante il ripristino.
Zona servita con facilità di parcheggio.

TECNOCASA IMPRESA POMEZIA

Ci occupiamo di: IMMOBILI INDUSTRIALI, COMMERCIALI e ARTIGIANALI.

C'è chi si occupa di tutto.
E poi c'è, chi, da oltre 30 anni si occupa solo d'impresa.

Non affidarti al caso, AFFIDATI AI NOSTRI PROFESSIONISTI.

Affiliato: SERVIZI DI IMPRESA SRL
Via del Mare, 33 - POMEZIA (RM)

LEGGI TUTTO

CONDIVIDI SUI SOCIAL

DATI PRINCIPALI

Riferimento
642962
Contratto
Affitto
Tipologia
Immobile - Ufficio
Superficie
54 mq
Locali
1
Bagni
1
Piano
1 °
Totale piani
1
Box/Posto auto
Doppio

CARATTERISTICHE

Ascensore

COSTI

Canone
Affitto € 400,00 al mese
Tipo locazione
4+4
Spese condominiali
€ 50,00 / mese, non incluse nel canone

EFFICIENZA ENERGETICA

Stato
Abitabile
Anno costruzione
1999
Riscaldamento
Autonomo
Classe energetica
G
IPE
175,00 kWh/m²a

A+

A

B

C

D

E

F

175,00 kWh/m²a | Classe energetica G

G

MAPPA

ANNUNCI SIMILI

AFFITTO 9
€ 600 mensili
Ufficio in Affitto a Pomezia (Roma)
  • 2 locali
  • 52 mq
  • 1 bagno