UFFICI IN STRUTTURA MODERNA VENDESI VENDITA

Via Montenero - Guidonia Montecelio (Roma)
€ 550.000
  • Più di 5 locali
  • 500 mq
  • 4 bagni

Ufficio in Vendita a Guidonia Montecelio

La Gala Group Real Estate propone in vendita una moderna struttura di 500 mq a Guidonia, precisamente a Colle Verde a pochi minuti dall'uscita CENTRALE DEL LATTE del GRA.
La proprietà è composta da 3 unità vendibili anche separatamente; di cui due delle quali sono già comunicanti.
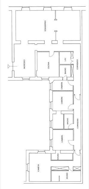
L'immobile è così composto : ingresso, reception, sala, 10 stanze di varia metratura e 9 bagni.
Le stanze che compongono la proprietà possono essere facilmente rimosse al fine di creare un unico ambiente lavorativo.
L'accesso agli uffici,posti al secondo piano, è consentito sia dalle scale che dall'ascensore privato.
Completano la proprietà 4 posti auto di pertinenza.
La richiesta è pari ad Euro 550.000,00.
Possibilità anche di locazione.
Per maggiori informazioni contattare i nostri uffici ai seguenti numeri : 06.89274537 339.3350505 , oppure inviare una mail a galagroupre@gmail.com. La Gala Group Real Estate è una società Leader che opera nel settore dell’intermediazione immobiliare da diversi anni, specializzata nel settore del commerciale, nelle Vendite e nelle Locazioni di prestigio, cura inoltre Fondi immobiliari per conto di un portfolio clienti selezionato e fidelizzatosi nel tempo, rappresentato dai più noti brand nazionali ed internazionali che operano nel settore dell’abbigliamento, della profumeria, delle calzature e della ristorazione. In un’economia globale, la visione lungimirante e le strategie di business innovative per un settore tradizionale e tradizionalista come l’immobiliare, hanno permesso alla Società di Distinguersi. Collegato al gruppo vi è un team di professionisti altamente specializzati, nello specifico la Gala Group Real Estate mette a disposizione della propria clientela molteplici figure professionali come gli architetti che oltre ad occuparsi di progettazione, esecuzione, direzione lavori, curano anche ogni aspetto tecnico ed amministrativo. Le informazioni, le immagini e le planimetrie presenti nell’ annuncio sono meramente indicative e non costituiscono elementi contrattuali.

LEGGI TUTTO

CONDIVIDI SUI SOCIAL

DATI PRINCIPALI

Riferimento
637366
Contratto
Vendita
Tipologia
Immobile - Ufficio
Superficie
500 mq
Locali
Più di 5
Bagni
4
Piano
2 °
Totale piani
2
Box/Posto auto
Doppio

CARATTERISTICHE

Ascensore Arredato Allarme

COSTI

Prezzo
€ 550.000,00

EFFICIENZA ENERGETICA

Stato
Ristrutturato
Anno costruzione
2018
Riscaldamento
Autonomo
Climatizzazione
Si
Classe energetica
D
IPE
175,00 kWh/m²a

A+

A

B

C

175,00 kWh/m²a | Classe energetica D

D

E

F

G

MAPPA

ANNUNCI SIMILI

VENDITA 20
€ 1.800.000
Ufficio in Vendita a Roma (Roma)
  • Più di 5 locali
  • 550 mq
  • 4 bagni
VENDITA 20
€ 260.000
Ufficio in Vendita a Roma (Roma)
  • Più di 5 locali
  • 170 mq
  • 2 bagni
VENDITA 20
€ 980.000
Ufficio in Vendita a Roma (Roma)
  • Più di 5 locali
  • 533 mq
  • 4 bagni