UFFICI IN LOCAZIONE IN VIA NARO 75/77, POMEZIA AFFITTO

Via Naro 75 - Pomezia (Roma)
€ 2.400 mensili
  • 1 locale
  • 600 mq
  • 4 bagni

Ufficio in Affitto a Pomezia

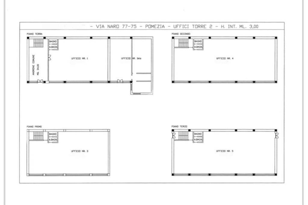
Proponiamo in locazione a Pomezia, in Via Naro, un intero edificio direzionale sviluppato su quattro livelli, per una superficie complessiva di circa 600 mq, composto da tre piani da 150 mq ciascuno e un piano terra di circa 100 mq.
La struttura rappresenta una soluzione ideale per aziende che necessitano di spazi ampi, modulabili e distribuiti in modo funzionale all’interno dello stesso stabile.
Ogni piano è caratterizzato da un ampio open space molto luminoso, facilmente adattabile a diverse configurazioni operative, ed è dotato di bagno con antibagno e riscaldamento autonomo.
Gli ambienti risultano versatili, ben distribuiti e adatti a molteplici attività direzionali, amministrative e professionali.
Completa la proposta la presenza di posti auto privati in area antistante, elemento di particolare valore per aziende, collaboratori e clientela.
Caratteristiche principali

Superficie complessiva: circa 600 mq
Composizione:
Piano Terra: circa 100 mq
Primo, Secondo e Terzo Piano: 150 mq ciascuno
Tipologia: open space su ogni livello
Bagno con antibagno per ogni piano
Riscaldamento autonomo
Edificio direzionale sviluppato su 4 livelli
Posti auto privati in area antistante
Spazi luminosi, facilmente organizzabili e modulabili

Punti di forza

Edificio intero a uso esclusivo, ideale per aziende strutturate
Distribuzione su più livelli, perfetta per reparti, uffici interni o attività con funzioni distinte
Open space versatili, adattabili a molteplici configurazioni operative
Luminosità naturale che favorisce un ambiente di lavoro confortevole
Presenza di posti auto privati, valore aggiunto per operatività e accoglienza
Contesto professionale, funzionale e ben organizzato

TECNOCASA IMPRESA POMEZIA

Ci occupiamo di: IMMOBILI INDUSTRIALI, COMMERCIALI e ARTIGIANALI.

C'è chi si occupa di tutto.
E poi c'è, chi, da oltre 30 anni si occupa solo d'impresa.

Non affidarti al caso, AFFIDATI AI NOSTRI PROFESSIONISTI.

Affiliato: SERVIZI DI IMPRESA SRL
Via del Mare, 33 - POMEZIA (RM)

LEGGI TUTTO

CONDIVIDI SUI SOCIAL

DATI PRINCIPALI

Riferimento
642936
Contratto
Affitto
Tipologia
Immobile - Ufficio
Superficie
600 mq
Locali
1
Bagni
4
Piano
Piano rialzato
Totale piani
4
Box/Posto auto
Doppio

CARATTERISTICHE

Ascensore

COSTI

Canone
Affitto € 2.400,00 al mese
Tipo locazione
4+4
Spese condominiali
€ 30,00 / mese, non incluse nel canone

EFFICIENZA ENERGETICA

Stato
Da ristrutturare
Anno costruzione
1990
Riscaldamento
Autonomo
Classe energetica
F
IPE
231,00 kWh/m²a

A+

A

B

C

D

E

231,00 kWh/m²a | Classe energetica F

F

G

MAPPA

ANNUNCI SIMILI

AFFITTO 20
€ 2.000 mensili
Ufficio in Affitto a Pomezia (Roma)
  • Più di 5 locali
  • 240 mq
  • 2 bagni