Studio/Ufficio in affitto a Roma, Colli Aniene AFFITTO

Via Edoardo D'onofrio 212 - Roma (Roma)
€ 4.400 mensili
  • 1 locale
  • 390 mq

Ufficio in Affitto a Roma

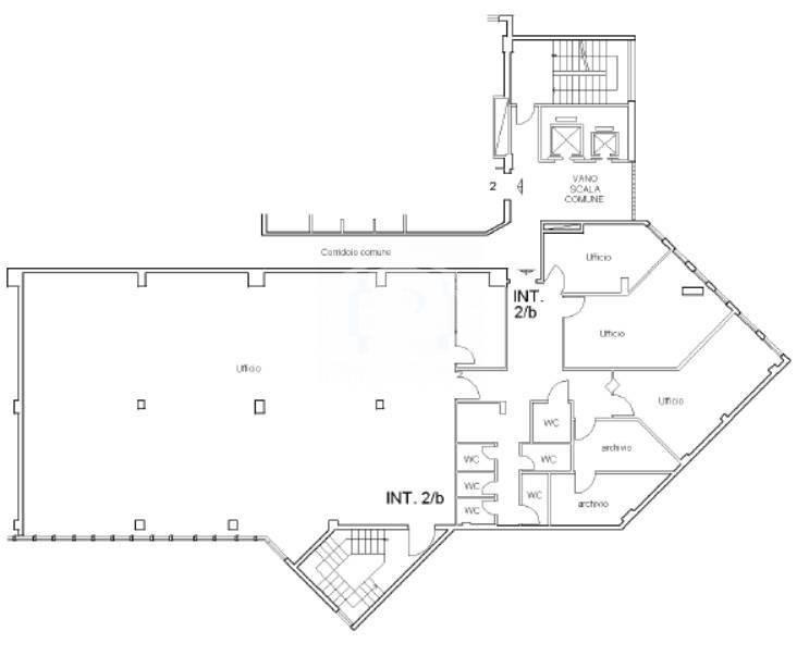
COLLI ANIENE - e più precisamente in via Edoardo d'Onofrio - IPI propone in locazione un moderno ufficio situato al primo piano di un edificio direzionale. Gli uffici sono ristrutturati e pronti all'uso, sono realizzati secondo un sistema modulare, che consente una facile e rapida riconfigurazione degli spazi interni, adattandoli a diverse esigenze operative. Servizio di portineria/vigilanza.

L'immobile è ubicato nel quadrante Est di Roma, all'interno del G.R.A., a breve distanza da Viale Palmiro Togliatti e dall'Autostrada A24. La zona è ben collegata anche dal trasporto pubblico: le stazioni Ponte Mammolo e Santa Maria del Soccorso della Metro B si trovano a circa 20 minuti a piedi, inoltre a pochi metri sono presenti le linee autobus 309, 319 e 450, che garantiscono ulteriori collegamenti rapidi e comodi.

IPI è un gruppo specializzato nella consulenza e nei servizi immobiliari a investitori e operatori istituzionali, aziende e privati. Attraverso le diverse linee di business delle società controllate, IPI copre a 360 gradi i servizi al real-estate: gestione, valorizzazione, promozione e sviluppo immobiliare, consulenza, intermediazione, valutazioni, due diligence e analisi di mercato. IPI è anche una investment company con un rilevante patrimonio immobiliare proprio.

IPI Agency è presente sul territorio nazionale, con filiali a Torino, Milano, Genova, Bologna, Padova, Firenze, Roma, Napoli e Bari

Filiale di Roma
Via Cavour 181/A
00184 Roma (RM)
Tel. 06.89026757
roma-corporate@ipi-agency.com
www.ipi-agency.com

LEGGI TUTTO

CONDIVIDI SUI SOCIAL

DATI PRINCIPALI

Riferimento
634697
Contratto
Affitto
Tipologia
Immobile - Ufficio
Superficie
390 mq
Locali
1
Piano
1 °
Totale piani
8

CARATTERISTICHE

Ascensore Semi-arredato

COSTI

Canone
Affitto € 4.400,00 al mese
Tipo locazione
4+4

EFFICIENZA ENERGETICA

Stato
Ristrutturato
Riscaldamento
Autonomo
Climatizzazione
Si
Classe energetica
G

A+

A

B

C

D

E

F

Classe energetica G

G

MAPPA