Prati Ufficio in Affitto: Moderno e Versatile 900 mq AFFITTO

Viale delle Milizie - Roma, Zona Prati
€ 25.000 mensili
  • Più di 5 locali
  • 900 mq
  • 4 bagni

Ufficio in Affitto a Roma

Ufficio in Affitto: Spazio Moderno e Versatile

In cerca di un ufficio che unisca modernità e funzionalità? Questo ufficio di 900 mq, situato su un unico piano, è completamente ristrutturato e pronto ad ospitare la tua attività. Con la possibilità di variare le dimensioni delle camere, puoi adattare gli spazi alle esigenze del tuo team. La tecnologia è all'avanguardia, con una connessione internet ad alta velocità e impianti di sicurezza a norma, garantendo un ambiente di lavoro sicuro e produttivo.

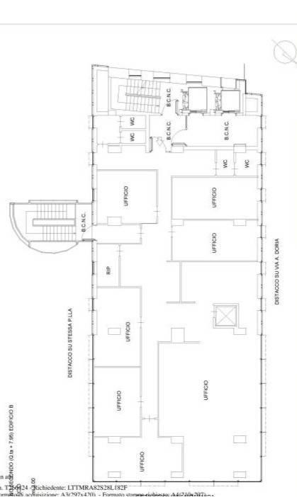
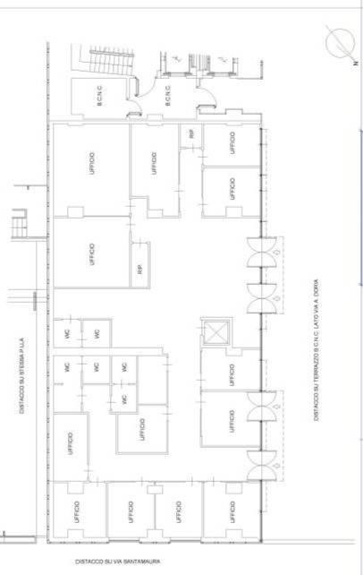
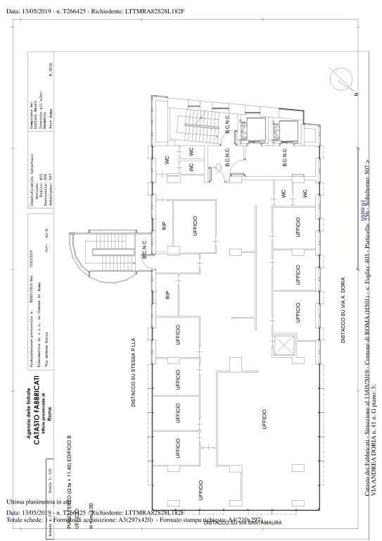
L'ufficio è composto da 14 vani operativi, 5 servizi e offre anche archivi e locali tecnici. Il pavimento flottante e i controsoffitti con passaggio per l'areazione creano un'atmosfera confortevole e professionale. Situato in una zona strategica, adiacente ai vari tribunali e a soli 200 metri dalla fermata della metro A, questo ufficio è facilmente raggiungibile.

Inoltre, il complesso offre due garage o posti auto inclusi nel prezzo, rendendo la vita lavorativa ancora più comoda. Con un ottimo stato manutentivo e una superficie commerciale di 900 m², questo ufficio rappresenta un'opportunità imperdibile per chi cerca un ambiente di lavoro stimolante e ben posizionato. Contattaci per maggiori informazioni e per organizzare una visita! In Prati viale delle Milizie adiacente fermata Metro affittiamo ufficio di 450 mq su un solo piano completamente ristrutturato di nuova concezione con possibilità di variare le dimensioni delle camere con tutte le tecnologie a disposizione banda internet, pavimento flottante e controsoffitti con il passaggio della parte areazione e tutti gli impianti di sicurezza a norma Ci troviamo ina zona adiacente ai vari tribunali ed in area dotata di tutti i servizi con la fermata metro A a 200 metri ) proponiamo la locazione di un ufficio di circa 900 mq composto da: doppio ingresso, 14 vani operativi, 5 servizi oltre ad archivi e locali tecnici. L'ufficio si presenta co in ottimo stato manutentivo. Trattativa riservata.

LEGGI TUTTO

CONDIVIDI SUI SOCIAL

DATI PRINCIPALI

Riferimento
636410
Contratto
Affitto
Tipologia
Immobile - Ufficio
Superficie
900 mq
Locali
Più di 5
Bagni
4
Piano
2 °
Totale piani
5
Box/Posto auto
Singolo

CARATTERISTICHE

Ascensore Allarme

COSTI

Canone
Affitto € 25.000,00 al mese
Tipo locazione
4+4
Spese condominiali
€ 4.000,00 / mese, non incluse nel canone

EFFICIENZA ENERGETICA

Stato
Ristrutturato
Anno costruzione
1990
Riscaldamento
Autonomo
Climatizzazione
Si
Classe energetica
G
IPE
175,00 kWh/m²a

A+

A

B

C

D

E

F

175,00 kWh/m²a | Classe energetica G

G

MAPPA

ANNUNCI SIMILI

AFFITTO 11
€ 5.900 mensili
Ufficio in Affitto a Roma (Roma)
  • Più di 5 locali
  • 220 mq
  • 2 bagni
AFFITTO 14
€ 11.600 mensili
Ufficio in Affitto a Roma, Zona Prati
  • Più di 5 locali
  • 520 mq
  • 4 bagni
AFFITTO 11
€ 6.500 mensili
Ufficio in Affitto a Roma, Zona Prati
  • Più di 5 locali
  • 290 mq
  • 2 bagni
AFFITTO 20
Trattativa Riservata
Ufficio in Affitto a Roma (Roma)
  • Più di 5 locali
  • 700 mq
  • 4 bagni
AFFITTO 19
€ 11.000 mensili
Ufficio in Affitto a Roma (Roma)
  • Più di 5 locali
  • 450 mq
  • 3 bagni