MAZZINI-DELLE VITTORIE VIA MARCELLO PRESTINARI AFFITTO

Via Marcello Prestinari 13 - Roma (Roma)
€ 2.900 mensili
  • Più di 5 locali
  • 142 mq
  • 1 bagno

Ufficio in Affitto a Roma

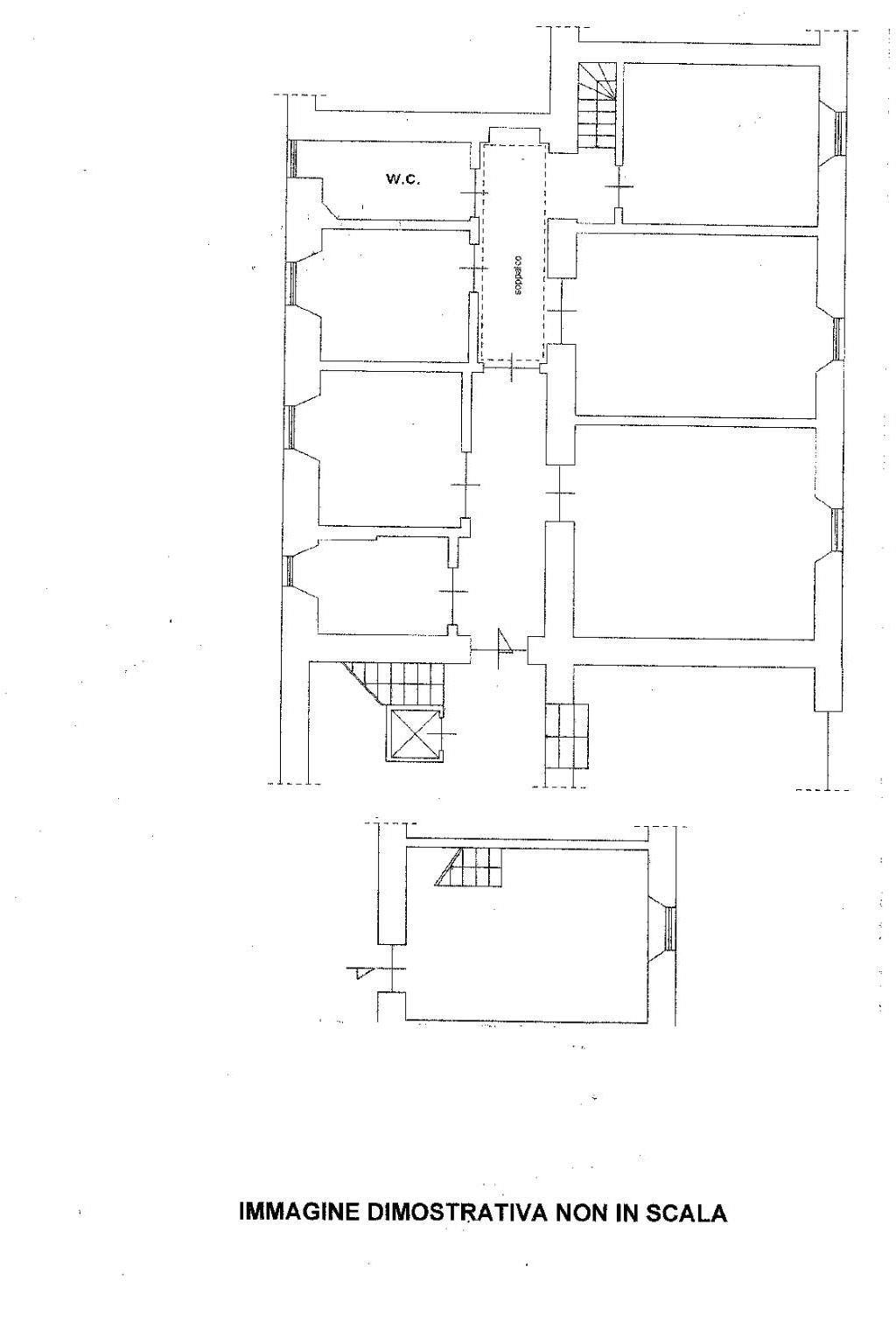
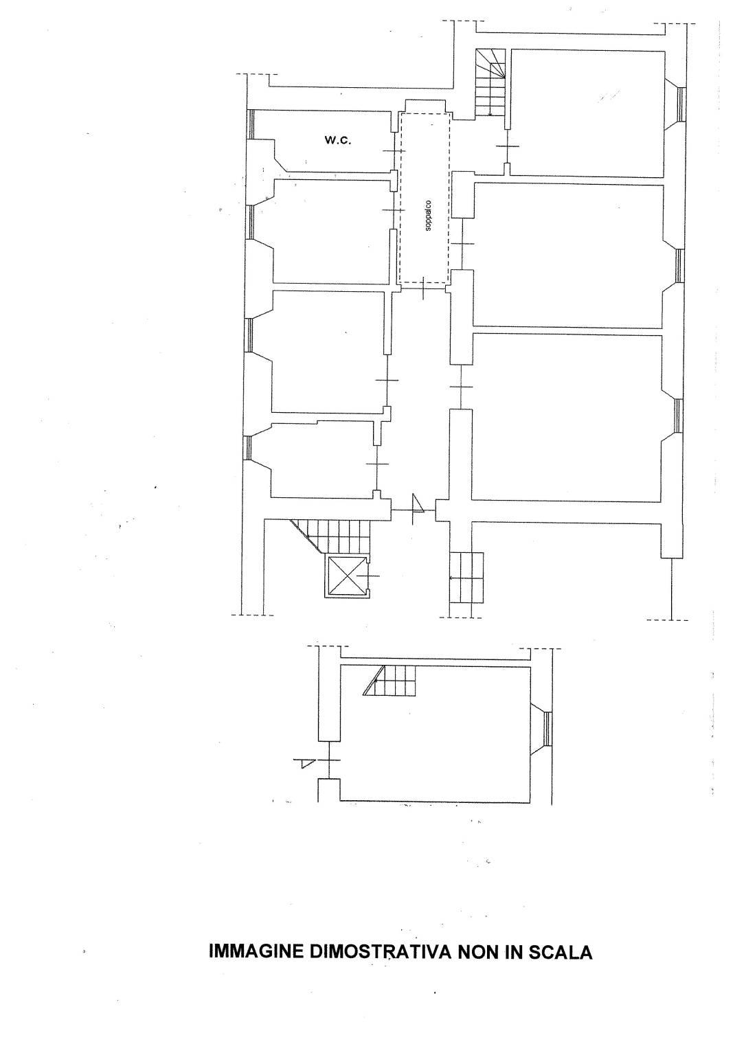
In uno dei punti più ambiti della città, nel cuore del quartiere Delle Vittorie, a due passi da Piazza Mazzini, esattamente in Via Marcello Prestinari, proponiamo la locazione di uno splendido ufficio (categoria catastale A/10). L’immobile, di ampia metratura, è inserito all’interno di un elegante palazzo d’epoca dotato di servizio di portineria e gode di affacci tranquilli e silenziosi. È composto da ingresso, cinque camere, una cameretta, un bagno ed un ampio archivio. Le condizioni interne sono ottime: parquet in tutti gli ambienti, infissi doppio vetro, climatizzazione, impianto termoautonomo, cablaggio. È superfluo sottolineare come l’ufficio si trovi in una posizione privilegiata, residenziale ed elegante ma al tempo stesso ben servita da ogni genere di attività commerciale. La fermata della Metro Lepanto dista 10 minuti a piedi.

LEGGI TUTTO

CONDIVIDI SUI SOCIAL

DATI PRINCIPALI

Riferimento
630388
Contratto
Affitto
Tipologia
Immobile - Ufficio
Superficie
142 mq
Locali
Più di 5
Bagni
1
Piano
Piano rialzato
Totale piani
4

CARATTERISTICHE

Ascensore

COSTI

Canone
Affitto € 2.900,00 al mese
Tipo locazione
4+4
Spese condominiali
€ 180,00 / mese, non incluse nel canone

EFFICIENZA ENERGETICA

Stato
Ristrutturato
Anno costruzione
1915
Riscaldamento
Autonomo
Climatizzazione
Si
Classe energetica
G
IPE
351,00 kWh/m²a

A+

A

B

C

D

E

F

351,00 kWh/m²a | Classe energetica G

G

MAPPA

ANNUNCI SIMILI

AFFITTO 20
Trattativa Riservata
Ufficio in Affitto a Roma (Roma)
  • Più di 5 locali
  • 700 mq
  • 4 bagni
AFFITTO 19
€ 11.000 mensili
Ufficio in Affitto a Roma (Roma)
  • Più di 5 locali
  • 450 mq
  • 3 bagni