AURELIA CASA LUMBROSO UFFICIO 200 MQ 7 STANZE AFFITTO

Via Carlo Severini - Roma, Zona Casal Lumbroso
€ 1.500 mensili
  • Più di 5 locali
  • 200 mq
  • 2 bagni

Ufficio in Affitto a Roma

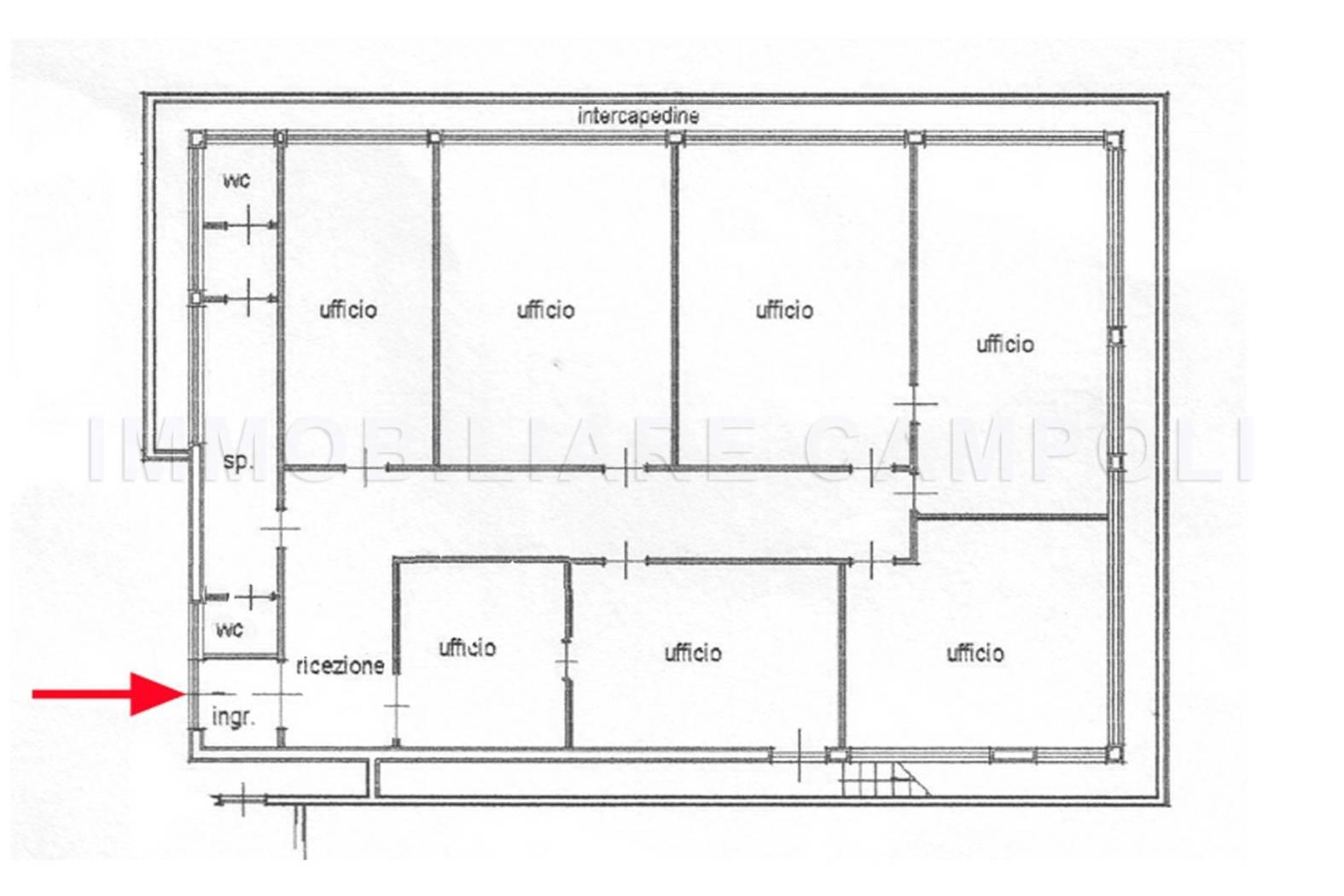
Aurelia - Casal Lumbroso - Via Carlo Severini, disponibile da Marzo 2026 - ufficio (A/10) di 200 mq posto al piano terra, buone condizioni, composto da: ingresso/reception/attesa, 7 stanze rispettivamente da 12 mq, 17mq, 18 mq, 26 mq, 25 mq, 32 mq (sala riunioni) e 25 mq. Soffitti alti 3,60 metri. Ripostiglio, bagno uomini e bagno donne. Molto luminoso. Cablato. Cassaforte. Un posto auto interno e ampio parcheggio esterno. Contratto commerciale 6 anni + 6. Euro 1.500 mensili. Sono richieste garanzie dimostrabili. PER INFO E APPUNTAMENTI TELEFONARE AL NUMERO 338/9001008 GIANLUCA CAMPOLI - AGENTE IMMOBILIARE CON PATENTINO COME PREVISTO DALLA NORMATIVA E REGOLARMENTE ISCRITTO AL REA DI ROMA CON IL NUMERO RM - 1068314 - DOTATO DI POLIZZA ASSICURATIVA PROFESSIONALE/RESPONSABILITA’ CIVILE A COPERTURA DEI RISCHI PROFESSIONALI.

LEGGI TUTTO

CONDIVIDI SUI SOCIAL

DATI PRINCIPALI

Riferimento
628613
Contratto
Affitto
Tipologia
Immobile - Ufficio
Superficie
200 mq
Locali
Più di 5
Bagni
2
Piano
Piano terra
Totale piani
3
Box/Posto auto
Singolo

CARATTERISTICHE

Ascensore Allarme

COSTI

Canone
Affitto € 1.500,00 al mese
Tipo locazione
4+4
Spese condominiali
€ 50,00 / mese, non incluse nel canone

EFFICIENZA ENERGETICA

Stato
Abitabile
Anno costruzione
1970
Classe energetica
G
IPE
175,00 kWh/m²a

A+

A

B

C

D

E

F

175,00 kWh/m²a | Classe energetica G

G

MAPPA

ANNUNCI SIMILI

AFFITTO 15
€ 1.900 mensili
Ufficio in Affitto a Roma (Roma)
  • Più di 5 locali
  • 250 mq
  • 3 bagni
AFFITTO 5
€ 13.400 mensili
Ufficio in Affitto a Roma (Roma)
  • Più di 5 locali
  • 640 mq
  • 4 bagni
AFFITTO 3
€ 8.750 mensili
Ufficio in Affitto a Roma (Roma)
  • Più di 5 locali
  • 600 mq
  • 4 bagni
AFFITTO 10
€ 2.500 mensili
Ufficio in Affitto a Roma, Zona Magliana
  • Più di 5 locali
  • 300 mq
  • 2 bagni
AFFITTO 8
Trattativa Riservata
Ufficio in Affitto a Roma (Roma)
  • Più di 5 locali
  • 840 mq
  • 4 bagni