Ampia stanza luminosa in studio Parioli AFFITTO

Viale Bruno Buozzi 77 - Roma, Zona Parioli
€ 700 mensili
  • 1 locale
  • 15 mq
  • 1 bagno

Ufficio in Affitto a Roma

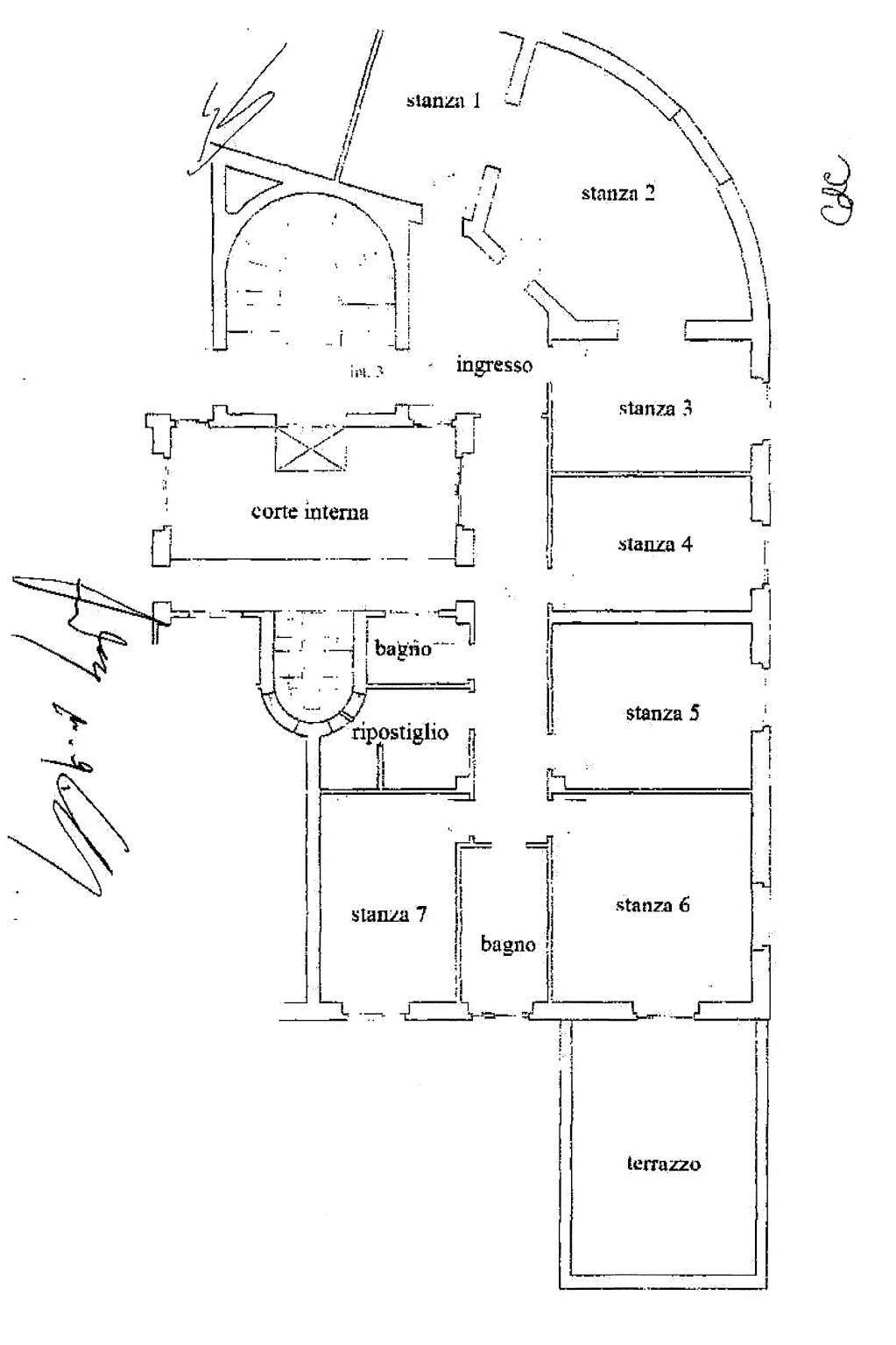
Una ampia stanza a scelta fra due libere e disponibili da subito in grande studio legale al centro di Parioli.
In viale bruno buozzi, in zona altamente servita ed all'interno di uno stabile con servizio di portierato, si affitta una stanza di circa 15 mq a scelta fra due disponibili (se ne affitta solo una a scelta l'altra sarà occupata in via residuale) all'interno di un ampio studio legale sito al primo piano con doppi servizi, zona reception, terrazzo al piano perfetto per briefing e relax ed ampia sala riunioni quale ambienti comuni ad uso di chi affitta.
La stanza può essere fornita senza arredi, libera da tutto, ed è disponibile da subito.
L'affitto è indicato per professionisti quali avvocati o commercialisti, all'interno di un studio legale prestigioso.
Canone di locazione mensile 700,00 euro, comprensivo di oneri condominiali, spese accessorie, luce, riscaldamento, uso sala riunioni e spazi comuni, fotocopie e telefono/internet.
Cl. En. F Ag. imm. Vivimmobili di Marco Basile. Si ricorda che le suddette informazioni e planimetrie sono meramente indicative e non costituiscono elementi contrattuali. La Vivimmobili di Basile Marco, con sede in Viale delle Milizie 34, offre assistenza durante l'intero processo di locazione di un immobile, con un supporto a 360 gradi dalla prima visita fino al rilascio dell'immobile per fine locazione. Visita il nostro sito: troverai maggiori informazioni e tutti i nostri servizi e gli immobili da noi proposti in locazione e vendita.

LEGGI TUTTO

CONDIVIDI SUI SOCIAL

DATI PRINCIPALI

Riferimento
626321
Contratto
Affitto
Tipologia
Immobile - Ufficio
Superficie
15 mq
Locali
1
Bagni
1
Piano
1 °
Totale piani
4

CARATTERISTICHE

Ascensore Semi-arredato Allarme

COSTI

Canone
Affitto € 700,00 al mese
Tipo locazione
4+4

EFFICIENZA ENERGETICA

Stato
Ristrutturato
Anno costruzione
1950
Riscaldamento
Autonomo
Climatizzazione
Si
Classe energetica
F
IPE
175,00 kWh/m²a

A+

A

B

C

D

E

175,00 kWh/m²a | Classe energetica F

F

G

MAPPA

ANNUNCI SIMILI