VENDITA PORZIONE DI UN CASALE PANORAMICO DI CIRCA 217 MQ VENDITA

Via di Prataporci - Roma, Zona Fontana Candida
€ 490.000
  • Più di 5 locali
  • 217 mq
  • 2 bagni

Rustico/Casale in Vendita a Roma

Proponiamo in vendita la porzione di un casale immerso nel verde, situato nel cuore del quadrante sud/est della provincia di Roma, a breve distanza da Frascati. Questa proprietà offre il perfetto equilibrio tra natura e urbanizzazione. La posizione strategica la rende facilmente accessibile e ben collegata a tutte le località dei Castelli Romani, garantendo facilità di accesso e spostamenti rapidi, mentre il centro di Roma è raggiungibile in circa 30 minuti grazie agli ottimi collegamenti stradali e alla vicinanza del Casello Autostradale di Monte Porzio Catone. Circondata da ville, aziende agricole trasformate in strutture ricettive e centri abitati ricchi di servizi scolastici e commerciali, questa proprietà garantisce un contesto tranquillo ma confortevole. L'ambiente, pur immerso nel verde, beneficia di una completa urbanizzazione che offre comodità e funzionalità.
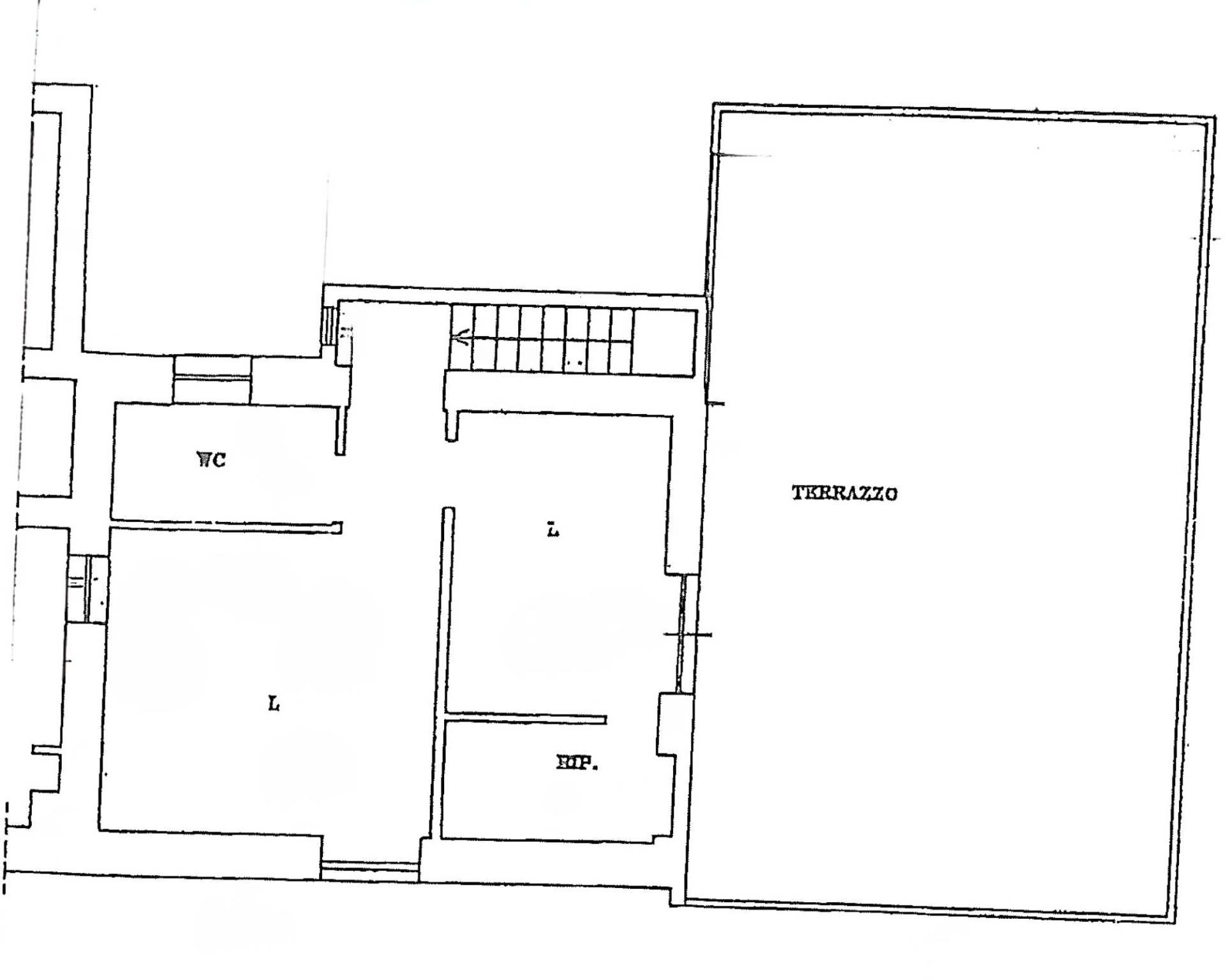
Il complesso immobiliare a destinazione residenziale (categoria catastale A/7), è composto da un'unità abitativa di circa 217 mq, due cantine di circa 16 mq ciascuna, e un terreno pertinenziale di circa 4.700 mq. Questa combinazione unica di bellezza paesaggistica e praticità urbana rappresenta un'opportunità irripetibile per chi cerca una residenza privata o un investimento di valore.
L'unità abitativa attualmente si sviluppa su due livelli: al piano terra troviamo un ampio salone doppio con camino e cucina abitabile, la dispensa, due camere da letto confortevoli (di cui una con camino) e un bagno con vasca idromassaggio angolare; mentre al primo piano si trovano altre due camere da letto, una cabina armadio, un bagno con doccia e una terrazza panoramica di circa 50 mq. L'abitazione dispone inoltre di un sottotetto perfetto per archiviare oggetti e ricordi.
Attualmente l'immobile risulta totalmente in regola dal punto di vista amministrativo e catastale.

PREZZO DI VENDITA € 490.000,00

Se interessati saremo molto lieti di ricevervi presso la nostra agenzia per darvi maggiori informazioni sull'immobile o trovare altre soluzioni adatte alle vostre esigenze. STILE CASA SERVIZI IMMOBILIARI - Via Bolognetta 1/L (Zona Finocchio) – 00132 Roma - Tel. 06/2071107 - Cell. 3929134200 - email: stilecasabolognetta@gmail.com - https://www.facebook.com/stilecasafinocchio/

LEGGI TUTTO

CONDIVIDI SUI SOCIAL

DATI PRINCIPALI

Riferimento
644014
Contratto
Vendita
Tipologia
Rustico/Casale
Superficie
217 mq
Locali
Più di 5
Camere da letto
4
Cucina
Abitabile
Bagni
2
Piano
2 °
Totale piani
2

CARATTERISTICHE

Ascensore

COSTI

Prezzo
€ 490.000,00

EFFICIENZA ENERGETICA

Stato
Da ristrutturare
Anno costruzione
1940
Classe energetica
G
IPE
175,00 kWh/m²a

A+

A

B

C

D

E

F

175,00 kWh/m²a | Classe energetica G

G

MAPPA

ANNUNCI SIMILI

VENDITA 20
Trattativa Riservata
Rustico/Casale in Vendita a Roma (Roma)
  • Più di 5 locali
  • 550 mq
  • 4 bagni
VENDITA 20
€ 529.000
Rustico/Casale in Vendita a Roma, Frazione Casal Palocco
  • Più di 5 locali
  • 380 mq
  • 4 bagni
VENDITA 20
€ 645.000
Rustico/Casale in Vendita a Roma, Frazione Dragona
  • Più di 5 locali
  • 170 mq
  • 3 bagni