Via Luigi Luciani locale commerciale con canna fumaria VENDITA

Via Luigi Luciani 21 - Roma (Roma)
€ 1.590.000
  • Più di 5 locali
  • 208 mq
  • 3 bagni

Negozio in Vendita a Roma

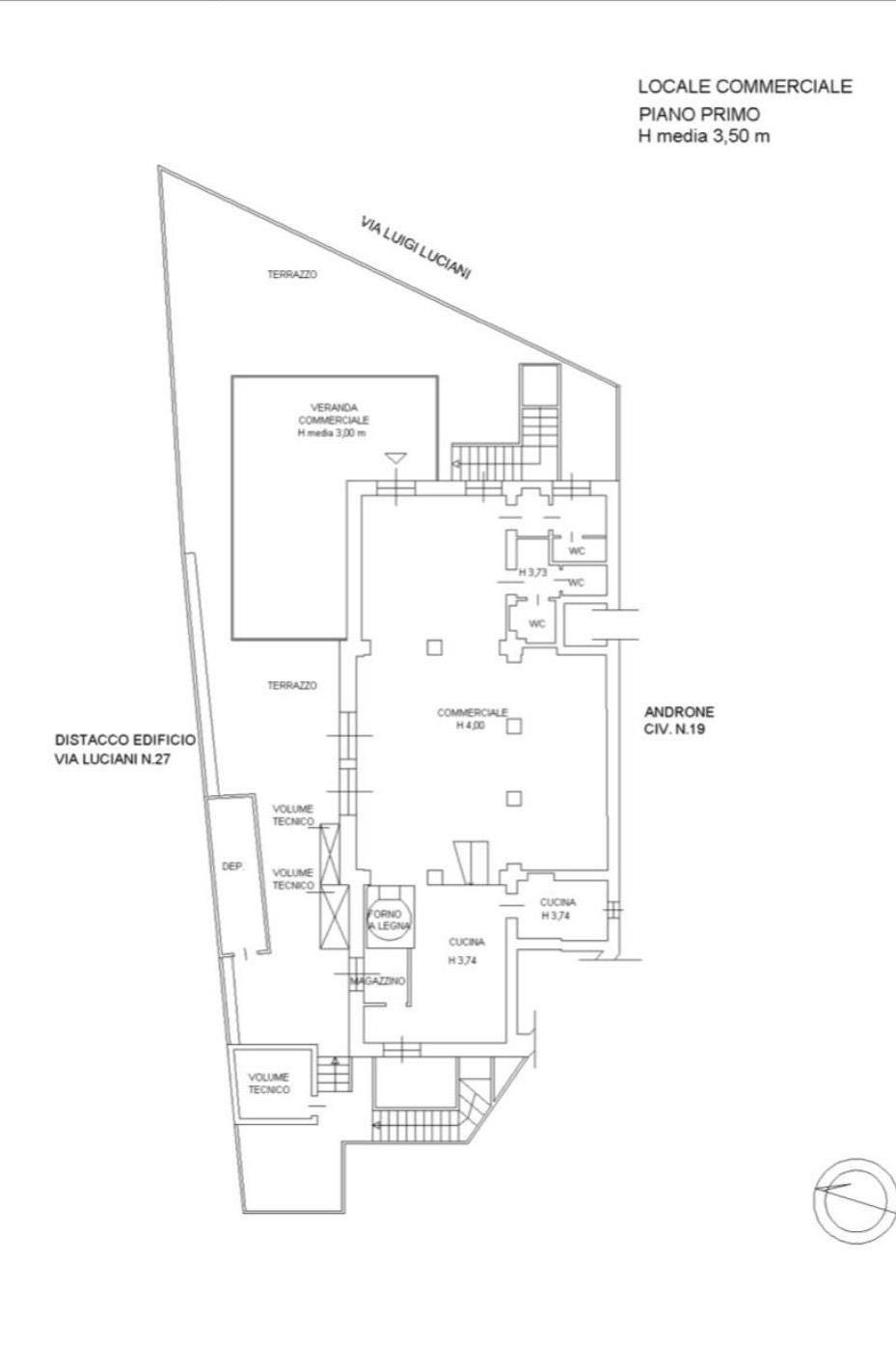
Geim Group propone la vendita di un locale commerciale in una delle zone di più prestigiose di Roma. L'immobile che è sempre stato adibito a ristoranti, si presta molto per un'attività volte alla ristorazione non solo per il punto strategico ma anche per via della grandezza sia interna che esterna. La composizione attuale è la seguente, si accede al ristorante attraverso una scala con ingresso autonomo direttamente da via Luciani, una volta arrivati al primo piano c'è uno spazio destinato alla reception con 2 grandi sale che possono anche essere accorpate o frazionate, zona cucine, una grande terrazza semi-perimetrale, zona magazzini, zona rispostigli e zona bagni completano la proprietà.
L'immobile dotato di canna fumaria come detto in precedenza si presta soprattutto per attività ristorative.

LEGGI TUTTO

CONDIVIDI SUI SOCIAL

DATI PRINCIPALI

Riferimento
637152
Contratto
Vendita
Tipologia
Immobile - Negozio
Superficie
208 mq
Locali
5
Bagni
3
Piano
1 °
Totale piani
3

CARATTERISTICHE

Ascensore

COSTI

Prezzo
€ 1.590.000,00
Spese condominiali
€ 100,00 / mese

EFFICIENZA ENERGETICA

Stato
Da ristrutturare
Anno costruzione
1930
Riscaldamento
Autonomo
Climatizzazione
Si
Classe energetica
G
IPE
175,00 kWh/m²a

A+

A

B

C

D

E

F

175,00 kWh/m²a | Classe energetica G

G

MAPPA

ANNUNCI SIMILI

VENDITA 13
€ 410.000
Negozio in Vendita a Roma, Zona Flaminio
  • Più di 5 locali
  • 180 mq
  • 4 bagni
VENDITA 20
€ 920.000
Negozio in Vendita a Roma, Zona Parioli
  • Più di 5 locali
  • 169 mq
  • 3 bagni
VENDITA 20
€ 1.600.000
Negozio in Vendita a Roma (Roma)
  • Più di 5 locali
  • 650 mq
  • 4 bagni