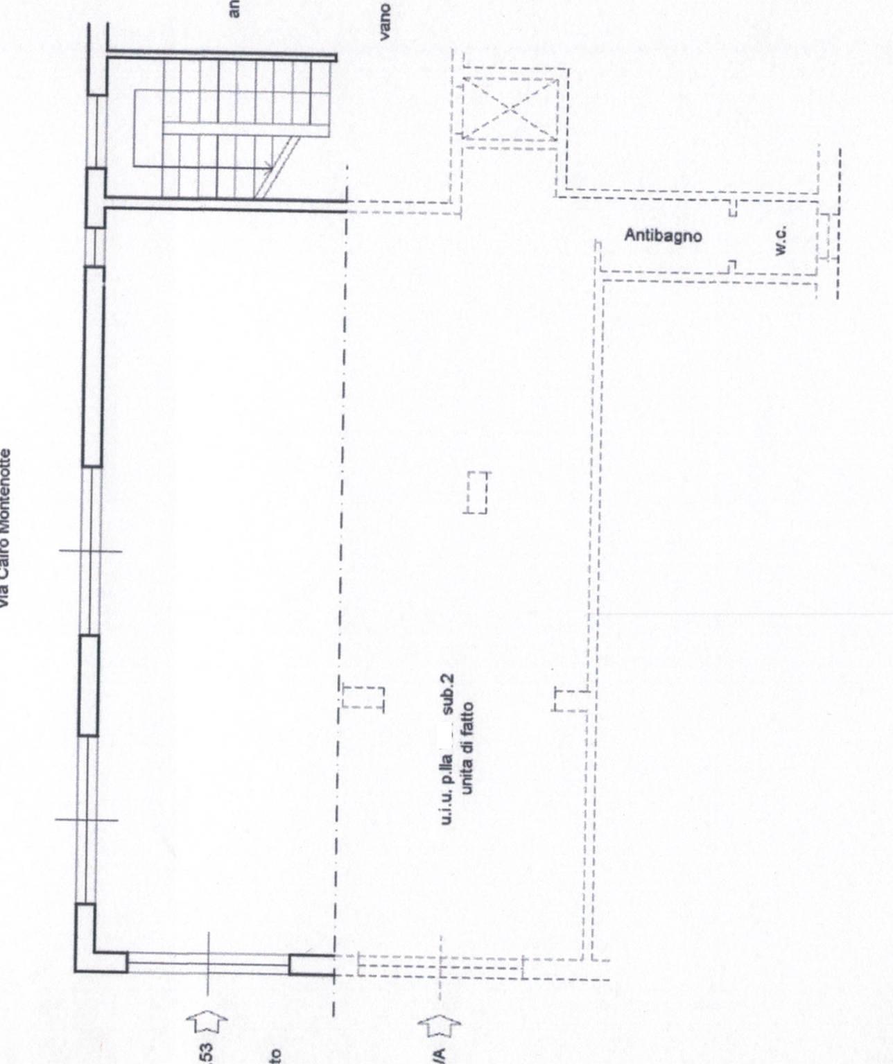
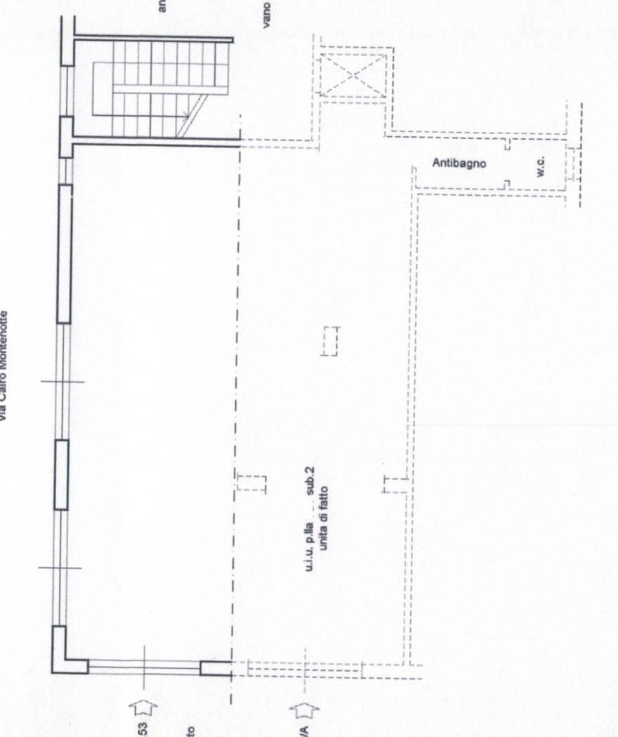
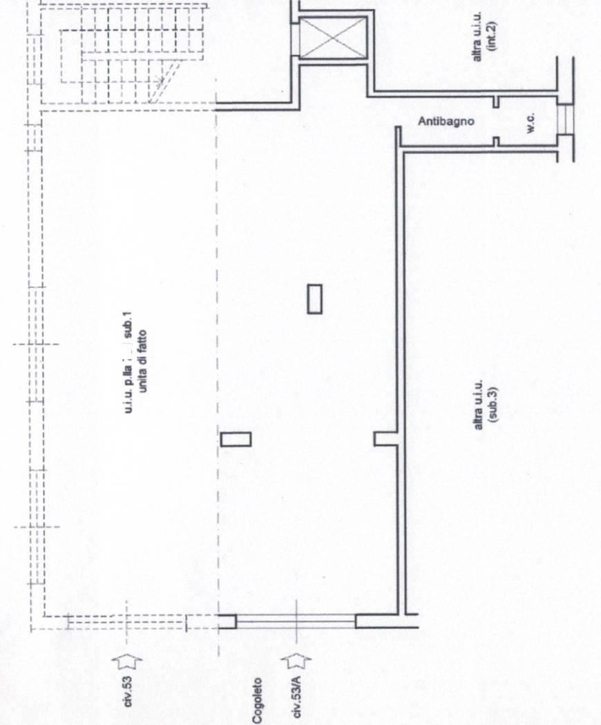
VIA COGOLETO LOCALE C1 4 VETRINE VENDITA

Via Cogoleto - Roma, Zona Torrevecchia
€ 199.000
  • 1 locale
  • 100 mq
  • 1 bagno

Negozio in Vendita a Roma

Locale Commerciale in Vendita - Opportunità Unica! **

Scopri questo fantastico locale commerciale di categoria C1, situato al piano terra con un'ottima visibilità grazie alle sue 4 vetrine fronte strada. Con una superficie di 100 m², questo spazio è ideale per diverse attività, attualmente adibito a negozio di casalinghi. La posizione strategica e l'ampia esposizione garantiscono un flusso costante di clienti.

Il locale è attualmente locato con un contratto regolare, con un canone mensile di 1.800 euro, in essere dal 2017 e con scadenza prevista al 31 marzo 2029. Questo rappresenta un'ottima opportunità per chi cerca un investimento sicuro e redditizio. Il prezzo di vendita richiesto è di 199.000 euro.

Non perdere l'occasione di possedere questo locale commerciale in una zona dinamica e ben frequentata. Contattaci per ulteriori informazioni e per fissare un appuntamento! Siamo disponibili dal lunedì al venerdì, dalle 10:00 alle 13:00 e dalle 16:00 alle 20:00. DEKA IMMOBILIARE Tel. : 3471418693

LEGGI TUTTO

CONDIVIDI SUI SOCIAL

DATI PRINCIPALI

Riferimento
629135
Contratto
Vendita
Tipologia
Immobile - Negozio
Superficie
100 mq
Locali
1
Bagni
1
Piano
Piano terra
Totale piani
4

CARATTERISTICHE

Ascensore

COSTI

Prezzo
€ 199.000,00

EFFICIENZA ENERGETICA

Anno costruzione
1970
Classe energetica
G
IPE
351,00 kWh/m²a

A+

A

B

C

D

E

F

351,00 kWh/m²a | Classe energetica G

G

MAPPA