VENDITA LOCALE A REDDITO - ZONA JONIO VENDITA

Roma (Roma)
€ 275.000
  • 2 locali
  • 94 mq
  • 1 bagno

Negozio in Vendita a Roma

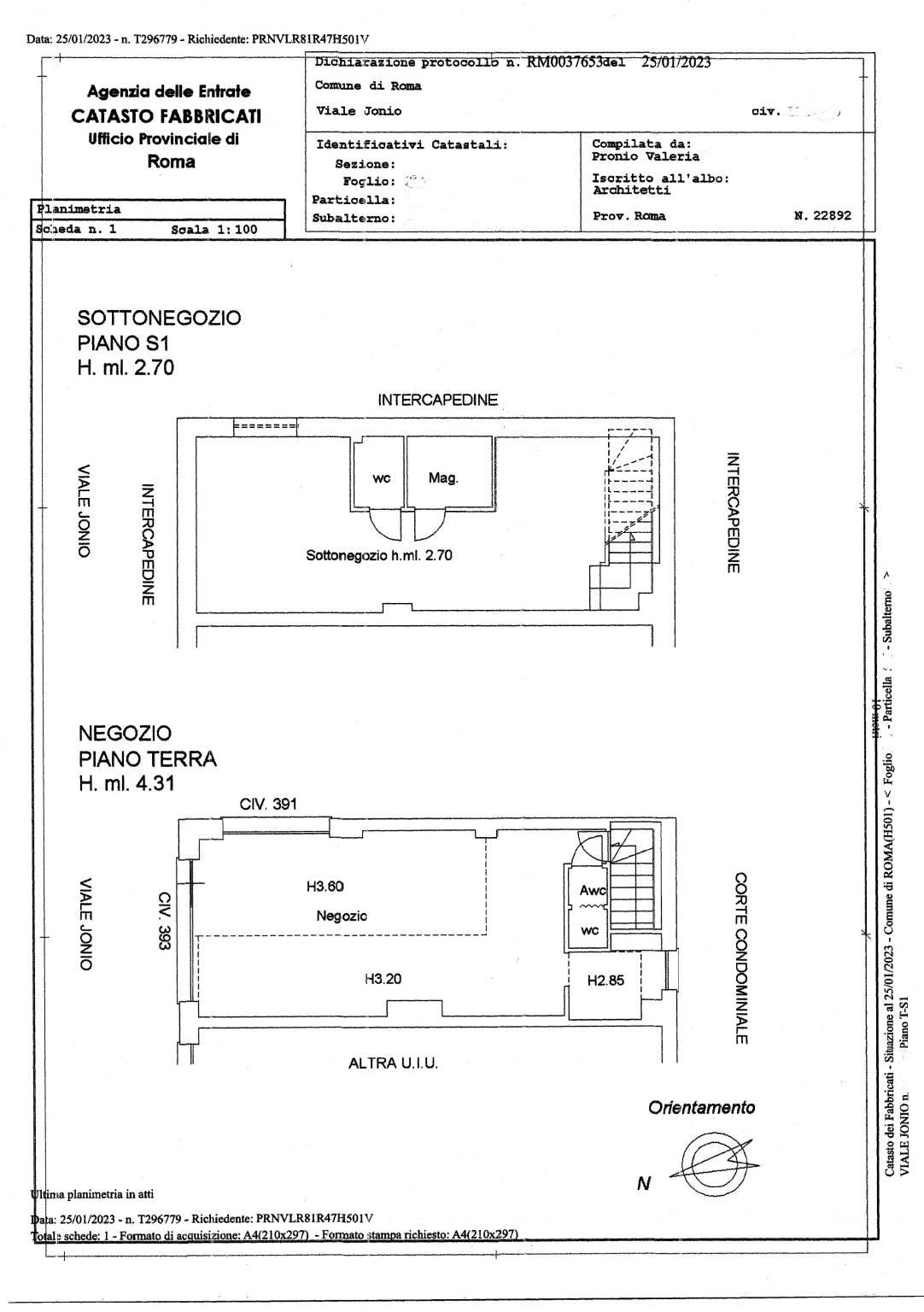
"Immobiliare Commerciale Roma srls - Propone la VENDITA di un locale commerciale A REDDITO adibito a salone di barberia e parrucchiere, completamente ristrutturato in una delle principali strade del quartiere Monte Sacro, con grande passaggio pedonale ed a pochi metri dalla Metro B JONIO, adiacente ad uffici, banche ed altre attività commerciali. Il locale di 94 mq. complessivi si sviluppa su due livelli: 48 mq al piano terra con 2 ampie vetrine angolari che garantiscono ottima visibilità oltre a un bagno e 46 mq. al piano S-1. Attualmente è locato con contratto in essere, garantendo una rendita annua di € 19,200, pari a un rendimento del 7%. Soluzione ideale per investitori alla ricerca di un immobile pari a nuovo e con una reddittività immediata.
Per qualsiasi ulteriore informazione sull'immobile o per ulteriori offerte immobiliari, potete contattarci allo 06.88. 61.450 il nostro staff sarà lieto di fornirvi l'assistenza necessaria, siamo a vostra disposizione nel seguente orario: dal lunedì al venerdì dalle 9: 00 alle 13: 00 e dalle 15: 00 alle 19: 00, il sabato dalle 9: 00 alle 13: 00.

LEGGI TUTTO

CONDIVIDI SUI SOCIAL

DATI PRINCIPALI

Riferimento
636489
Contratto
Vendita
Tipologia
Immobile - Negozio
Superficie
94 mq
Locali
2
Bagni
1
Piano
Piano terra
Totale piani
5

CARATTERISTICHE

Ascensore Arredato

COSTI

Prezzo
€ 275.000,00
Spese condominiali
€ 96,00 / mese

EFFICIENZA ENERGETICA

Stato
Ristrutturato
Anno costruzione
1970
Classe energetica
G
IPE
351,00 kWh/m²a

A+

A

B

C

D

E

F

351,00 kWh/m²a | Classe energetica G

G

MAPPA