VENDITA ATTIVITA' AFFITTACAMERE IN PRATI VENDITA

Via Otranto - Roma, Zona Prati
€ 180.000
  • Più di 5 locali
  • 155 mq
  • 4 bagni

Negozio in Vendita a Roma

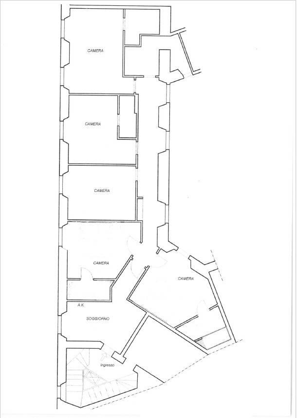
Nel cuore del quartiere Prati, precisamente in Via Otranto, proponiamo la cessione di un’attività di affittacamere ben avviata, situata all’interno di un elegante stabile d’epoca con ascensore, al secondo piano.
L’immobile, di circa 155 mq, è stato completamente ristrutturato e viene ceduto completamente arredato.
Si compone di cinque camere, e cinque bagni , una comoda zona soggiorno/reception.
Gli spazi sono stati studiati per garantire comfort, funzionalità e accoglienza, rispondendo perfettamente alle esigenze della clientela turistica.
E' bene sottolineare la posizione strategica e l’eccellente collegamento con i mezzi pubblici: la fermata della Metro A "Ottaviano" si trova a pochi passi, così come il Vaticano, Castel Sant’Angelo e le vie dello shopping.
Un’opportunità ideale per chi desidera investire in una struttura già operativa e ben inserita nel mercato turistico romano.
Il prezzo della cessione è pari ad Euro 180.000,00
Il canone di locazione è pari ad Euro 4.000,00 mensili.
Ottimi fatturati dimostrabili.
Per maggiori informazioni contattare i nostri uffici ai seguenti numeri : 339.3350505 06.89274537, oppure inviare una mail a galagroupre@gmail.com La Gala Group Real Estate è una società Leader che opera nel settore dell’intermediazione immobiliare da diversi anni, specializzata nel settore del commerciale, nelle Vendite e nelle Locazioni di prestigio, cura inoltre Fondi immobiliari per conto di un portfolio clienti selezionato e fidelizzatosi nel tempo, rappresentato dai più noti brand nazionali ed internazionali che operano nel settore dell’abbigliamento, della profumeria, delle calzature e della ristorazione. In un’economia globale, la visione lungimirante e le strategie di business innovative per un settore tradizionale e tradizionalista come l’immobiliare, hanno permesso alla Società di Distinguersi. Collegato al gruppo vi è un team di professionisti altamente specializzati, nello specifico la Gala Group Real Estate mette a disposizione della propria clientela molteplici figure professionali come gli architetti che oltre ad occuparsi di progettazione, esecuzione, direzione lavori, curano anche ogni aspetto tecnico ed amministrativo. Le informazioni, le immagini e le planimetrie presenti nell’ annuncio sono meramente indicative e non costituiscono elementi contrattuali.

LEGGI TUTTO

CONDIVIDI SUI SOCIAL

DATI PRINCIPALI

Riferimento
637355
Contratto
Vendita
Tipologia
Immobile - Negozio
Superficie
155 mq
Locali
Più di 5
Bagni
4
Piano
2 °
Totale piani
5

CARATTERISTICHE

Ascensore Arredato Allarme

COSTI

Prezzo
€ 180.000,00

EFFICIENZA ENERGETICA

Stato
Ristrutturato
Anno costruzione
1950
Riscaldamento
Autonomo
Climatizzazione
Si
Classe energetica
A
IPE
175,00 kWh/m²a

A+

175,00 kWh/m²a | Classe energetica A

A

B

C

D

E

F

G

MAPPA

ANNUNCI SIMILI

VENDITA 3
€ 1.100.000
Negozio in Vendita a Roma, Zona Prati
  • Più di 5 locali
  • 300 mq
  • 4 bagni
VENDITA 12
€ 934.440
Negozio in Vendita a Roma (Roma)
  • Più di 5 locali
  • 250 mq
  • 2 bagni
VENDITA 20
€ 1.600.000
Negozio in Vendita a Roma (Roma)
  • Più di 5 locali
  • 650 mq
  • 4 bagni
VENDITA 6
€ 250.000
Negozio in Vendita a Roma (Roma)
  • Più di 5 locali
  • 150 mq
  • 4 bagni
VENDITA 11
€ 990.000
Negozio in Vendita a Roma, Zona Prati
  • Più di 5 locali
  • 270 mq
  • 3 bagni
VENDITA 20
€ 850.000
Negozio in Vendita a Roma (Roma)
  • Più di 5 locali
  • 415 mq
  • 4 bagni
VENDITA 13
€ 410.000
Negozio in Vendita a Roma, Zona Flaminio
  • Più di 5 locali
  • 180 mq
  • 4 bagni