Tuscolana – Cessione Bistrot / Lounge Bar ristrutturato VENDITA

Via Calpurnio Fiamma - Roma, Zona Cinecittà
€ 49.000
  • 1 locale
  • 163 mq
  • 3 bagni

Negozio in Vendita a Roma

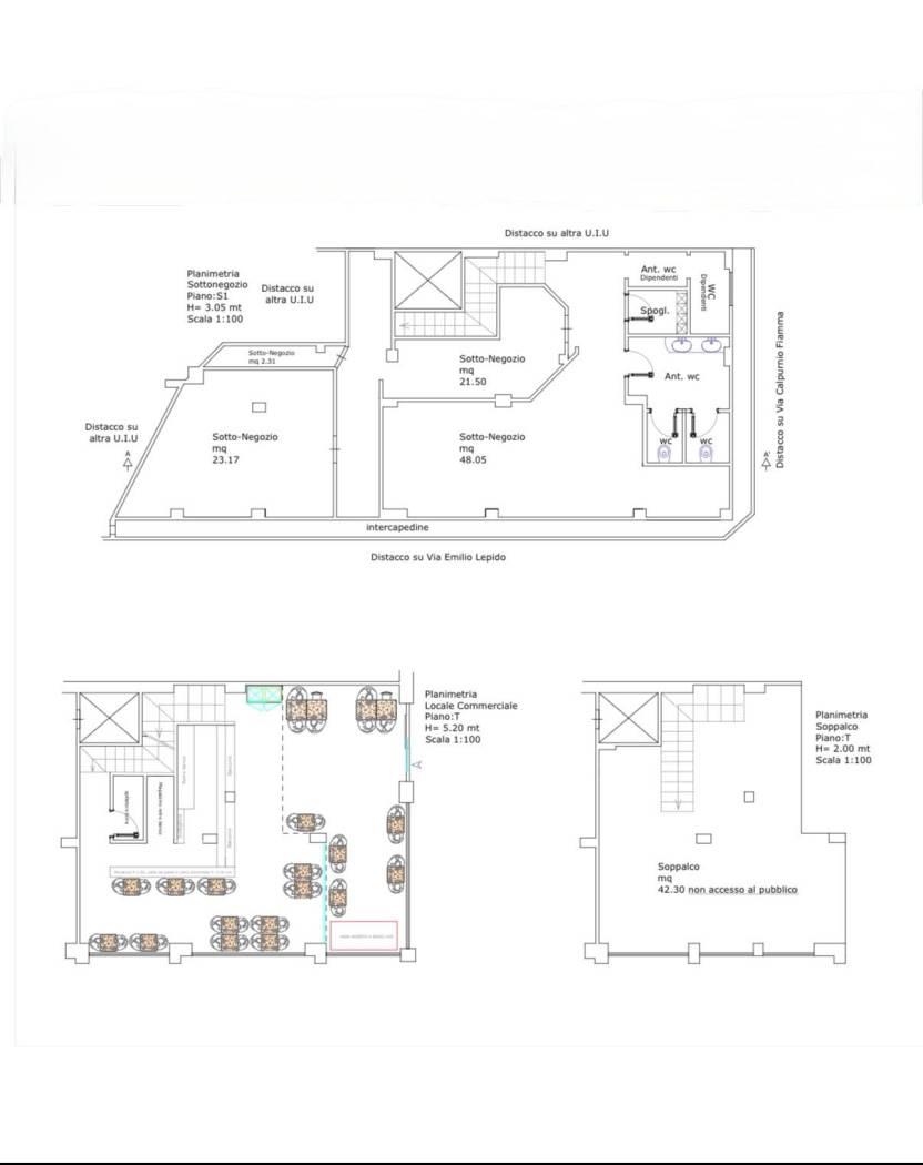
In zona Tuscolana, a pochi passi da Via Flavio Stilicone e dalle fermate metro Lucio Sestio e Giulio Agricola, proponiamo la cessione di un bistrot/lounge bar completamente ristrutturato, con ottima visibilità grazie a cinque vetrine su strada e inserito in un contesto ad alta densità abitativa e commerciale.

Il locale si sviluppa su circa 163 mq su due livelli: al piano terra troviamo una sala accogliente con circa 35 coperti, bancone bar attrezzato e area gastronomia, mentre al piano S1 sono presenti i servizi per il pubblico, area dipendenti con spogliatoio e ulteriori spazi di magazzino. Completa la proprietà un soppalco ad uso deposito.

L’attività viene ceduta completa di arredi e attrezzature professionali, cucina attrezzata, banchi frigo, forno, lavastoviglie, impianto di spillatura, oltre a un sistema audio professionale con predisposizione per musica live e gestione per zone. Presente anche smart TV 85”, impianto elettrico certificato con illuminazione regolabile e climatizzazione caldo/freddo.

Il locale è dotato di impianto di videosorveglianza e allarme, servizi moderni e completamente a norma. Licenza per somministrazione di alimenti e bevande inclusa.

Ottimo avviamento e pronto all’uso, ideale per bistrot, cocktail bar o aperitivi.

Contratto di locazione 6+6 con canone mensile di €2.700 (scadenza 06/2035).

LEGGI TUTTO

CONDIVIDI SUI SOCIAL

DATI PRINCIPALI

Riferimento
641559
Contratto
Vendita
Tipologia
Immobile - Negozio
Superficie
163 mq
Locali
1
Bagni
3
Piano
Piano terra
Totale piani
1

CARATTERISTICHE

Ascensore Arredato Allarme

COSTI

Prezzo
€ 49.000,00
Spese condominiali
€ 70,00 / mese

EFFICIENZA ENERGETICA

Stato
Ristrutturato
Climatizzazione
Si
Classe energetica
G
IPE
175,00 kWh/m²a

A+

A

B

C

D

E

F

175,00 kWh/m²a | Classe energetica G

G

MAPPA