TALENTI - VIA DELLA BUFALOTTA - Locale C/1 LOCATO, VENDITA

Via della Bufalotta 831 - Roma (Roma)
€ 219.900
  • 1 locale
  • 110 mq
  • 1 bagno

Negozio in Vendita a Roma

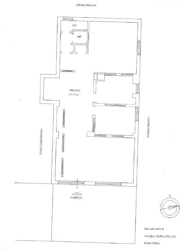
VIA DELLA BUFALOTTA, proponiamo la vendita di un locale commerciale locato, cat. C/1 di 110 mq posto al piano terra,con due due vetrine su strada principale e spazio antistante.

L'immobile è ubicato nella parte piu commerciale di via della Bufalotta , gode del passaggio pedonale , oltre al passaggio di scorrimento VELOCE delle macchine e mezzi pubblici.

Il locale commerciale ,attualmente è locato, ad un importante e noto BREND in FRACHISING con ottima rendita annuale.

Lo stato del negozio si presenta completamente ristrutturato.

OTTIMA POSSIBILITA' DI INVESTIMENTO.

DI CESARE IMMOBILIARE Via Franco Sacchetti, 59/61 - 00137 Roma tel. 06.82. 78.358. Valutiamo il tuo Immobile Gratuitamente e senza Impegno, garantiamo massima efficacia, serietà e garanzia di Professionalità e competenza. La nostra forza è il vostro vantaggio, il tempo di realizzo più rapido per la vendita o l'acquisto del vostro immobile grazie alla collaborazione con oltre 15.200 agenzie Fiaip e al portale MLS Agent Re di FRIMM.

LEGGI TUTTO

CONDIVIDI SUI SOCIAL

DATI PRINCIPALI

Riferimento
640636
Contratto
Vendita
Tipologia
Immobile - Negozio
Superficie
110 mq
Locali
1
Bagni
1
Piano
Piano terra
Totale piani
2
Box/Posto auto
Singolo

CARATTERISTICHE

Ascensore Arredato Allarme

COSTI

Prezzo
€ 219.900,00
Spese condominiali
€ 50,00 / mese

EFFICIENZA ENERGETICA

Stato
Ristrutturato
Anno costruzione
1969
Riscaldamento
Autonomo
Climatizzazione
Si
Classe energetica
G
IPE
175,00 kWh/m²a

A+

A

B

C

D

E

F

175,00 kWh/m²a | Classe energetica G

G

MAPPA