San Lorenzo via dei Reti VENDITA

Via dei Reti - Roma, Zona San Lorenzo
€ 790.000
  • 1 locale
  • 604 mq
  • 4 bagni

Negozio in Vendita a Roma

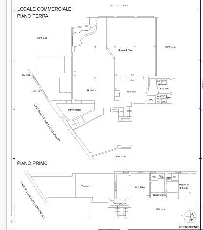
San Lorenzo vendiamo libero locale commerciale cielo terra CON CANNA FUMARIA ideale per ristorazione, con cinque porte su strada e una grande porta carrabile. L'unità immobiliare è cosi composta: al piano terra, open space, la superficie coperta è di mq 490 con altezze dei soffitti ml 4.55 e un primo piano, collegato con scala interna di una superficie di mq 90 e altezza soffitti ml 3.00, più terrazzo di una superficie di mq 200. € 790.000

CONDIVIDI SUI SOCIAL

DATI PRINCIPALI

Riferimento
631647
Contratto
Vendita
Tipologia
Immobile - Negozio
Superficie
604 mq
Locali
1
Bagni
4
Piano
1 °
Totale piani
2

CARATTERISTICHE

Ascensore

COSTI

Prezzo
€ 790.000,00

EFFICIENZA ENERGETICA

Stato
Da ristrutturare
Anno costruzione
1940
Riscaldamento
Autonomo
Climatizzazione
Si
Classe energetica
G
IPE
175,00 kWh/m²a

A+

A

B

C

D

E

F

175,00 kWh/m²a | Classe energetica G

G

MAPPA

ANNUNCI SIMILI

VENDITA 14
€ 95.000
Negozio in Vendita a Roma, Zona San Lorenzo
  • 1 locale
  • 25 mq
  • 1 bagno