Portuense, Via Gaetano Astolfi VENDITA

Via Gaetano Astolfi 83 - Roma, Zona Portuense
€ 160.000
  • 2 locali
  • 250 mq
  • 2 bagni

Negozio in Vendita a Roma

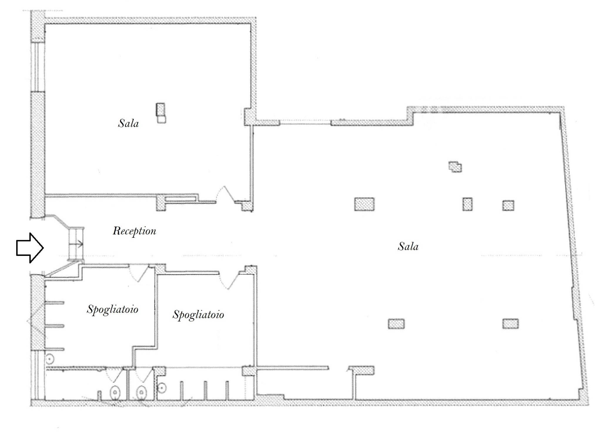
In via Gaetano Astolfi, traversa di via Portuense e all'altezza dell'Ospedale Spallanzani, proponiamo in vendita locale commerciale C/1 di 250mq., LOCATO, con accesso dal piano strada ed è così composto: reception, due grandi sale, 2 spogliatoi con docce e bagni, ripostiglio/locale deposito. Il locale è provvisto di sistema di areazione. La proprietà, attualmente locata, è adibita a palestra da molti anni, si presenta in ottime condizioni, è stata tra l'altro oggetto di una recente ristrutturazione, ed ha una rendita annua di €. 16.800,00, con contratto 6+6. Pari al 9% lordo del prezzo richiesto. Ottimo investimento.
La Fratini Immobiliare opera nel settore da 30 anni con esperienza, professionalità, cortesia, accompagnando la sua clientela nell'acquisto e nella vendita del proprio immobile offrendo valutazioni e stime gratuite; le migliori soluzioni di marketing per promuovere il vostro appartamento; consulenze creditizie; verifiche urbanistiche-catastali; reperimento documentazione. La vostra soddisfazione è il nostro successo. Chiama o invia mail per informazioni.
VALUTAZIONI IMMOBILIARI GRATUITE__ Le presenti informazioni non costituiscono elemento contrattuale. La nostra agenzia si trova in Via Egidio Galbani n. 65 (fronte Terna). Orario ufficio: Lun – Ven dalle 9:30 alle 13:00 e dalle 15:30 alle 19:30 – Sab 9:30 – 13:00.

LEGGI TUTTO

CONDIVIDI SUI SOCIAL

DATI PRINCIPALI

Riferimento
628310
Contratto
Vendita
Tipologia
Immobile - Negozio
Superficie
250 mq
Locali
2
Bagni
2
Piano
Seminterrato
Totale piani
5

CARATTERISTICHE

Ascensore Arredato

COSTI

Prezzo
€ 160.000,00
Spese condominiali
€ 1,00 / mese

EFFICIENZA ENERGETICA

Stato
Ristrutturato
Anno costruzione
1960
Riscaldamento
Autonomo
Climatizzazione
Si
Classe energetica
G
IPE
351,00 kWh/m²a

A+

A

B

C

D

E

F

351,00 kWh/m²a | Classe energetica G

G

MAPPA

ANNUNCI SIMILI

VENDITA 20
€ 300.000
Negozio in Vendita a Roma, Zona Portuense
  • 4 locali
  • 285 mq
  • 2 bagni