Pedemontana locale centralissimo frazionabile con ampio parc AFFITTO

Via Pedemontana 48 - Palestrina (Roma)
€ 3.500 mensili
  • 1 locale
  • 440 mq

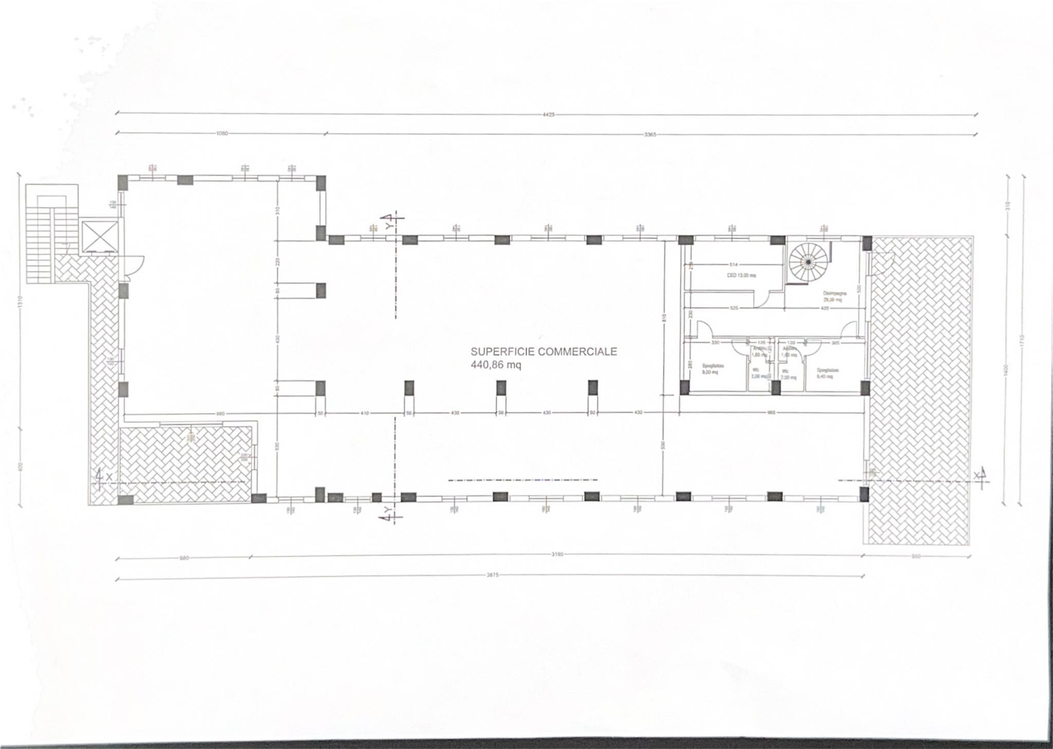
Negozio in Affitto a Palestrina

PALESTRINA- (Affittasi) Pedemontana, in posizione centralissima e servita, locale commerciale al piano primo finestratissimo, nuova realizzazione mq.440 c. frazionabile, con annesso ampio parcheggio. Ideale anche uso : uffici direzionali e co working, sale meeting, scuola professionale, centro estetico e benessere, centro medico e diagnostico, palestra personal trainer, arti marziali, boxe, danza, scuola di ballo, scuola paritaria, centro servizi integrati . PREZZO SU RICHIESTA   Cod.4004

CONDIVIDI SUI SOCIAL

DATI PRINCIPALI

Riferimento
634880
Contratto
Affitto
Tipologia
Immobile - Negozio
Superficie
440 mq
Locali
1
Piano
1 °
Totale piani
1
Box/Posto auto
Doppio

CARATTERISTICHE

Ascensore

COSTI

Canone
Affitto € 3.500,00 al mese
Tipo locazione
4+4

EFFICIENZA ENERGETICA

Stato
Da ristrutturare
Anno costruzione
2000

MAPPA

ANNUNCI SIMILI