Negozio - Locale commerciale in Vendita VENDITA

Via Montefiascone - Roma, Zona Tomba Di Nerone
€ 219.000
  • 1 locale
  • 140 mq
  • 1 bagno

Negozio in Vendita a Roma

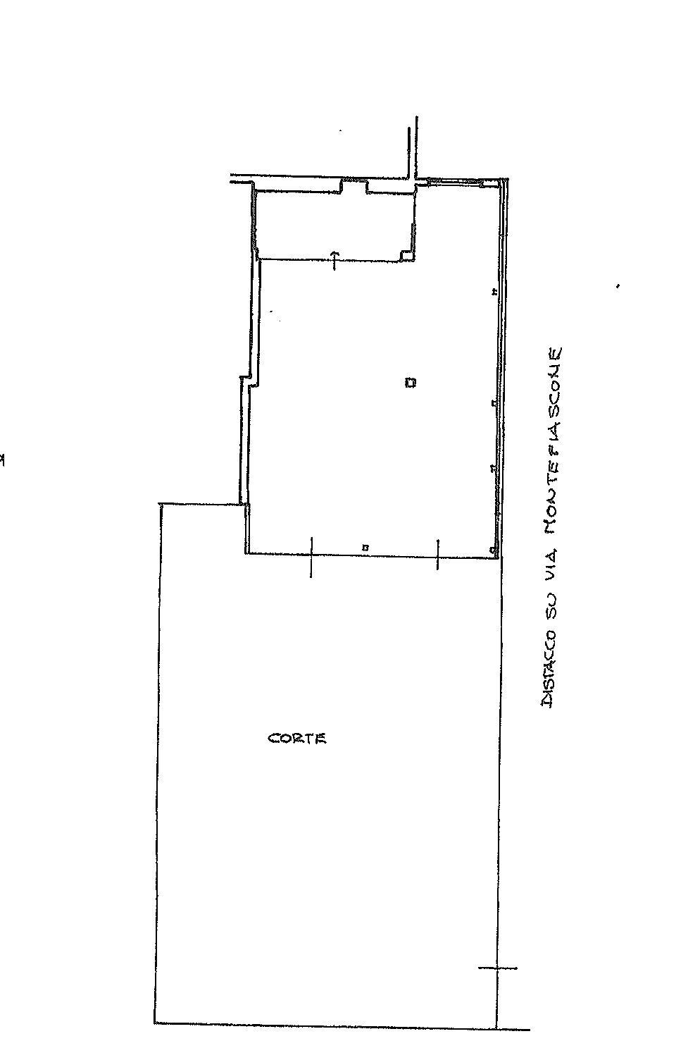
L’immobile è ubicato all’inizio di Via Montefiascone, all’angolo con Via di Grottarossa, in una posizione strategica adiacente all’Ufficio Postale ed a breve distanza dai principali servizi di prima necessità, e vicino alle fermate dei mezzi pubblici.
Si tratta di un locale indipendente di mq. 140 circa ed è caratterizzato da tre vetrine fronte strada e da una corte esterna di mq. 90 circa ideale per area parcheggi e per lo scarico e carico di merci.
L’unità è dotata di canna fumaria e di un regolare collegamento alla rete fognaria comunale. Internamente si presenta in buone condizioni, dispone di impianto di aria condizionata e di infissi in alluminio con doppi vetri. Recentemente utilizzato come laboratorio da forno, conserva ancora i macchinari e le attrezzature, disponibili per la cessione. Grazie alla sua versatilità, il locale si presta perfettamente per l’apertura di un ufficio o di un’attività commerciale su strada.

LEGGI TUTTO

CONDIVIDI SUI SOCIAL

DATI PRINCIPALI

Riferimento
634334
Contratto
Vendita
Tipologia
Immobile - Negozio
Superficie
140 mq
Locali
1
Bagni
1
Piano
Piano terra
Totale piani
1
Box/Posto auto
Doppio

CARATTERISTICHE

Ascensore

COSTI

Prezzo
€ 219.000,00

EFFICIENZA ENERGETICA

Stato
Abitabile
Anno costruzione
1960
Riscaldamento
Autonomo
Classe energetica
G
IPE
171,00 kWh/m²a

A+

A

B

C

D

E

F

171,00 kWh/m²a | Classe energetica G

G

MAPPA

ANNUNCI SIMILI