Negozio - Locale commerciale in Vendita VENDITA

Via Giulia di Colloredo - Roma (Roma)
€ 249.000
  • 1 locale
  • 150 mq

Negozio in Vendita a Roma

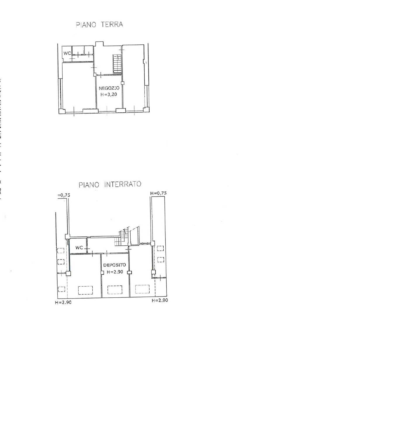
In Via Giulia di Colloredo proponiamo immobile C/1 afittato, con regolare contratto di locazione 6+6 stipulato nel 2022 AD € 1.500,00 AL MESE che offre un'ottima opportunità per chi cerca uno spazio ben strutturato e funzionale, con una buona visibilità grazie alle vetrine e una versatilità che si adatta a molteplici usi professionali o commerciali. con una superficie totale di circa 150 mq, disposto su due piani: piano terra e seminterrato. È una soluzione ideale per chi cerca uno spazio versatile, ampio e ben strutturato, adatto sia come studio che ufficio. Il locale è dotato di due servizi, uno per ciascun piano. Ottimo per uso investimento.

LEGGI TUTTO

CONDIVIDI SUI SOCIAL

DATI PRINCIPALI

Riferimento
630181
Contratto
Vendita
Tipologia
Immobile - Negozio
Superficie
150 mq
Locali
1
Piano
Piano terra
Totale piani
4

CARATTERISTICHE

Ascensore

COSTI

Prezzo
€ 249.000,00

EFFICIENZA ENERGETICA

Stato
Ristrutturato
Classe energetica
D
IPE
477,38 kWh/m²a

A+

A

B

C

477,38 kWh/m²a | Classe energetica D

D

E

F

G

MAPPA