Negozio - Locale commerciale in Affitto AFFITTO

Via Collegiove - Roma, Zona Tomba Di Nerone
€ 750 mensili
  • 2 locali
  • 45 mq
  • 1 bagno

Negozio in Affitto a Roma

L'immobile si trova nella parte iniziale di Via di Grottarossa, a pochi metri da Via Cassia, dall'ufficio postale e da tutti i principali servizi.
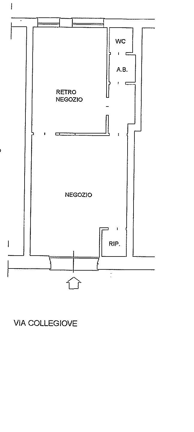
Locale commerciale di mq 45 circa con corte esterna condominiale antistante, una vetrina fronte strada, ingresso indipendente ed è privo di barriere architettoniche.
Internamente si presenta in buone condizioni, ha serranda automatizzata, impianto elettrico a norma ed è attualmente composto di una comoda sala, una spaziosa cucina finestrata, un ripostiglio tecnico, bagno ed antibagno.

CONDIVIDI SUI SOCIAL

DATI PRINCIPALI

Riferimento
634333
Contratto
Affitto
Tipologia
Immobile - Negozio
Superficie
45 mq
Locali
2
Bagni
1
Piano
Piano terra
Totale piani
4

CARATTERISTICHE

Ascensore

COSTI

Canone
Affitto € 750,00 al mese
Tipo locazione
4+4
Spese condominiali
€ 45,00 / mese, non incluse nel canone

EFFICIENZA ENERGETICA

Stato
Abitabile
Anno costruzione
1967
Classe energetica
G
IPE
153,00 kWh/m²a

A+

A

B

C

D

E

F

153,00 kWh/m²a | Classe energetica G

G

MAPPA

ANNUNCI SIMILI